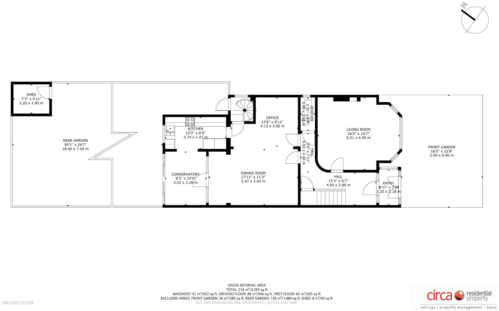
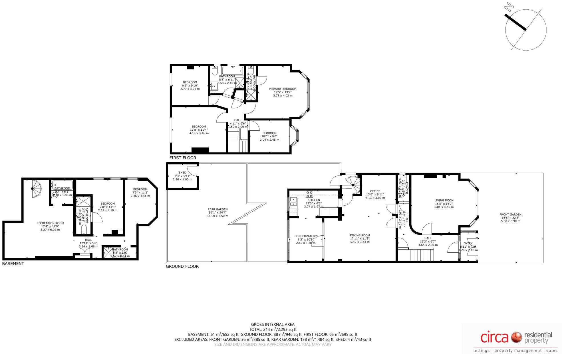
Large 4-bed semi with huge garden, driveway and a refurb-ready basement opposite Wanstead Flats..
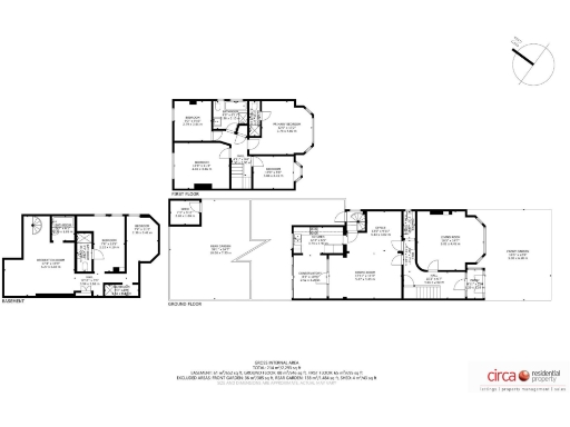
- Four double bedrooms with master en-suite
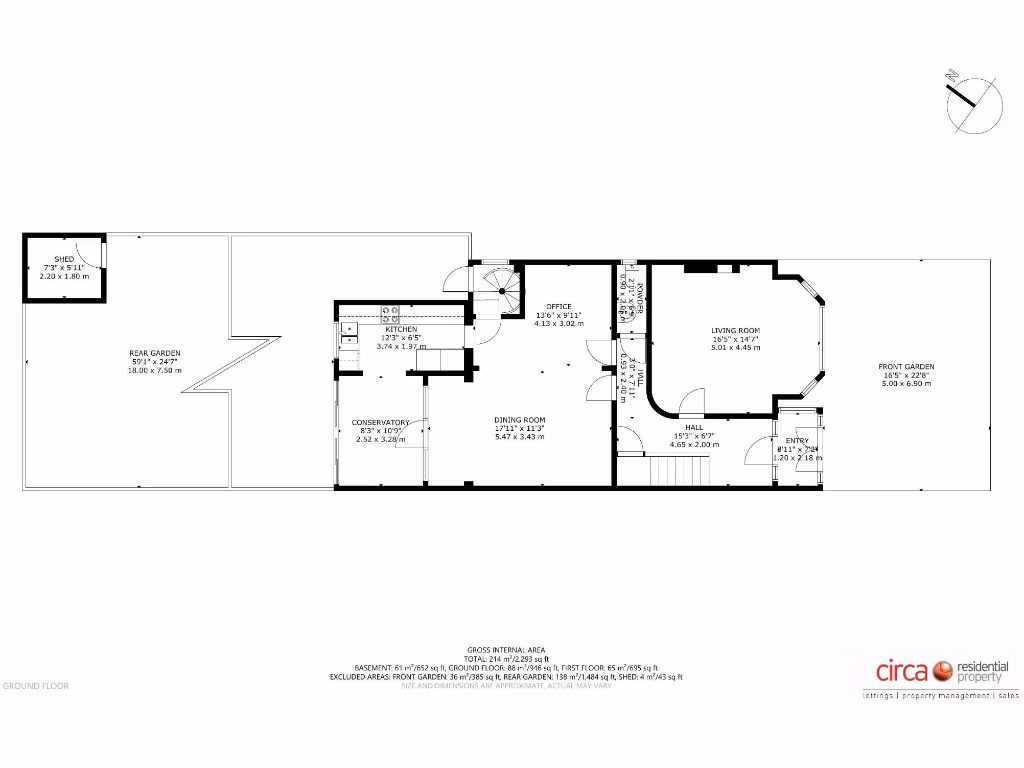
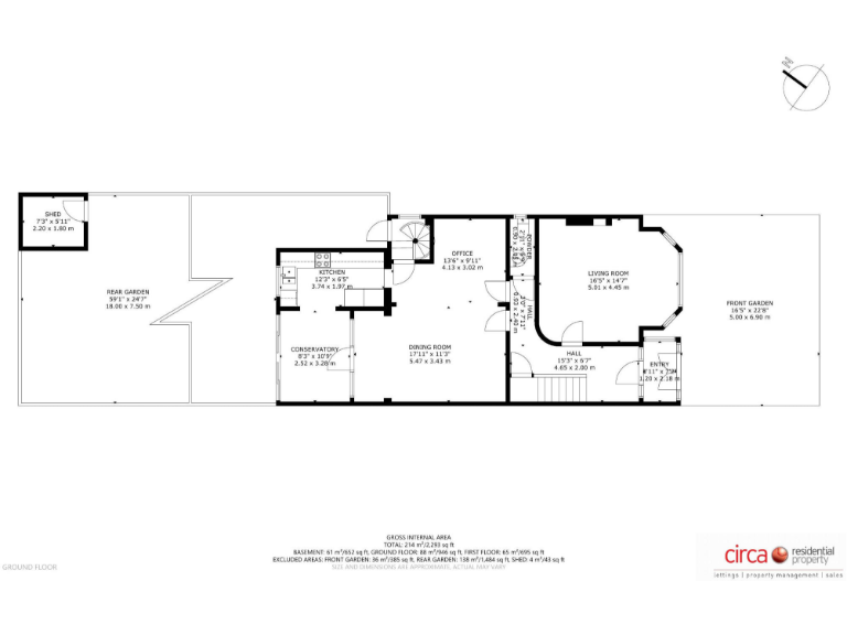
- Two spacious receptions plus conservatory
- Full basement (650 sq ft) awaiting full refurbishment
- Large north-west facing garden with long patio
- Full-fronted driveway, off-street parking for two+ cars
- Opposite Wanstead Flats; excellent local green space
- Within ~2 miles of Central, Overground, Elizabeth lines
- Freehold, no flood risk; low crime and fast broadband
This substantial Edwardian semi-detached home on Lake House Road offers generous living space across multiple levels, ideal for growing families. Four double bedrooms, two spacious reception rooms and a conservatory create flexible living zones, while a large north-west facing garden and long patio provide private outdoor space opposite Wanstead Flats.
The property includes a full basement (approximately 650 sq ft) that is currently awaiting full refurbishment and may require planning approval; when completed it will add significant amenity and value. A wide full-fronted driveway provides off-street parking for two or more cars and the house benefits from freehold tenure, low local crime and fast broadband—practical advantages for family life and home working.
Located within about two miles of Central, Overground and Elizabeth Line stations and close to several outstanding-rated primary schools, the home is well placed for commuting and school runs. Buyers should note the basement needs investment and planning consideration; the house is presented with many modernised elements but retains period character and scope for further updating to suit personal taste.
5 bedroom semi-detached house for sale in Lakehouse Road, E11 — £1,275,000 • 5 bed • 2 bath • 2700 ft²
4 bedroom house for sale in Blake Hall Crescent, Wanstead, E11 — £1,350,000 • 4 bed • 4 bath • 2458 ft²
5 bedroom house for sale in Windsor Road, Wanstead, E11 — £1,550,000 • 5 bed • 2 bath • 2737 ft²
4 bedroom house for sale in Belgrave Road, Wanstead, E11 — £1,175,000 • 4 bed • 1 bath • 2155 ft²
4 bedroom semi-detached house for sale in Aldersbrook Road, London, E12 — £1,295,000 • 4 bed • 2 bath • 2317 ft²
4 bedroom semi-detached house for sale in Blake Hall Road, London, E11 — £1,050,000 • 4 bed • 1 bath • 2229 ft²










































































