Edwardian semi‑detached over four levels, 2,700+ sq ft
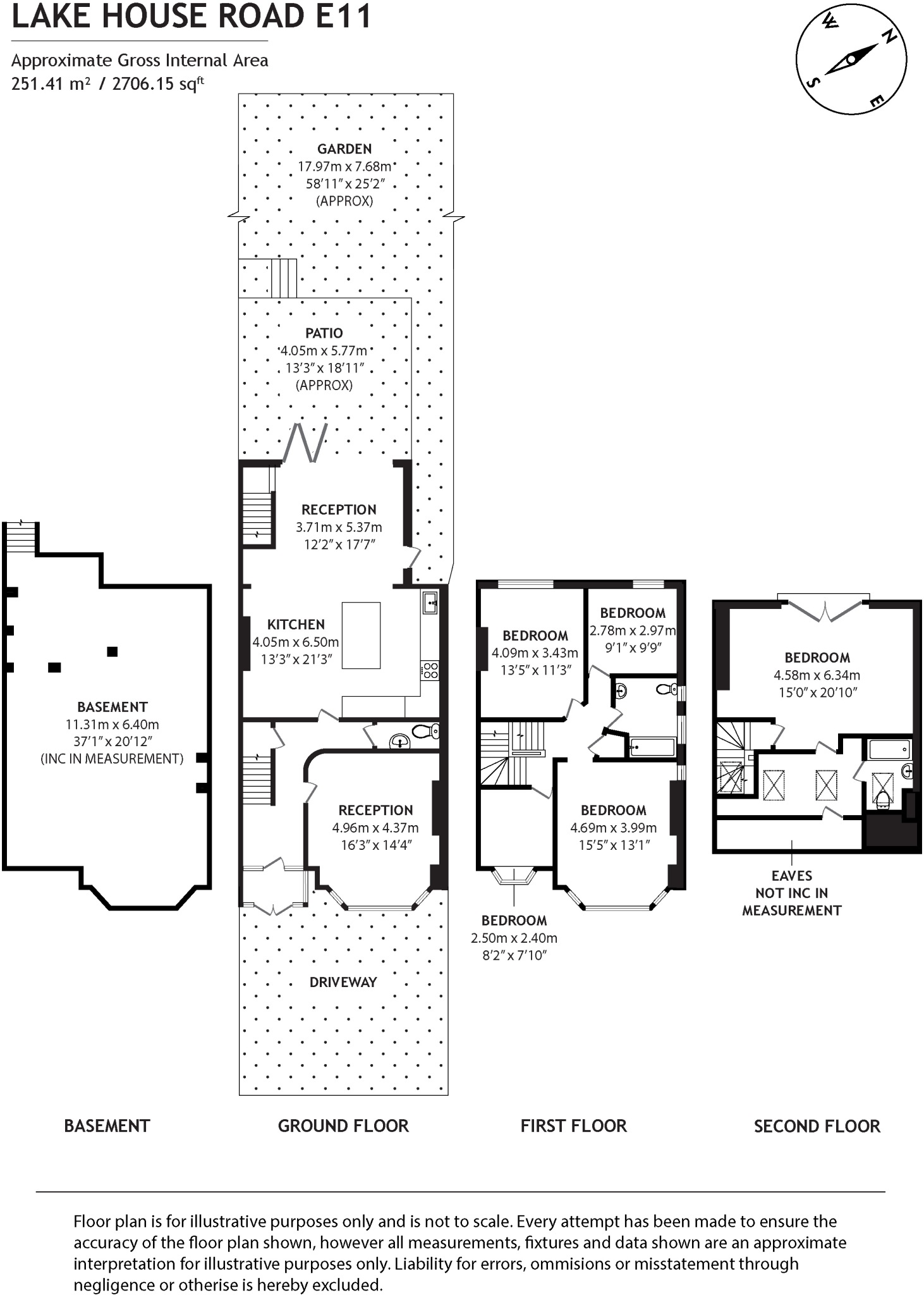
Set on the desirable Lakehouse Estate, this Edwardian semi-detached home extends over four floors and more than 2,700 sq ft, offering substantial family space and versatile living. The house combines period features—bay windows, high ceilings, herringbone floors—with a large modern open-plan extension that opens via bi-fold doors to the garden. Private off-street parking for two vehicles and a sizeable north‑west facing garden add everyday convenience and outdoor space rare in the area.
Accommodation includes five well-proportioned bedrooms, a principal top-floor suite with en suite and walk-in wardrobe, and a bright front reception with original detailing. A full-height lower-ground floor currently used for storage presents clear potential to be converted into a gym, cinema or home studio subject to the usual planning and building regulations (STP). Broadband is fast, mobile signal excellent, and the house sits in an affluent, low-crime neighbourhood with strong local schools.
Practical points are straightforward and important to note: the property has two bathrooms for five bedrooms, so additional bathroom provision may be desirable for larger families. The basement space and any significant internal reconfiguration will require planning/installation work. Tenure is freehold and there is no onward chain, which can simplify purchase timing.
This home will suit growing families who value character, living space and outdoor amenity, or buyers seeking a substantial period house with scope to modernise and adapt internal space. Its location close to green spaces and good transport links makes it an appealing family base within easy reach of central London.







































































































