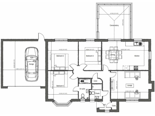
Serviced village-edge plot with planning for a spacious 3-bed bungalow and double garage..
Fully serviced plot with mains water, electricity and BT
Detailed planning granted for 3-bed detached bungalow (reference provided)
Generous level plot approx. 24.2m x 29.9m overlooking farmland
Approved design: 1,832.5 sq ft, principal en-suite, garden room
Adjoining double garage plus two off-street parking spaces
Drainage via private pumping station; management company/charges apply
Buyer responsible for Building Regulations and all construction costs
Slow fixed broadband despite excellent mobile signal; rural location
A rare ready-to-build plot on the edge of Bradworthy with detailed planning permission for a spacious, single-storey three-bedroom bungalow. The plot is level, very large (approx. 24.2m x 29.9m) and faces open farmland, offering privacy and rural outlooks while sitting within a well-served village community.
Mains water, electricity, BT and drainage (via a private pumping station/management company) are already in place, so practical infrastructure costs and site prep are lower than for a raw site. The approved design provides 170.25 sq m (1,832.5 sq ft) of single-level living, an adjoining double garage and two off-street parking spaces — appealing for families or buyers seeking accessible future-proof accommodation.
Buyers should note material responsibilities: Building Regulations sign-off and construction are the purchaser’s responsibility, and the drainage runs to a private pumping station managed via a company (potential ongoing charges). Broadband speeds are described as slow despite excellent mobile signal, and the location is a remoter rural community about 10 miles from the North Cornish coast.
This plot suits someone wanting a finished specification home without the delays of securing planning. It will particularly appeal to families seeking village amenities, downsizers who value single-level living, or small developers able to manage the build and regulatory requirements.
Plot for sale in Long Park Drive, Bradworthy, Holsworthy, EX22 — £135,000 • 3 bed • 2 bath
Plot for sale in SUPERB SINGLE PLOT IN c, 4 ACRES, Nr BRADWORTHY, EX22 — £300,000 • 1 bed • 1 bath • 4338 ft²
Detached house for sale in Putford, Holsworthy, Devon, EX22 — £175,000 • 1 bed • 1 bath • 861 ft²
Detached house for sale in Holsworthy, Devon, EX22 — £225,000 • 1 bed • 1 bath • 1149 ft²
Land for sale in West Putford, Holsworthy, EX22 — £299,000 • 1 bed • 1 bath • 3552 ft²
Land for sale in West Putford, Holsworthy, EX22 — £299,000 • 1 bed • 1 bath • 3557 ft²






























