Ready-for-build plot with paddock and planning permission for family living.
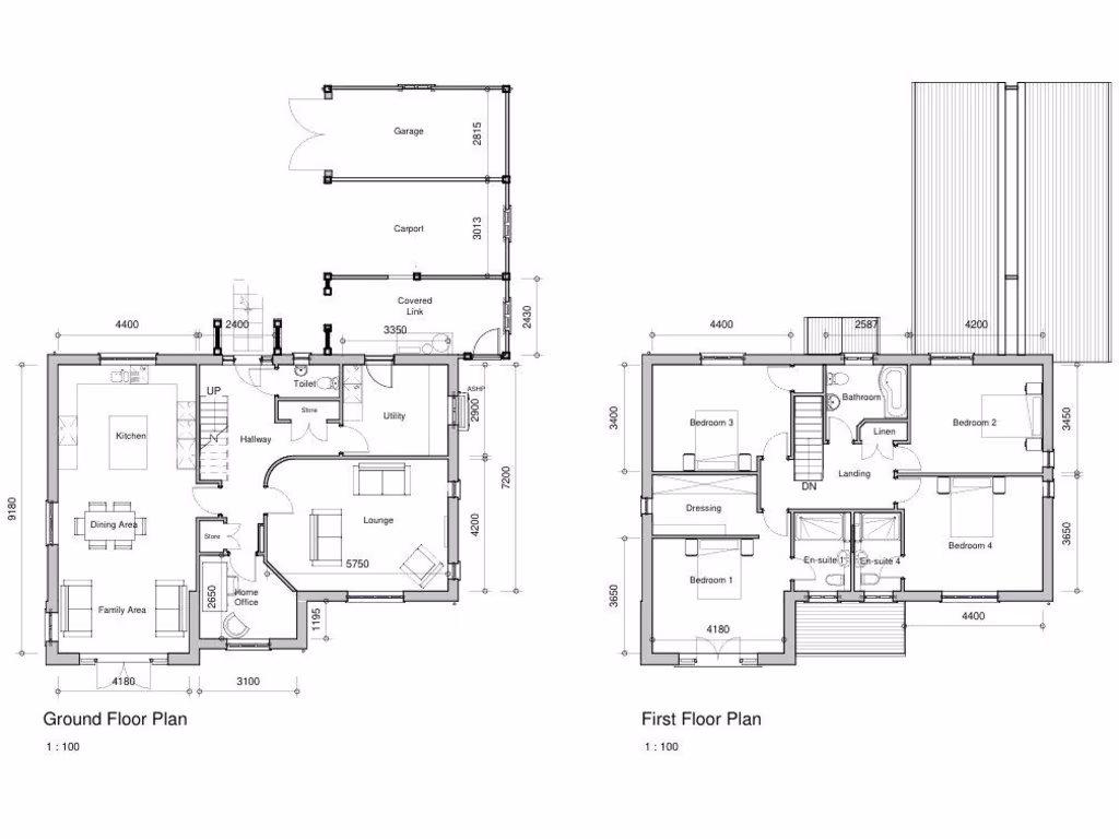
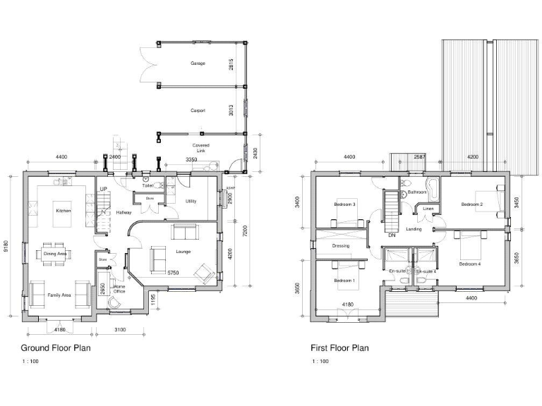
Planning permission granted for a detached 4-bed, 2-ensuite home
Large freehold plot with extensive garden and approx. 1/2 acre paddock
Detached double garage and extensive off-road parking planned
Cleared site ready for development—one of two adjoining plots
Quiet rural hamlet setting with easy road access to local towns
Very slow broadband; average mobile signal may affect remote working
Area classified as deprived; limited local services and amenities
Buyer to arrange utilities, connections and full build completion
This listing is for one of two cleared building plots in Putford, sold with full planning permission for a detached 4-bedroom family home with two ensuites and a double garage. The plot is freehold and includes generous garden space plus an approximately 1/2 acre paddock, offering scope for a substantial rural home and outdoor use. The site sits in a quiet hamlet setting with easy road links to Bradworthy, Bideford and Barnstaple.
The plot is a practical opportunity for buyers wanting a self-build or developer project: planning is already granted, the site is cleared and will provide extensive off-road parking and a south-facing orientation for good daylight. Sustainability features shown in design proposals include solar panels and double glazing. Local amenities are nearby in Bradworthy (about 4 miles) and there is abundant surrounding countryside and Forestry Commission woodland.
Be realistic about the limitations. The location is remote with very slow broadband and only average mobile signal, which will affect home working and streaming. The surrounding area measures as deprived and the site is in a remoter community, so services are limited compared with urban locations. Council tax banding and utility connections are not confirmed; purchasers should allow budget and time for connecting services and completing the build.
Detached house for sale in Putford, Holsworthy, Devon, EX22 — £150,000 • 1 bed • 1 bath • 861 ft²
Land for sale in West Putford, Holsworthy, EX22 — £299,000 • 1 bed • 1 bath • 3552 ft²
Land for sale in West Putford, Holsworthy, EX22 — £299,000 • 1 bed • 1 bath • 3552 ft²
Plot for sale in Pyworthy, Holsworthy, Devon, EX22 — £425,000 • 1 bed • 1 bath
Plot for sale in Pancrasweek, Holsworthy, Devon, EX22 — £250,000 • 8 bed • 1 bath
Land for sale in Fairy Cross, Bideford, EX39 — £425,000 • 1 bed • 1 bath • 1314 ft²






















































