Planning approved for a four-bedroom home with large garden and detached double garage.
- Planning permission granted for detached 4-bed house with 2 ensuites
- Detached double garage and extensive off-street parking
- Generous, cleared plot with large garden and countryside views
- Quiet hamlet location adjacent to common ground and woodland
- One of two plots; opportunity to build without securing permission
- Very slow broadband speeds; average mobile signal
- Remote location and area recorded as relatively deprived
- Services, build costs and council tax to be confirmed
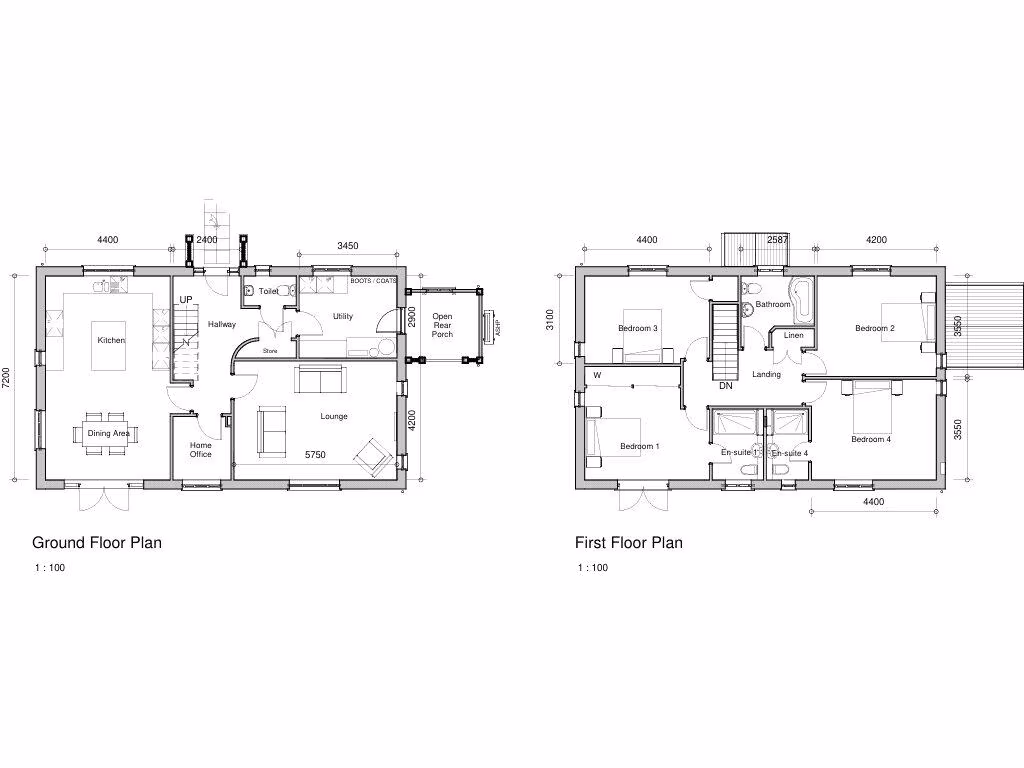
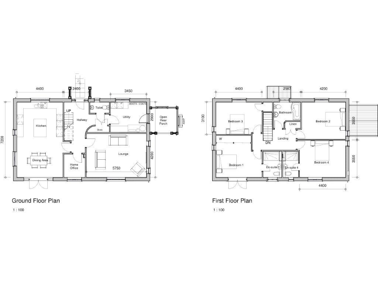
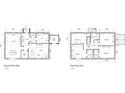
An attractive cleared building plot offered with planning permission for a contemporary detached four-bedroom house with two ensuites and a detached double garage. The site sits in a quiet hamlet setting, offering generous garden space, extensive off-street parking and pleasant rural views adjoining common ground and forestry commission woodland.
This is one of two plots available and suits a family seeking a newly built home in a peaceful countryside location. Planning is already granted, reducing the build uncertainty and allowing a buyer to move quickly to construction. The location provides reasonable access to Bradworthy, Bideford and Barnstaple for shops and services.
Buyers should note practical limitations: the plot is in a remote, relatively deprived area with very slow broadband and only average mobile signal. Services, build costs and access will need confirmation during purchase and construction stages. The site is cleared and ready for development but requires the full build to complete the approved four-bedroom home.
Detached house for sale in Putford, Holsworthy, Devon, EX22 — £225,000 • 1 bed • 1 bath • 1149 ft²
Land for sale in West Putford, Holsworthy, EX22 — £299,000 • 1 bed • 1 bath • 3557 ft²
Land for sale in West Putford, Holsworthy, EX22 — £299,000 • 1 bed • 1 bath • 3552 ft²
Plot for sale in SINGLE BUILDING PLOT, Tadworthy Road, NORTHAM, EX39 — £200,000 • 1 bed • 1 bath • 1682 ft²
Land for sale in Fairy Cross, Bideford, EX39 — £425,000 • 1 bed • 1 bath • 1314 ft²
Plot for sale in Cleave Wood, Langmead Drive, Bideford, EX39 — £250,000 • 1 bed • 1 bath • 2834 ft²










































