Spacious eco-friendly family house with expansive private grounds and modern tech.
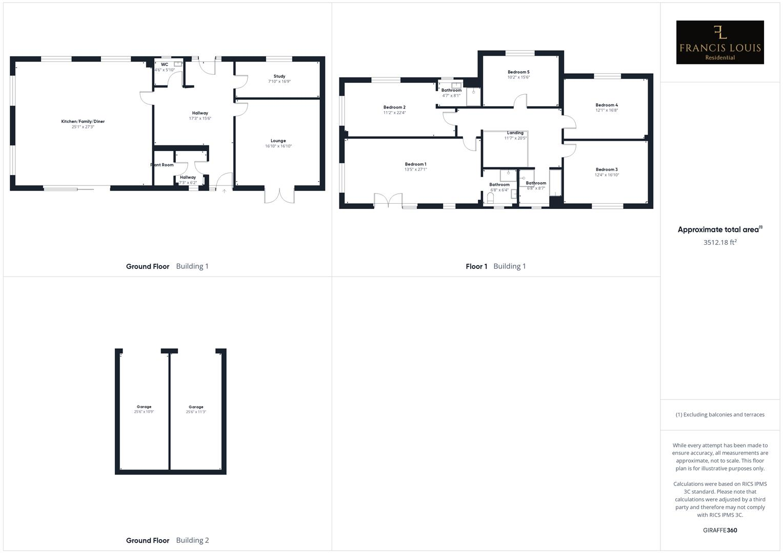
Five double bedrooms and five bathrooms across approximately 3,512 sq ft
Set within a gated, eco-conscious development, The Cider Barn is a substantial five-bedroom detached home arranged over generous open-plan living spaces. Designed for modern family life, the house combines sustainable technologies—air-source heat pump, solar panels, MVHR—and high-spec finishes across about 3,512 sq ft, with private landscaped grounds and an attached double garage.
The plot is a standout: private acreage (1–2 acres standard, with optional paddocks up to 10 acres) gives scope for gardens, equestrian use or play areas, and ensures a high degree of seclusion. Practical touches include EV charging, off-street parking, and a 10-year warranty valid until 2035, giving long-term security for buyers who value low-running costs and environmental performance.
This property suits families who prioritise space, privacy and sustainability yet still want reasonable road access to nearby towns. Note the hamlet setting brings tranquillity but also remoteness: local services are limited, and broadband speeds are very slow, which could affect remote working or streaming without alternative connectivity solutions.
Part-exchange is considered to simplify a move, and the freehold tenure, gated setting and low local crime add further appeal. Overall, this is a high-spec rural home for buyers seeking generous accommodation, extensive outdoor space and modern eco-features, balanced against the practicalities of a quieter, more isolated location.
3 bedroom semi-detached house for sale in Broadclyst, Exeter, EX5 — £575,000 • 3 bed • 3 bath • 1236 ft²
Equestrian facility for sale in High Bickington, Umberleigh, Devon, EX37 — £2,250,000 • 5 bed • 6 bath • 8106 ft²
5 bedroom detached house for sale in Willhayes Cross, Doddiscombsleigh, Exeter, Devon, EX6 — £1,575,000 • 5 bed • 5 bath • 4685 ft²
4 bedroom detached house for sale in Sutton Orchard, Newbuildings, EX17 — £1,075,000 • 4 bed • 3 bath • 2755 ft²
5 bedroom detached house for sale in Coleford, Crediton, EX17 — £1,100,000 • 5 bed • 2 bath • 3305 ft²
4 bedroom detached house for sale in Sutton Orchard, Newbuildings, EX17 — £995,000 • 4 bed • 3 bath • 2755 ft²






























































