A rare carbon‑neutral five‑bedroom equestrian estate with 7.8 acres and sand school.
Carbon‑neutral new build: GSHP, 13.2kW solar with 10.8kW battery, triple glazing
Five double bedrooms; all en suite plus separate ground‑floor shower room
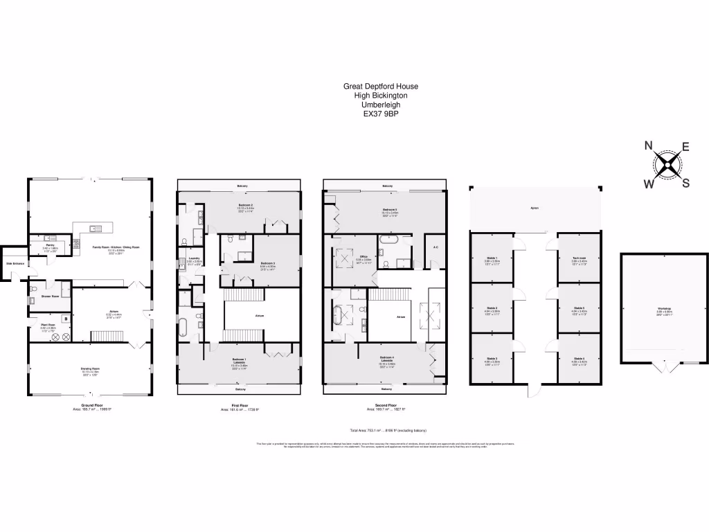
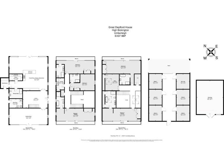
Approx. 540 m² / 8,106 sqft over three floors; large, flexible layout
7.8 acres: paddock, stable block, tack room and all‑weather sand school
Planning permission approved for a triple garage; detached workshop present
Ample gravelled driveway parking; potential for multi‑generational living
Remote hamlet location — no mobile signal and very slow broadband
Large property footprint means higher running costs and quite expensive council tax
Set within 7.8 acres of managed grounds, Great Deptford House is a newly constructed, carbon‑neutral five‑bedroom home built for modern country living. The property pairs contemporary design and high-spec eco‑engineering — ground source heat pump, 13.2kW solar with 10.8kW battery, triple glazing and underfloor heating — with wide uninterrupted Devon countryside views from multiple balconies.
Internally the house is expansive (approx. 540 m²/8,106 sq ft) with five double bedrooms all en suite, a separate ground‑floor shower room, three reception rooms and an open-plan show‑kitchen with floor‑to‑ceiling glazing. The layout and generous room sizes support multi‑generational living or large family gatherings; four bedrooms open onto balconies overlooking fields and woodland.
Equestrian and outdoor facilities are a key asset: stable block, tack room, paddock and an all‑weather sand school sit alongside a detached workshop and ample gravelled parking. Planning permission is already in place for a triple garage to the north‑west side, adding practical value for vehicles, machines or further conversions.
Important practical considerations are the rural setting: the house sits in a hamlet with no mobile signal and very slow broadband, which will affect remote working and connectivity. The property is freehold, chain free and newly finished, but running costs reflect its size (council tax described as quite expensive). For buyers seeking privacy, eco‑efficiency and strong equestrian capability in a tranquil North Devon location, this offers a rare, ready‑to‑use opportunity.
4 bedroom house for sale in Buckland Brewer, Bideford, EX39 — £700,000 • 4 bed • 3 bath • 2193 ft²
5 bedroom house for sale in Newton Tracey, Barnstaple, EX31 — £750,000 • 5 bed • 3 bath • 2368 ft²
5 bedroom detached house for sale in Creamfields, Westacott, EX17 — £1,350,000 • 5 bed • 3 bath • 1522 ft²
5 bedroom detached house for sale in Pippacott, Marwood, Nr Braunton, Devon, EX31 — £1,000,000 • 5 bed • 5 bath • 3851 ft²
5 bedroom detached house for sale in Frithelstock, Torrington, EX38 — £650,000 • 5 bed • 3 bath • 1477 ft²
4 bedroom detached house for sale in Lydacott, Barnstaple, EX31 — £950,000 • 4 bed • 4 bath • 1771 ft²


























































































































































































































































