Large freehold plot with live planning for a four‑bedroom detached home near the River Tamar..
Live planning application submitted for a four‑bed detached home (ref 25/00560/CDM)
Large freehold plot with panoramic views toward the River Tamar
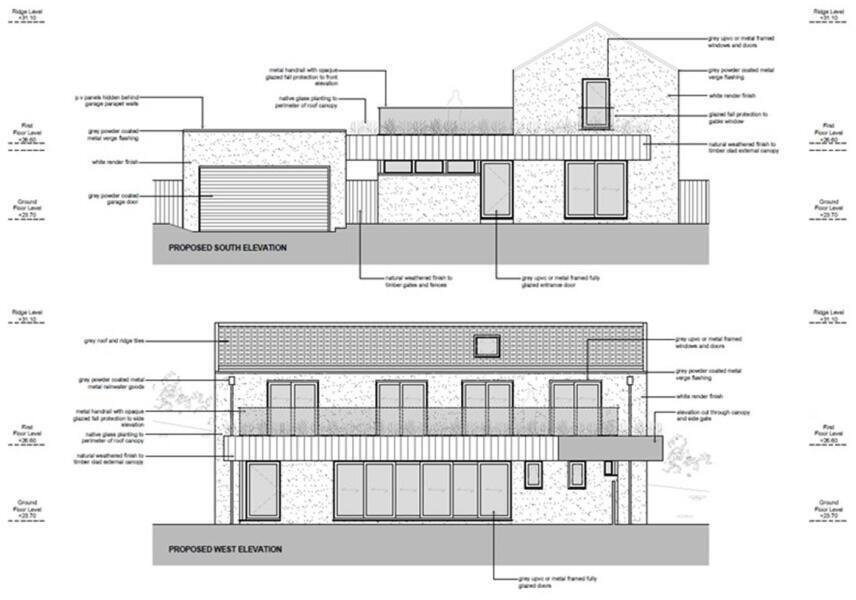
Proposed house circa 2,000 sq ft with balcony, garden and off‑street parking
Good local amenities, transport links, fast broadband and low crime
Services untested — buyers must verify utility connections and costs
Area classified as deprived; consider resale and funding implications
Planning is submitted, not yet granted — check council planning portal
Flood risk: no risk; plot may require groundworks and landscaping
This large freehold building plot on Wolseley Road offers a clear self‑build opportunity close to the River Tamar. A live planning application (ref 25/00560/CDM) has been submitted for a four‑bedroom detached house of circa 2,000 sq ft, with balcony, garden and off‑street parking — giving a strong starting point for design and build costs. The plot’s elevated position promises wide views toward the river and surrounding area.
The location provides practical advantages: fast broadband, low local crime, good access to nearby amenities, transport links and several primary and secondary schools. The site is within a city/major town setting yet retains proximity to green spaces, a slipway and riverfront leisure features that will appeal to buyers wanting both convenience and outdoor access.
Important points to note: planning is a live application, not a granted consent, and interested buyers should review the council planning portal for all conditions and documents. Services have not been tested and the particulars advise independent verification — factor in utility connections and potential groundworks when budgeting. The surrounding area is classified as deprived, which may affect resale value and funding considerations.
At £170,000 this plot is positioned for self‑builders or small developers looking for a modern detached scheme by the water. With a large plot and clear planning direction, the site offers scope to create a sizeable family home — provided purchasers carry out their own due diligence on planning, services and exact measurements.
Plot for sale in Wolseley Road, Plymouth, PL5 — £175,000 • 1 bed • 1 bath
Plot for sale in 802 Wolseley Road, Plymouth, Devon, PL5 — £175,000 • 1 bed • 1 bath
Land for sale in Wellpark Road, Drakewalls, Gunnislake, Cornwall, PL18 — £350,000 • 1 bed • 1 bath • 1840 ft²
Plot for sale in Callington Road, Saltash, PL12 — £150,000 • 3 bed • 2 bath
Plot for sale in Gunnislake, Cornwall, PL18 — £250,000 • 1 bed • 1 bath






















































