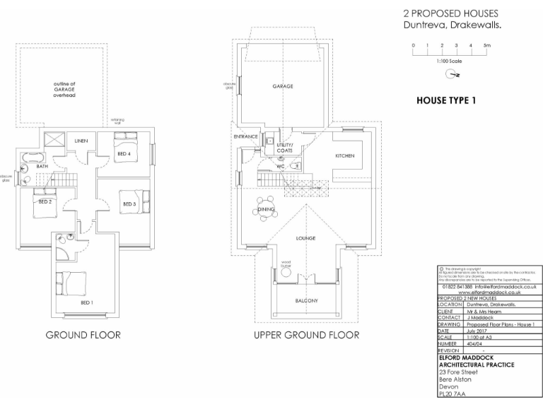
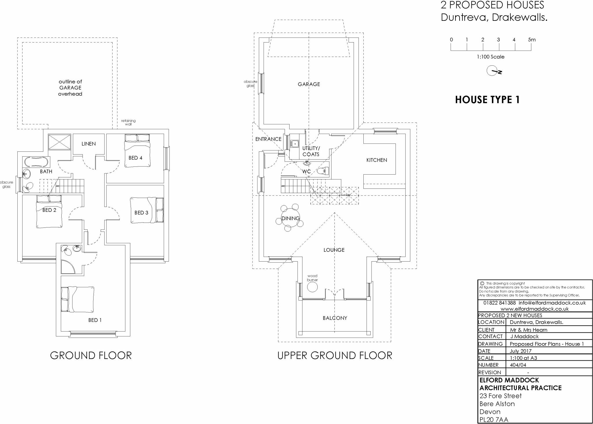
**Standout Features:**
- Large plot size with planning permission for a four-bedroom detached dwelling.
- Unique inverse design to maximize breathtaking views of the Tamar Valley.
- Off-street parking and a double garage included.
- Open-plan living area with a vaulted ceiling proposed for first floor.
- Low crime rate and excellent mobile signal in a serene rural setting.
**Potential Concerns:**
- The plot contains existing granite or whinstone walls with no insulation.
- Property condition is vacant land requiring development.
Nestled in the picturesque Tamar Valley, this expansive building plot offers a rare opportunity to construct a bespoke four-bedroom detached home with a double garage, enhancing your lifestyle with scenic countryside views. Planning permission is in place (Reference: PA17/07702), allowing for a modern living layout characterized by an open-plan design and vaulted ceilings that create an airy atmosphere. The spacious setting invites creativity and flexibility in design, positioning your new home to take full advantage of the surrounding beauty.
While the property currently consists of bare land, it presents endless possibilities for customization to suit your vision. It's conveniently located close to excellent schools, local amenities, and boasts a low crime rate, making it an appealing choice for families and investors alike. With fast broadband and excellent mobile connectivity, this area is perfectly poised for modern living. Don’t miss this exclusive opportunity—plots like this are in high demand and may not last long!
Plot for sale in Gunnislake, Cornwall, PL18 — £250,000 • 1 bed • 1 bath
Plot for sale in St. Anns Chapel, Gunnislake, PL18 — £300,000 • 4 bed • 3 bath • 2066 ft²
Plot for sale in South Petherwin, Launceston, PL15 — £159,950 • 1 bed • 1 bath
Plot for sale in South Petherwin, Launceston, PL15 — £159,950 • 1 bed • 1 bath
Land for sale in Wolseley Road, PLYMOUTH, PL5 — £170,000 • 1 bed • 1 bath • 2000 ft²
Land for sale in Callington, Cornwall, PL17 — £240,000 • 1 bed • 1 bath • 396 ft²














