Generous freehold plot with submitted plans and work underway for a four-bedroom house.
Freehold vacant plot with decent overall size
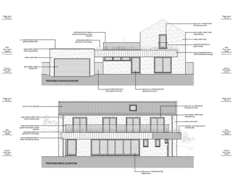
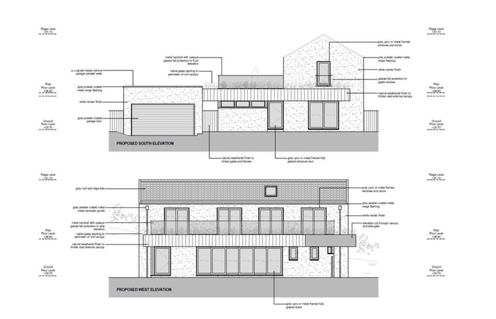
A generous freehold plot on Wolseley Road offers a rare self-build chance close to Plymouth amenities. Plans have been submitted (ref 25/00560/CDM) and work has commenced for a modern four-bedroom house with garage, balcony and garden — a strong starting point for a family home or bespoke finish. The site benefits from off-street parking, fast broadband in the area and no identified flood risk.
This is well suited to buyers wanting to design and control their family space: proposed elevations show a contemporary two-storey home with spacious rooms and outdoor space suitable for children and entertaining. The location provides convenient access to local schools (two primary schools rated Good and a nearby secondary rated Requires Improvement), public transport and nearby green spaces and river views suggested by the site.
Important practical points: the surrounding ward is relatively deprived, which may affect resale timing and local services. The vendor has not tested services, fixtures or fittings — buyers must verify utilities, measurements and legal title. Identification will be required under Money Laundering Regulations. The plot is being sold as vacant land and represents both opportunity and the usual self-build responsibilities, including completing works already started to planning specification or adapting plans to suit.
In short: a decent-sized, freehold plot with work underway and clear potential for a contemporary four-bedroom family home; a compelling project for buyers comfortable with site completion, local area considerations and confirming all technical and legal details before committing.
Land for sale in Wolseley Road, PLYMOUTH, PL5 — £170,000 • 1 bed • 1 bath • 2000 ft²
Plot for sale in 802 Wolseley Road, Plymouth, Devon, PL5 — £175,000 • 1 bed • 1 bath
Plot for sale in Callington Road, Saltash, PL12 — £150,000 • 3 bed • 2 bath
Land for sale in Wellpark Road, Drakewalls, Gunnislake, Cornwall, PL18 — £350,000 • 1 bed • 1 bath • 1840 ft²
Land for sale in Land at Petersfield Close, Highter Compton, Plymouth., PL3 — £595,000 • 1 bed • 1 bath






















