Self-build plot with submitted plans near schools and city amenities.
Freehold plot with proposed four-bedroom house planning (application 25/00560/CDM)
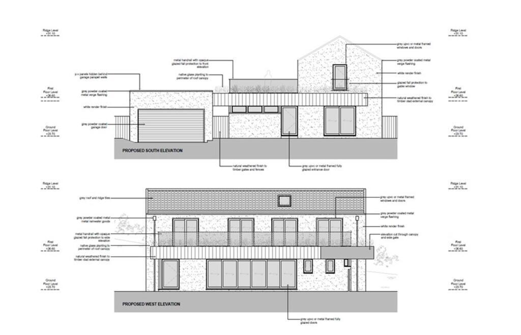
A substantial freehold building plot in a convenient Plymouth location, offered with a planning submission for a proposed four-bedroom house (application 25/00560/CDM). The site is a decent sized, undeveloped parcel with garden potential, off-street parking and no identified flood risk — an appealing blank canvas for a self-build family home or an investment-led development.
Planning has been submitted but not confirmed; buyers should assume further consent, building costs and construction management will be required. Work has already commenced on an adjacent plot (plot one), so this purchase offers proximity to an active development but also the usual site disruption and contractor activity associated with neighbouring builds.
Practical strengths include freehold tenure, fast broadband availability, low local crime and city-area convenience with nearby schools and amenities. Important practical notes: the wider area shows higher deprivation indices, mobile signal is average, and buyers must verify services, measurements and legal title. Identification will be required under Money Laundering Regulations.
Plot for sale in Wolseley Road, Plymouth, PL5 — £170,000 • 1 bed • 1 bath
Land for sale in Wolseley Road, PLYMOUTH, PL5 — £170,000 • 1 bed • 1 bath • 2000 ft²
Plot for sale in Callington Road, Saltash, PL12 — £150,000 • 3 bed • 2 bath
Land for sale in Land at Petersfield Close, Highter Compton, Plymouth., PL3 — £595,000 • 1 bed • 1 bath
Land for sale in Wellpark Road, Drakewalls, Gunnislake, Cornwall, PL18 — £350,000 • 1 bed • 1 bath • 1840 ft²


























