Ready-to-build plot with permissions in a scenic coastal village location.
Freehold building plot with full planning permission (Ref: 08/P/1/0005)
Suitable for a detached villa with raised garden area to the side
Central village position in scenic Portpatrick, near Main Street
Services located close by; buyer to confirm final connections
Excellent mobile signal but broadband speeds are average
Area classified as very deprived and a remoter rural community
Price £60,000 reflects location and development responsibilities
Adjacent to varied residential properties with village outlook
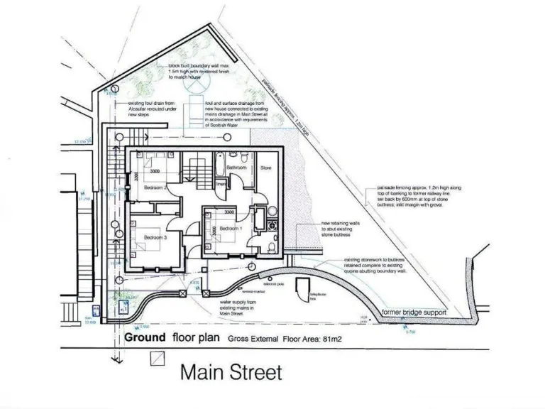
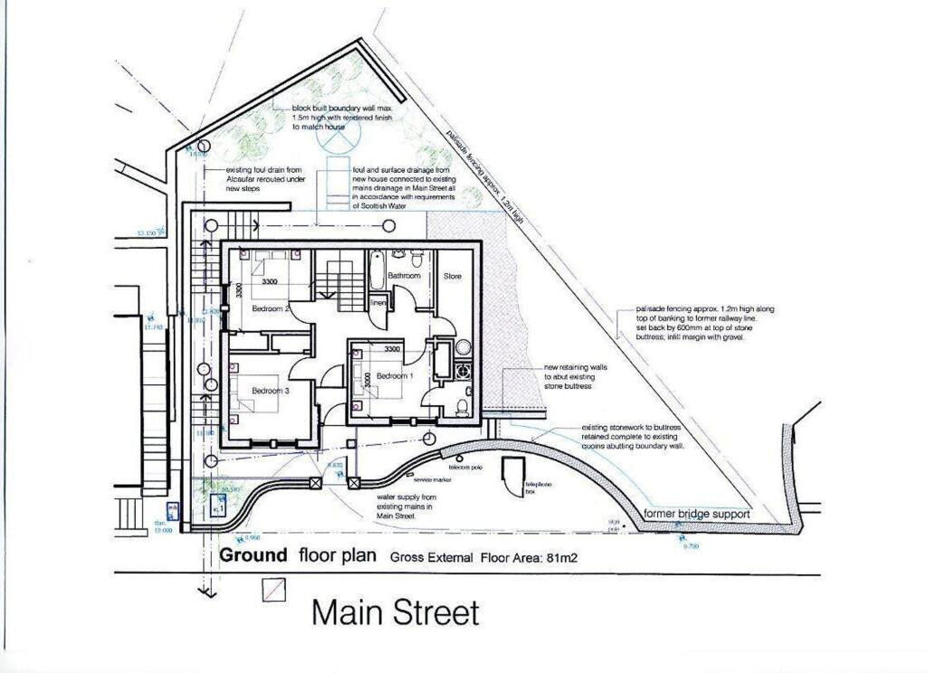
A rare central building plot in picturesque Portpatrick with full planning permission (Ref: 08/P/1/0005) ready for development. The freehold site is large enough for a detached villa and includes a raised area of garden ground, offering immediate scope to create a generous family home or a holiday property in a scenic coastal village.
Services are located close by and mobile signal is excellent, making the site practical to develop despite its rural setting. The plot sits adjacent to established residential properties and faces a pleasant village outlook, giving a sense of community and character once built.
Buyers should note the wider area is classified as very deprived and as a remoter community; local broadband speeds are average. These factors may affect resale timing and rental demand. The plot price reflects the location and the need for buyers to progress construction and final site connections.
This opportunity suits someone seeking a hands-on project: a self-builder, investor targeting holiday lets, or a buyer wanting a bespoke home in a scenic village. Full planning permission reduces initial uncertainty, but purchasers must allow budget and time for construction, utility connections, and local constraints.
Land for sale in Loch Ryan, Cairnryan, Stranraer, Dumfries and Galloway, DG9 8QX, DG9 — £80,000 • 1 bed • 1 bath • 14617 ft²
Plot for sale in 10 Glen Road, Leswalt, DG9 — £32,500 • 1 bed • 1 bath
1 bedroom detached bungalow for sale in Heugh Road, Portpatrick, DG9 — £164,995 • 1 bed • 1 bath • 1082 ft²
Plot for sale in Glen Road, Leswalt, DG9 — £38,000 • 1 bed • 1 bath
3 bedroom semi-detached house for sale in Colonel Street, Portpatrick, DG9 — £280,000 • 3 bed • 1 bath • 1563 ft²
Plot for sale in Plot at Challoch & Allandoo, DG9 — £150,000 • 1 bed • 1 bath






























