Spacious coastal family home with terraced garden and harbour views.
Sea views from terraced rear garden to the North Channel
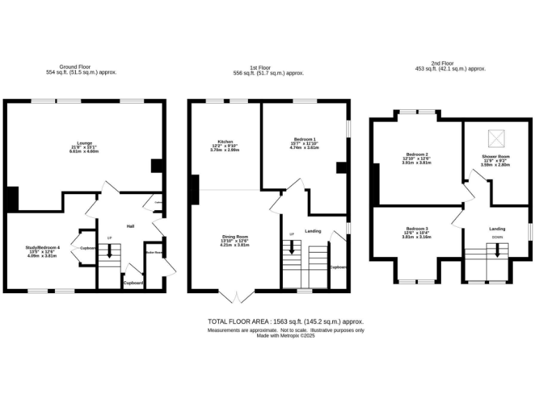
Set in the highly desirable seaside village of Portpatrick, this spacious three-bedroom semi-detached home offers generous family accommodation over three levels and sweeping views from the terraced garden to the North Channel. The large dining kitchen opens directly to the rear garden, creating a useful indoor–outdoor flow for family life and entertaining. Attractive internal woodwork, double-glazed sash-and-case windows and a wood-burning stove combine period character with practical comforts.
The garden is a standout feature: long, terraced and mature, it descends to elevated views over the harbour and sea. There are several paved seating areas, a pond and sandstone steps with iron railings linking the terraces — ideal for anyone who values outdoor privacy and coastal panoramas. The property benefits from oil central heating, double glazing and an EPC rating of C.
Buyers should note a few practical considerations. The house has a single shower room serving three bedrooms, and the steep, multi-level garden requires regular maintenance and careful access. Heating is oil-fired, which may be a higher-running-cost option compared with mains gas. Broadband speeds are average locally; mobile signal is excellent. The wider area indicators show higher local deprivation statistics and council tax is above average; a service charge of £430 applies (below average level). These factual points may affect running costs and appeal depending on buyer priorities.
Overall, this property will suit buyers seeking a characterful family home or holiday retreat with exceptional coastal views and generous outdoor space. It represents strong potential for anyone wanting to personalise finishes or improve energy efficiency while enjoying one of the region’s most picturesque village locations.
3 bedroom terraced house for sale in Dunskey Cottage, 6 Colonel Street, Portpatrick, DG9 8JU, DG9 — £165,000 • 3 bed • 2 bath • 1119 ft²
4 bedroom terraced house for sale in 2 Blair Terrace, Portpatrick, Stranraer, Dumfries and Galloway, DG9 — £320,000 • 4 bed • 3 bath
4 bedroom flat for sale in Main Street, Portpatrick, DG9 — £175,000 • 4 bed • 2 bath • 1075 ft²
3 bedroom detached house for sale in 6 Military Drive, Portpatrick, Stranraer, Dumfries and Galloway, DG9 — £315,000 • 3 bed • 1 bath • 2594 ft²
1 bedroom detached bungalow for sale in Heugh Road, Portpatrick, DG9 — £164,995 • 1 bed • 1 bath • 1082 ft²
2 bedroom terraced house for sale in Chalet Road, Portpatrick, DG9 — £125,000 • 2 bed • 2 bath • 893 ft²






































































































































