### Notable Features:
- Building plot located on the fringe of the popular rural village of Leswalt
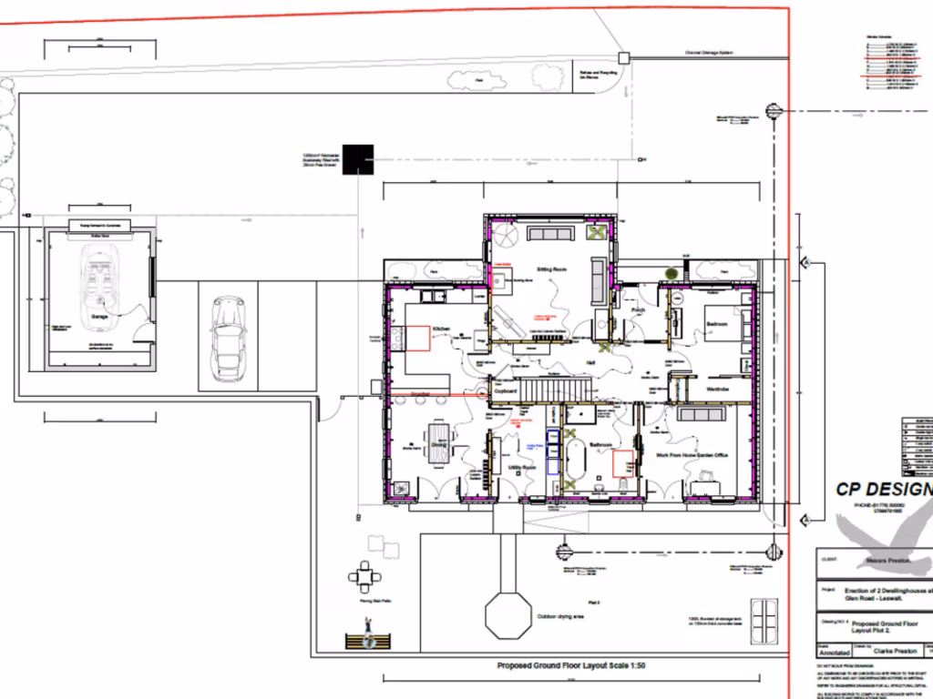
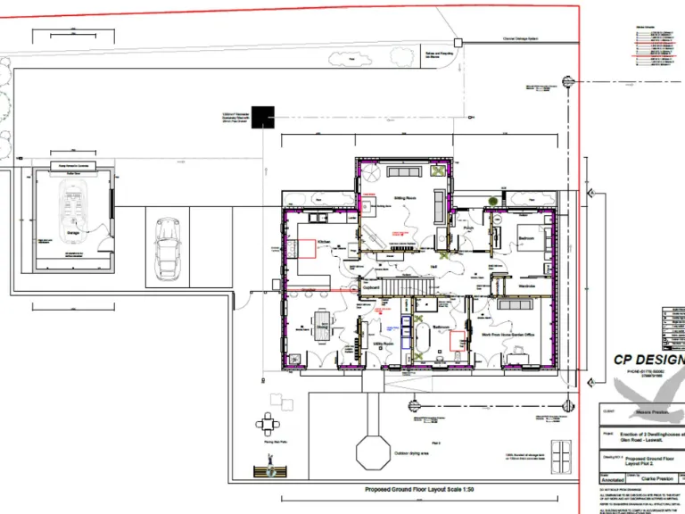
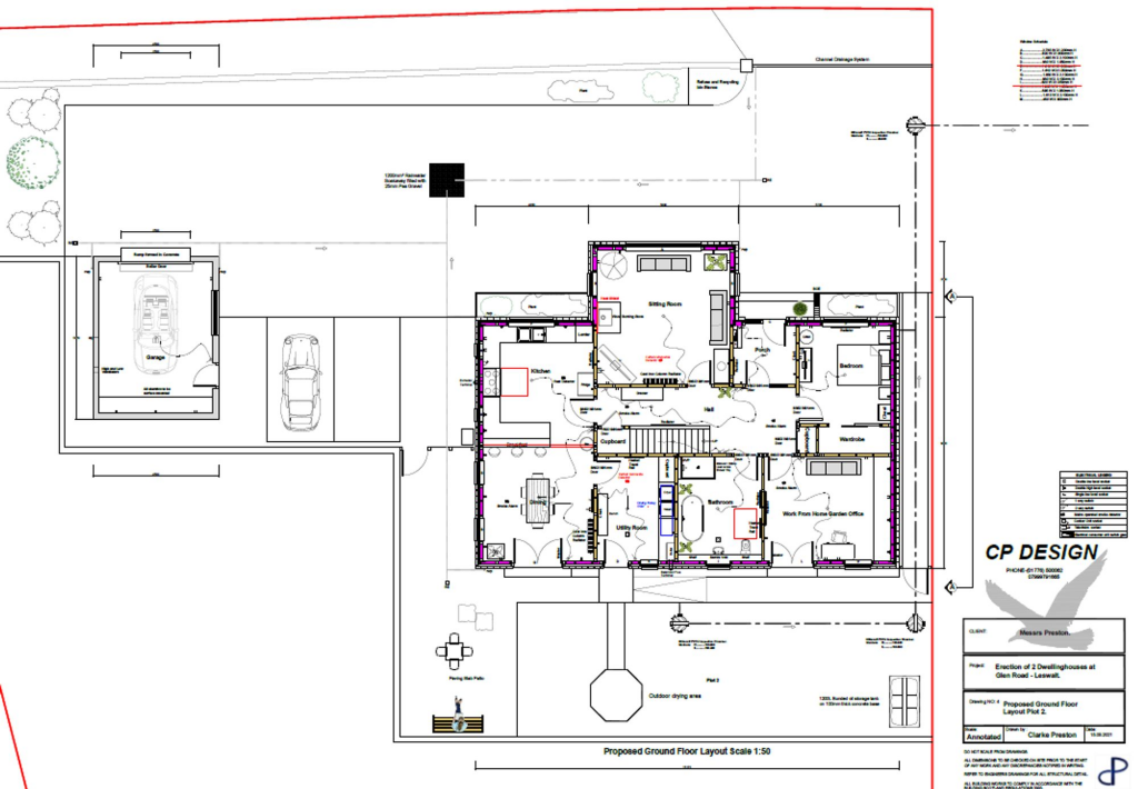
- Planning permission in place for a dwellinghouse with detached garage
- Services available adjacent to the site
- Flexibility to amend drawings for a single-storey layout or create a new design with planning approval
- Investment opportunity in a suburban development area
- Can purchase both plots for a total of £70,000
### Summary:
Embrace the charm of rural living with this exceptional building plot in Leswalt, available for just £38,000. This plot comes with approved planning permission for a dwellinghouse paired with a detached garage, perfect for those looking to construct their dream home. Not only does this site offer you the flexibility to modify existing designs or create your own with the necessary planning approval, but it is also located in a community rich with amenities, including schools, a post office, and a playground.
While the mobile signal is reported to be nonexistent and broadband speeds are average, this offers a perfect opportunity to invest in a tranquil lifestyle surrounded by nature. Don't miss the chance to secure your piece of land in this sought-after area—opportunities like this are rare and can quickly disappear from the market. Embrace your vision of a new beginning in this idyllic setting!
Plot for sale in 10 Glen Road, Leswalt, DG9 — £32,500 • 1 bed • 1 bath
Land for sale in St Ninian's Place, Portpatrick, DG9 — £60,000 • 1 bed • 1 bath
Land for sale in Loch Ryan, Cairnryan, Stranraer, Dumfries and Galloway, DG9 8QX, DG9 — £80,000 • 1 bed • 1 bath • 14617 ft²
Plot for sale in Plot at Challoch & Allandoo, DG9 — £150,000 • 1 bed • 1 bath
Land for sale in Meikle Float Steading, Sandhead, DG9 9LF, DG9 — £250,000 • 1 bed • 1 bath
4 bedroom end of terrace house for sale in Glen Road, Leswalt, DG9 — £140,000 • 4 bed • 2 bath • 1029 ft²






















