### Standout Features:
- **Plot Location:** Situated in the desirable rural village of Leswalt.
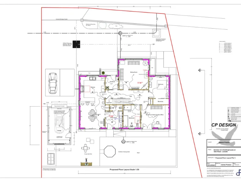
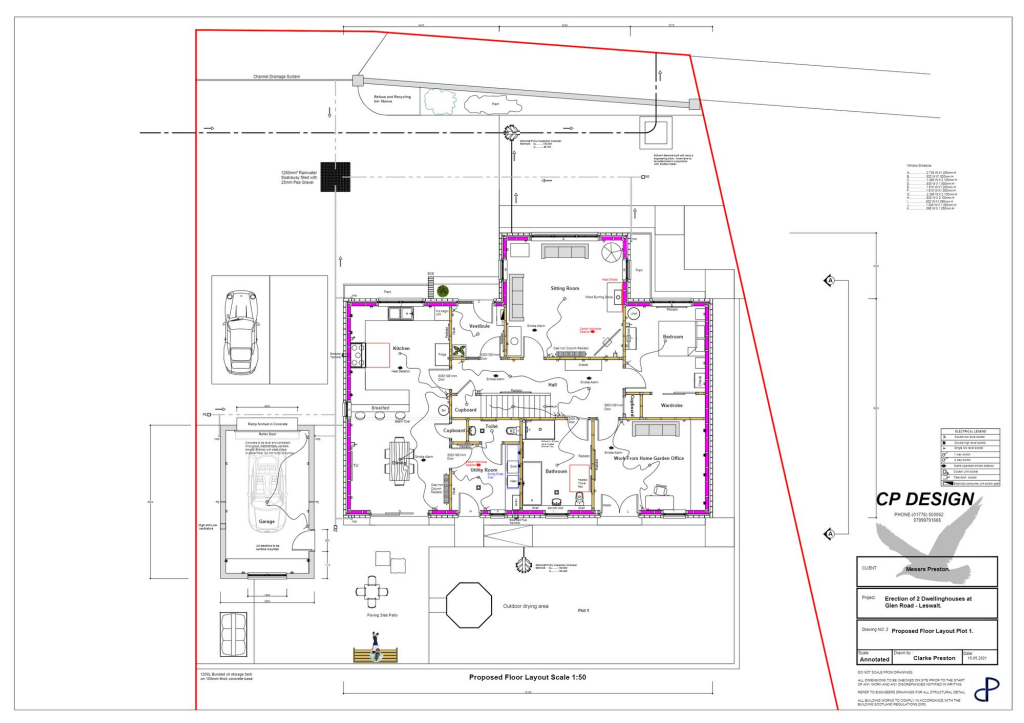
- **Planning Permission:** Approved for a dwellinghouse with a detached garage, with flexibility for single-storey design modifications.
- **Utilities Access:** All essential services are readily available adjacent to the site.
- **Investment Potential:** Ideal opportunity for property investment or custom home creation.
### Summary:
This unique building plot in the picturesque village of Leswalt offers an exceptional opportunity for buyers looking to craft their dream home in a tranquil setting. Priced at an attractive £32,500, the plot comes with planning permission for a home and detached garage, allowing for modifications to suit your vision, pending approval. Set within a charming community, this area provides access to local amenities, including leisure facilities, a school, and a supportive neighborhood environment.
While the region is classified as very deprived, this presents a chance to invest in a developing area, positioning yourself for future growth. The plot is equipped with essential services nearby, facilitating a straightforward construction process. Don't miss out on this prime investment opportunity; envision the possibilities that await in this beautiful rural locale!
Plot for sale in Glen Road, Leswalt, DG9 — £38,000 • 1 bed • 1 bath
Land for sale in St Ninian's Place, Portpatrick, DG9 — £60,000 • 1 bed • 1 bath
Land for sale in Loch Ryan, Cairnryan, Stranraer, Dumfries and Galloway, DG9 8QX, DG9 — £80,000 • 1 bed • 1 bath • 14617 ft²
Plot for sale in Plot at Challoch & Allandoo, DG9 — £150,000 • 1 bed • 1 bath
Land for sale in Meikle Float Steading, Sandhead, DG9 9LF, DG9 — £250,000 • 1 bed • 1 bath
5 bedroom house for sale in Monument View, Leswalt, DG9 — £347,500 • 5 bed • 2 bath • 2286 ft²






















