**Standout Features:**
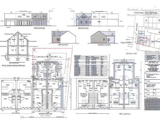
- **Planning History:** Previously granted planning consent for two 2-bedroom cottages (now expired).
- **Demolition Work:** Partial demolition has begun, and some materials are included in the sale.
- **Prime Location:** Central Holbeach, close to schools, shops, and amenities.
- **Excellent Connectivity:** Easy access to major roads including A17 and A151.
**Potential Concerns:**
- **Planning Reapplication Required:** New owners will need to reapply for planning consent.
- **Site Condition:** The area is currently uneven due to demolition work, and viewing is at the viewer's own risk.
This vacant development site offers a fantastic opportunity for investors or builders looking to create contemporary homes in Holbeach. With full planning consent previously granted for two cottages, the groundwork is already laid for your next project, and included materials provide a head start on construction. Nestled in the heart of Holbeach, the location ensures easy access to a wealth of local amenities, schools, and transport links, making it a desirable choice for families or potential renters.
Capable of accommodating modern living close to urban conveniences, this 130m² plot presents an exhilarating investment opportunity. However, potential buyers should be aware that they will need to navigate the reapplication process for planning permission. The site’s uneven landscape and ongoing works warrant caution during viewing, but savvy developers can visualize the enhanced living spaces that this land can yield. Secure this promising property before it’s gone—such opportunities don’t come around often!
Land for sale in Residential Development Site PE12 7BZ, PE12 — £89,950 • 1 bed • 1 bath • 1399 ft²
Land for sale in Fishpond Lane, Holbeach, Spalding, PE12 — £250,000 • 1 bed • 1 bath • 14506 ft²
Residential development for sale in Land at rear of 38 Fishpond Lane (off Farrow Avenue), PE12 7DE, PE12 — £250,000 • 1 bed • 1 bath • 14515 ft²
Residential development for sale in Garage Site At Hall Hill Road, Holbeach PE12 7JB, PE12 — £135,000 • 1 bed • 1 bath • 14446 ft²
Land for sale in Plot At The Old Black Horse, Holbeach clough. PE12 8DJ, PE12 — £80,000 • 1 bed • 1 bath • 2906 ft²
Residential development for sale in Adj. 51 Cowbit Road, PE11 2RJ, PE11 — £250,000 • 1 bed • 1 bath • 8875 ft²


































