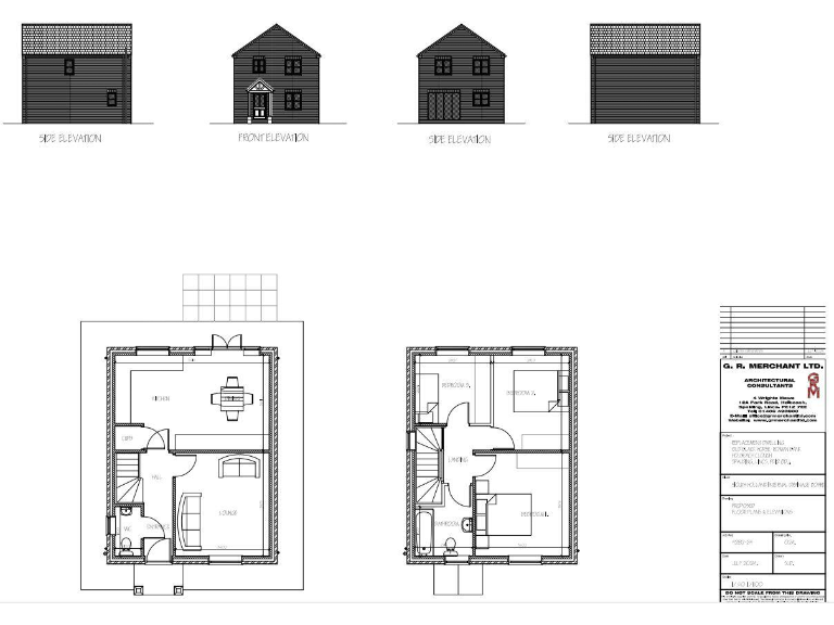
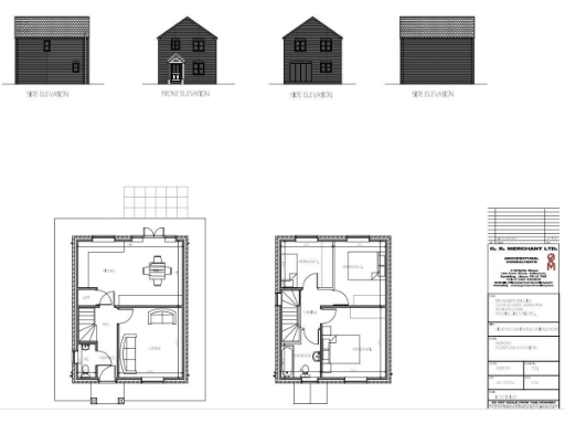
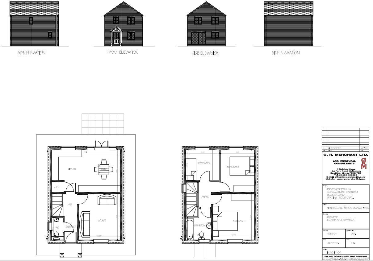
**Standout Features:**
- **Size:** Approximately 270m² plot with total potential square footage of 2906 sq. ft. when developed.
- **Planning Permission:** Full consent for a 3-bedroom detached house.
- **Location:** Central village position in Holbeach Clough with easy access to Holbeach and Spalding.
- **Condition:** Fenced on three sides but requires the purchaser to complete the western boundary.
- **Accessibility:** Mains utilities (electricity, water, drainage) believed to be nearby, but verification required.
**Concise Summary:**
Seize the opportunity to develop a substantial building plot in the charming village of Holbeach Clough, with full planning permission granted for a modern three-bedroom detached house. Spanning approximately 270m², this site is perfectly positioned in a tranquil residential area, just 1.5 miles from Holbeach's amenities including primary and secondary schools. The property benefits from existing fencing on three sides, offering a degree of privacy and security.
With the planning conditions largely compliant, and key services readily available nearby, this plot presents a unique chance for both first-time buyers looking to create their dream home or investors seeking renovation potential in a growing community. Transform this blank canvas into the house you've always envisioned, while enjoying the peaceful village lifestyle. This opportunity is not to be missed—reach out for more details and envision your future today!
Land for sale in Roman Bank, Holbeach Clough, PE12 8DJ, PE12 — £80,000 • 3 bed • 1 bath • 2614 ft²
Plot for sale in Penny Hill Road, Holbeach, Spalding, PE12 — £400,000 • 1 bed • 1 bath
Land for sale in Foxes Low Road, Holbeach, Lincolnshire, PE12 7PA, PE12 — £375,000 • 1 bed • 1 bath
Residential development for sale in Garage Site At Hall Hill Road, Holbeach PE12 7JB, PE12 — £135,000 • 1 bed • 1 bath • 14446 ft²
Land for sale in Land At Foxes Lowe, Whaplode St. Catharines, Spalding, PE12 — £285,000 • 1 bed • 1 bath • 21780 ft²
Land for sale in Stockwell Gate North, Whaplode, Lincolnshire, PE12 — £135,000 • 1 bed • 1 bath


































