**Standout Features:**
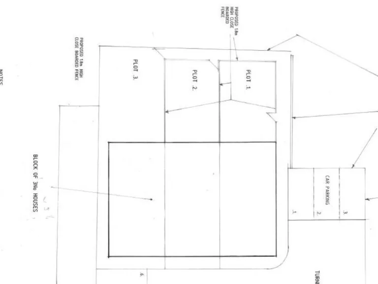
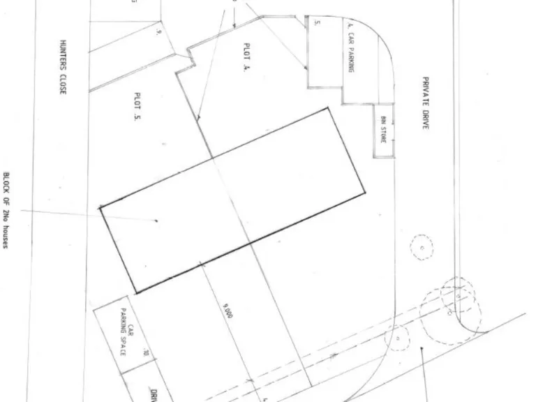
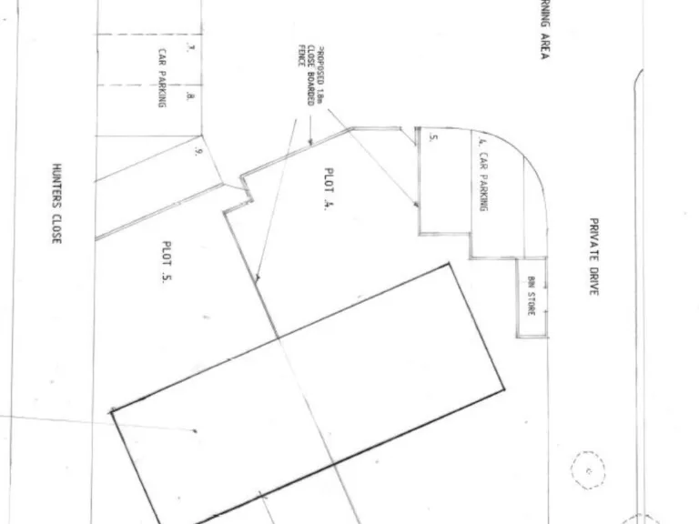
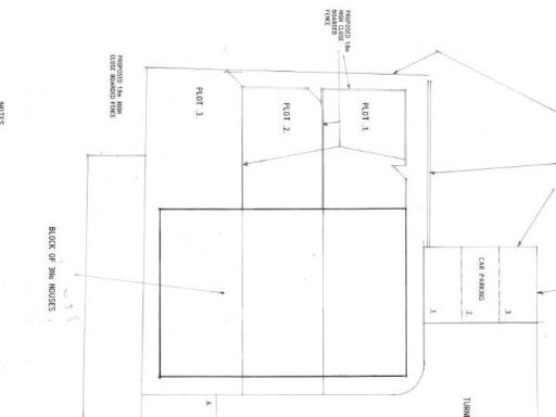
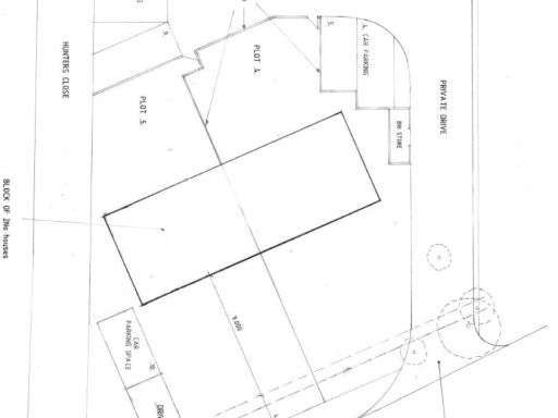
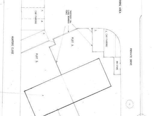
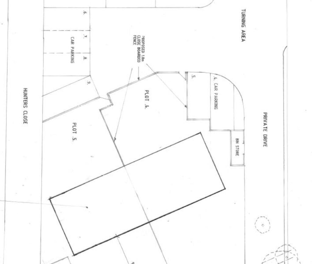
- **Development Potential**: Outline Planning Permission granted for 5 properties.
- **Size**: Approximately 1,351m² (0.33 acres), well-suited for housing projects.
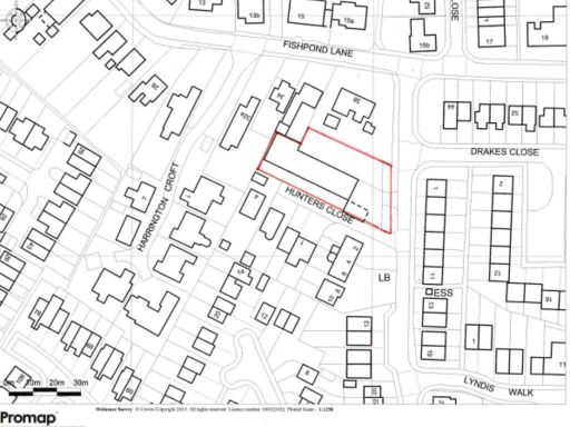
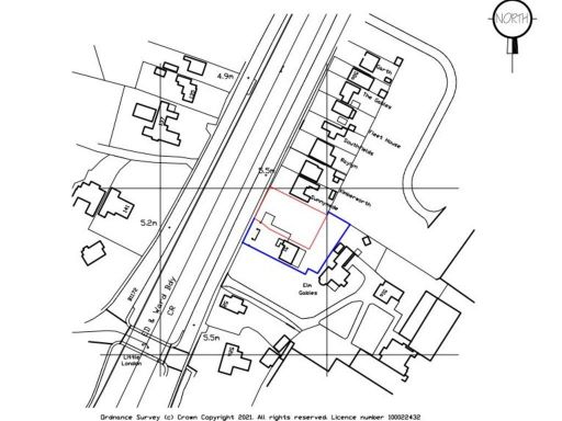
- **Location**: Central position within walking distance to Holbeach town amenities, schools, and healthcare.
- **Access**: Convenient access point from Farrow Avenue.
**Concerns:**
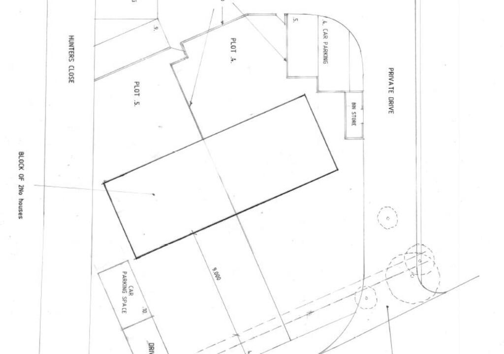
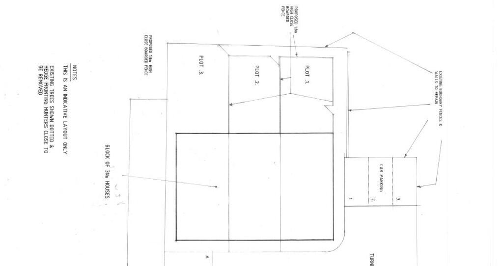
- **Existing Easement**: Internal Drainage Board byelaw restricts development in a 9m area across the front of the site.
- **Services**: Electricity is disconnected; only a water standpipe remains on-site. Additional inquiries will be needed for service connections.
---
This prime plot of development land on Fishpond Lane, Holbeach, presents an exciting opportunity for investors or developers, with outline planning consent recently granted for five residential units (three terrace houses and two semi-detached homes). Spanning approximately 1,351m² (0.33 acres), this rectangular site benefits from a central location and excellent access from Farrow Avenue, making it ideal for building modern family-oriented residences.
With its close proximity to reputable primary and secondary schools, as well as essential amenities including shops and a doctor's surgery, this location fulfills the needs of growing families and individuals alike. While the site may require some clearing and is subject to specific byelaws regarding development, the future potential is significant, especially given the local demand for housing. Given that the current planning consent predates new biodiversity measures, you can expect fewer hurdles in your development process.
This exceptional piece of land is priced attractively at £250,000 and is perfect for those looking to make a lasting impact on the community. Don’t miss out on the chance to create a desirable residential haven in a thriving town—act now while this opportunity lasts!
Residential development for sale in Land at rear of 38 Fishpond Lane (off Farrow Avenue), PE12 7DE, PE12 — £250,000 • 1 bed • 1 bath • 14515 ft²
Land for sale in Green Lane, Holbeach, PE12 7BZ, PE12 — £89,950 • 1 bed • 1 bath • 1400 ft²
Land for sale in Residential Development Site PE12 7BZ, PE12 — £89,950 • 1 bed • 1 bath • 1399 ft²
Industrial development for sale in Pinchbeck Road, PE11 1QF, PE11 — £275,000 • 1 bed • 1 bath
Industrial development for sale in Gore Lane, PE11 1BN, PE11 — £125,000 • 1 bed • 1 bath • 9106 ft²
Residential development for sale in Adj. 51 Cowbit Road, PE11 2RJ, PE11 — £250,000 • 1 bed • 1 bath • 8875 ft²






































