Build a bespoke 7,500 sq ft luxury home on a secluded 1.5-acre plot.
Full planning consent for 7,500 sq ft contemporary home
1.5-acre private plot with mature trees and gated access
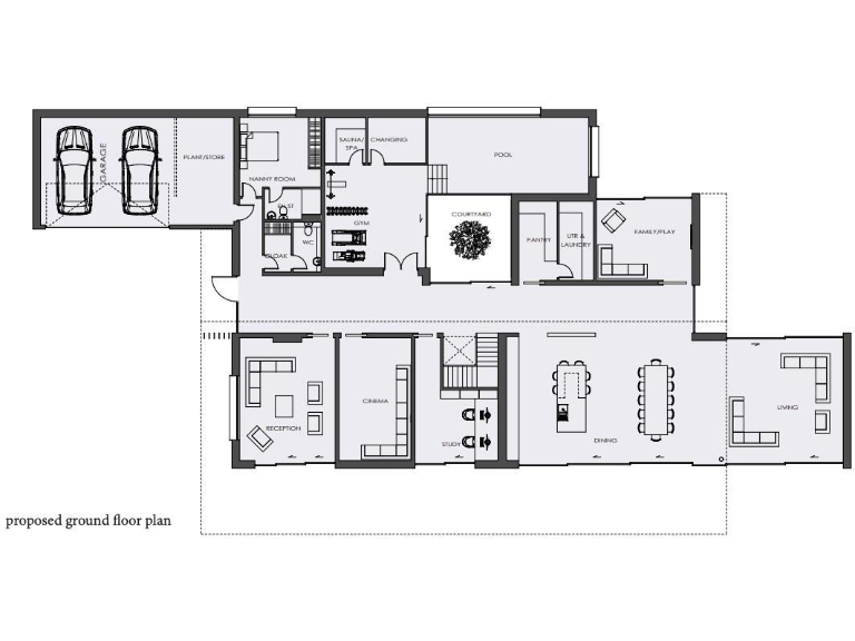
Approved indoor pool, sauna, gym and leisure complex
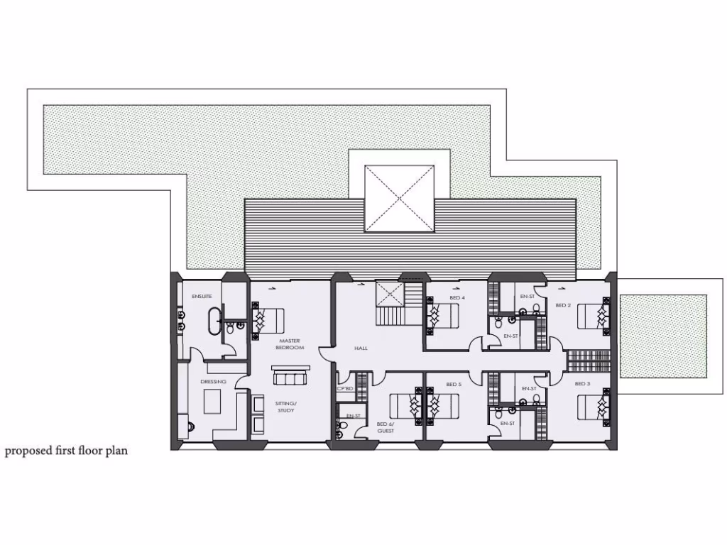
Six bedroom suites and six bathrooms in proposed layout
Double integral garage plus extensive off-street parking
No flood risk; very low local crime rate
Very slow broadband and high council tax to consider
Sale requires demolition of existing house before build
A rare 1.5-acre opportunity with full planning consent to replace the existing house with a 7,500 sq ft contemporary residence. The approved design includes six bedroom suites, six bathrooms, a central courtyard, a vast open-plan kitchen/diner/family “super room” and a separate leisure complex with an indoor pool, sauna and gym — ideal for a large family or purchaser wanting a turnkey high-spec project.
Set behind private gates on a mature, highly private plot (approx. 165 ft x 266 ft) overlooking Totteridge Valley and Darlands Nature Reserve, the site offers considerable seclusion while remaining accessible — Mill Hill Broadway’s shops and cafés are about a 10-minute drive away. The location benefits from very low local crime and no flood risk, with excellent mobile signal and plentiful on-site parking including a double integral garage.
Practical considerations: the sale is of the plot with planning consent, so the existing residence will be demolished and the new build constructed. Broadband speeds in the immediate area are very slow, and council tax for the area is described as very expensive — both worth factoring into long-term running costs. The property is freehold and sits in an affluent, inner-city cultural mix area with several highly rated local schools nearby.
This is best suited to buyers wanting to build a bespoke, high-end family home or those seeking an investment redevelopment with planning in place. The combination of a massive plot, approved contemporary design and secure, private position makes this a standout development opportunity in NW7.
Land for sale in Partingdale Lane, Mill Hill, London, NW7 — £3,650,000 • 1 bed • 1 bath • 7500 ft²
4 bedroom detached house for sale in Partingdale Lane, Mill Hill Village, NW7 — £3,450,000 • 4 bed • 2 bath • 3200 ft²
7 bedroom detached house for sale in Newlands Avenue, Radlett, Hertfordshire, WD7 — £2,700,000 • 7 bed • 7 bath • 7000 ft²
4 bedroom detached house for sale in Partingdale Lane, Mill Hill, London, NW7 — £3,450,000 • 4 bed • 2 bath • 3200 ft²
Land for sale in Beech Hill Avenue, Hadley Wood, Hertfordshire, EN4 — £3,500,000 • 1 bed • 1 bath
5 bedroom detached house for sale in Totteridge Common, Totteridge, London, N20 — £6,950,000 • 5 bed • 5 bath • 6770 ft²














































