Serviced 0.11 acre plot with planning for a large four-bedroom home, chain free.
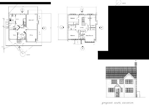
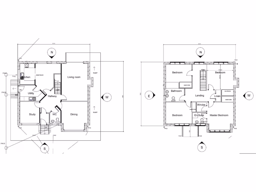
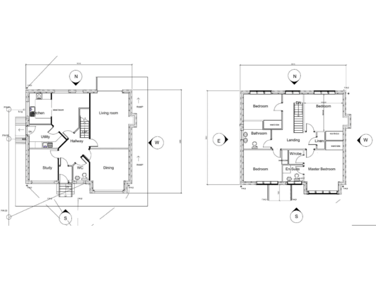
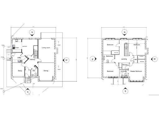
Outline planning permission for a four-bedroom detached house (B/23/0354)
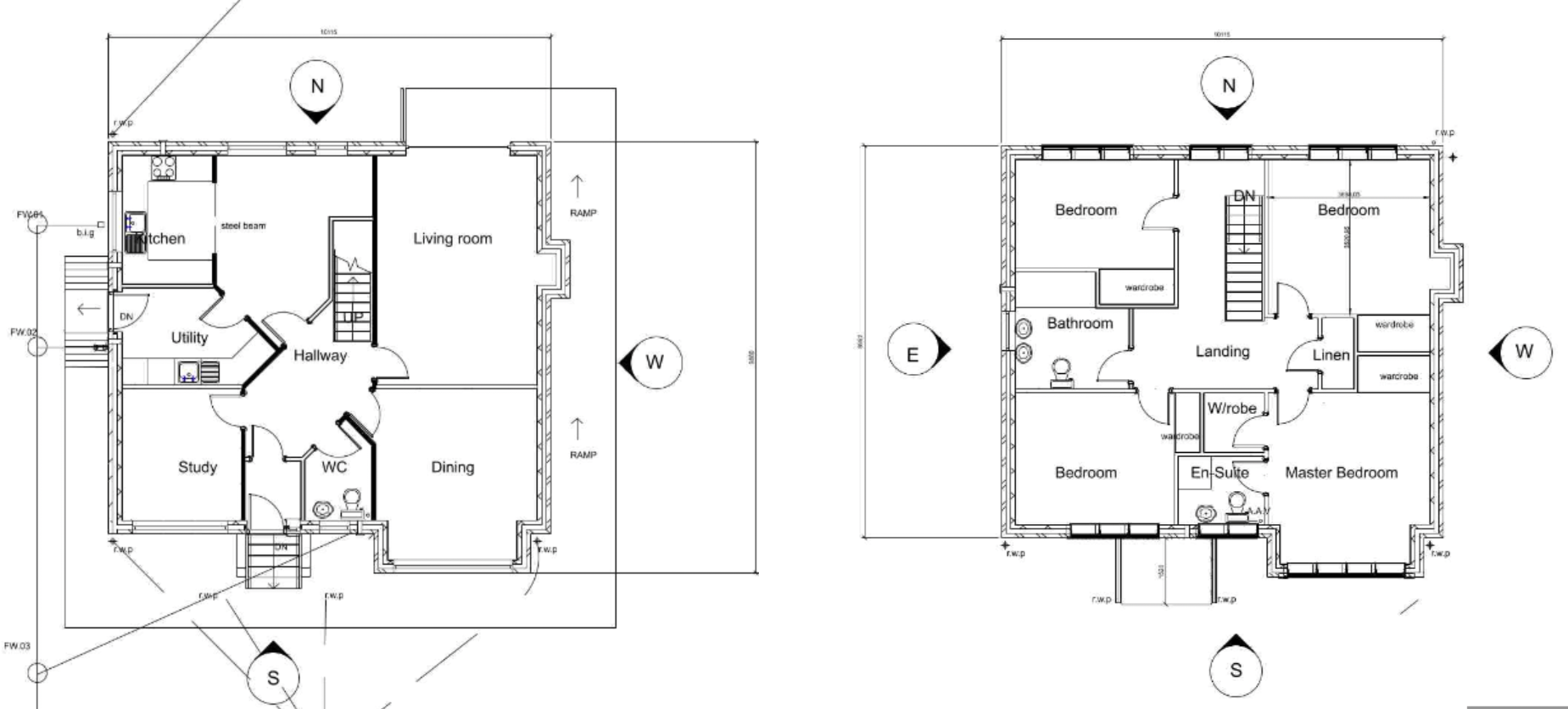
A rare fully serviced rectangular building plot in the centre of Freiston, offered chain free with road frontage and outline planning permission (B/23/0354) for a substantial four-bedroom detached house with detached garage. The approved scheme shows approximately 160 sqm (1,720 sqft) of accommodation across a traditional two-storey layout — generous living spaces, study, utility and an enclosed private rear garden. The plot was the former village hall and is level and ready for reserved matters or a new application subject to normal build consents.
This site will suit a family seeking a spacious new home in a sought-after Fenland village, or an investor/developer wanting a straightforward plot with planning history in place. Local services are close by: two pubs, a well-regarded butcher, village store and sporting amenities; Boston’s wider retail, hospital and transport links are about 3 miles away. The plot’s location close to the village centre is convenient for community facilities.
Buyers should note practical constraints: tenure is recorded as unknown and purchasers should confirm title and any covenants; the sale is offered on conditional or unconditional terms. Broadband speeds are very slow locally and the wider area shows relative deprivation statistics — factors to consider for resale or rental markets. There are no flood risk warnings for the site. Overall, this is a large, serviced village plot with approved plans that reduce planning risk but will still require a committed build programme and budget.
Plot for sale in Acorn Close, Freiston, Boston, PE22 — £105,000 • 4 bed • 2 bath
Commercial property for sale in West End Road, Wyberton, Boston, PE21 — £225,000 • 1 bed • 1 bath
Land for sale in Building Plot 2, Fen Road, Stickford, Boston, Lincolnshire, PE22 8HA, PE22 — £100,000 • 1 bed • 1 bath
Residential development for sale in Wyberton Low Road, Boston, Lincolnshire, PE21 — £600,000 • 1 bed • 1 bath
Land for sale in Building Plot 1, Fen Road, Stickford, Boston, Lincolnshire, PE22 8HA, PE22 — £100,000 • 1 bed • 1 bath
Land for sale in Wyberton, Boston (Lincolnshire), PE21 — £995,000 • 1 bed • 1 bath • 4029 ft²






























