Huge new-build three-storey home with garden and off‑street parking — ideal for families wanting space.
Large freehold three-storey house, approximately 2,248 sq ft
Bright kitchen/diner with French doors to a huge garden
Front living room; useful downstairs cloakroom
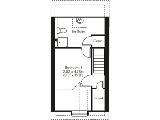
Large first-floor bedroom with en suite
Top-floor flexible space with handy storage cupboards
Allocated off‑street parking included
New build with contemporary finishes throughout
Area recorded as very deprived; check local services and comparables
This three-storey, freehold terraced home offers roomy, flexible living across 2,248 sq ft — a rare scale for an urban plot. The ground floor features a bright kitchen/diner with French doors to a large garden, plus a front-aspect living room and a handy downstairs cloakroom. Allocated off-street parking is included.
Upstairs provides practical family layout: a large first-floor bedroom with en suite, two further bedrooms and built-in storage cupboards on the top floor for a grown-up retreat, guest suite or teenage hangout. The property is new build, so you benefit from recent construction and contemporary finishes throughout.
Important practical notes: the home is in an area recorded as very deprived, which may affect local services and resale comparables. Only one main bathroom is listed (though there is an en suite and a cloakroom), and the council tax band has not yet been assigned. Prospective buyers should check local amenity provision and running costs before committing.
Overall, this property suits buyers who prioritise space and flexibility — families needing separate living areas and a large garden, or buyers seeking a roomy new-build home with scope to personalise finishes over time.
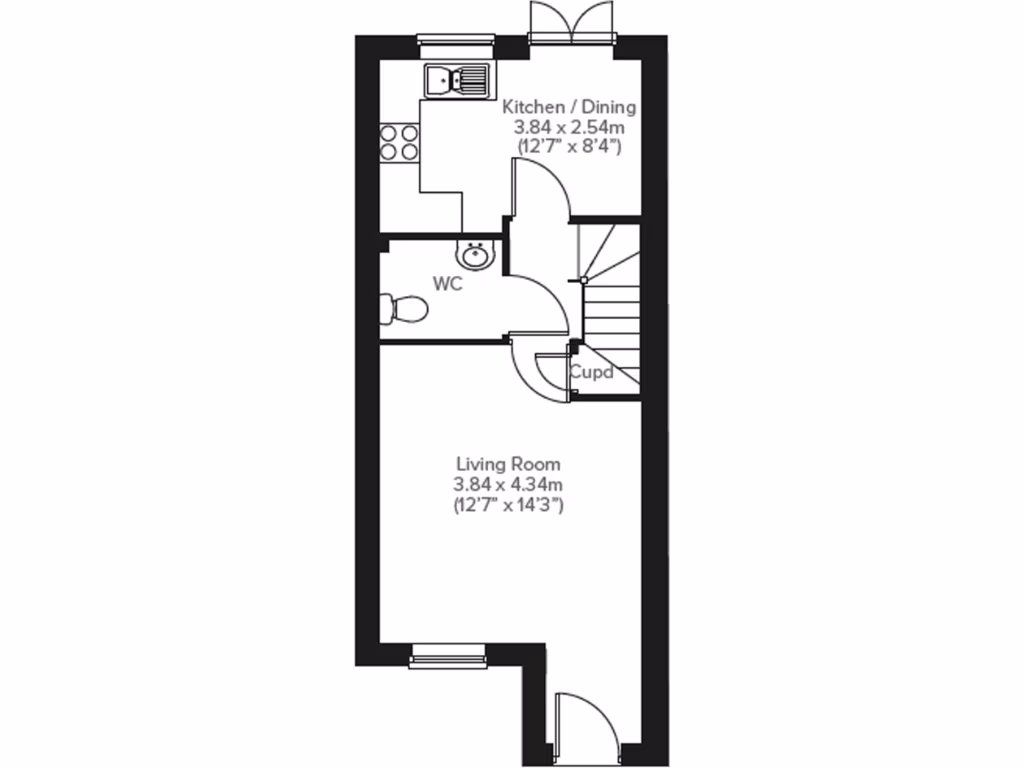
3 bedroom end of terrace house for sale in Swansea Road,
Swansea,
SA4 4HY, SA4 — £295,000 • 3 bed • 1 bath • 670 ft²
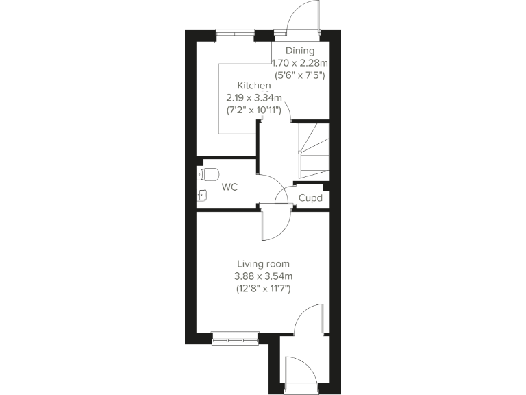
3 bedroom terraced house for sale in Swansea Road,
Swansea,
SA4 4HY, SA4 — £280,000 • 3 bed • 1 bath • 670 ft²
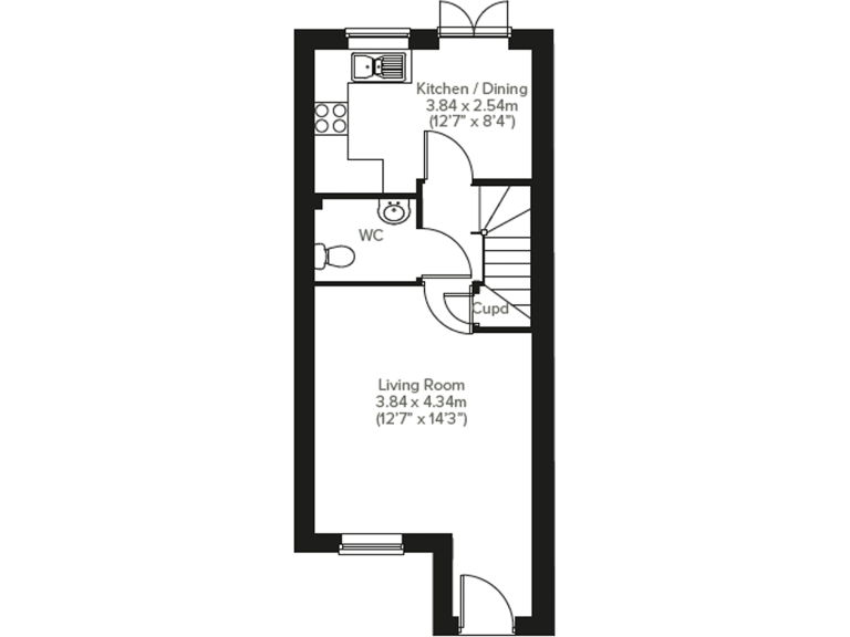
3 bedroom end of terrace house for sale in Swansea Road,
Swansea,
SA4 4HY, SA4 — £295,000 • 3 bed • 1 bath • 670 ft²
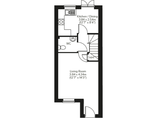
3 bedroom detached house for sale in Swansea Road,
Swansea,
SA4 4HY, SA4 — £340,000 • 3 bed • 1 bath • 686 ft²
3 bedroom terraced house for sale in Swansea Road,
Swansea,
SA4 4HY, SA4 — £269,995 • 3 bed • 1 bath • 574 ft²
3 bedroom detached house for sale in Swansea Road,
Swansea,
SA4 4HY, SA4 — £370,000 • 3 bed • 1 bath • 321 ft²


























































































































































































