**Standout Features:**
- New build end-of-terrace home
- Spacious three-story layout
- Bright kitchen/diner with French doors to garden
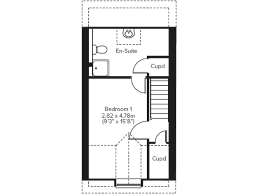
- Large first bedroom with en suite
- Off-street allocated parking
- Freehold tenure
**Potential Downsides:**
- Overall size is relatively small at 670 sq. ft.
- Located in a deprived area
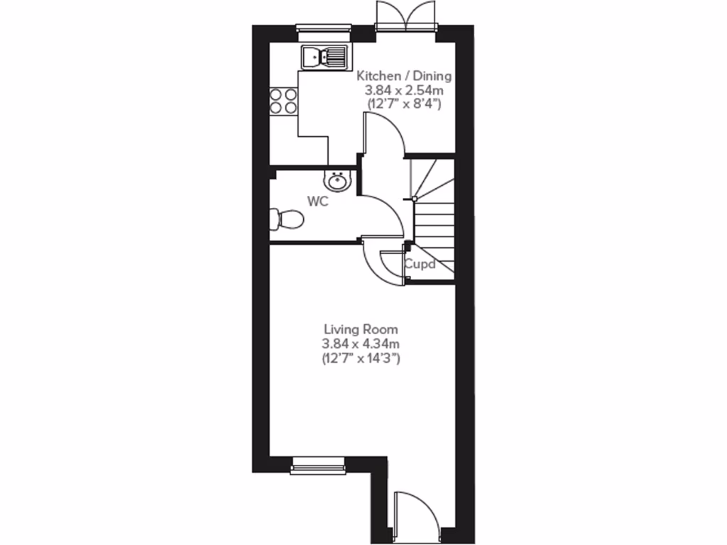
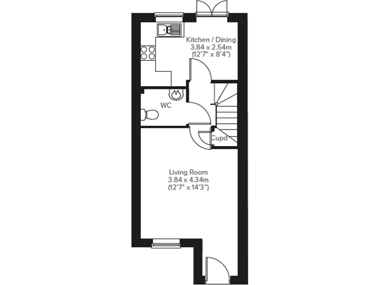
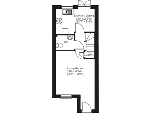
Nestled in the vibrant Cwrt Y Brenin development in Gorseinon, Swansea, this modern three-bedroom end-of-terrace home offers an abundance of light and space for families or first-time buyers. The spacious kitchen and dining area, with French doors that flow seamlessly into the landscaped garden, creates an inviting space for gatherings and relaxing afternoons. A front-facing living room adds charm to the ground floor along with a convenient downstairs cloakroom.
The large first bedroom with en suite provides ultimate comfort, while the second and third bedrooms on the first floor are well-sized and adaptable for various needs, from children's rooms to home offices. The unique third floor presents an excellent opportunity as a guest suite, teenage hideaway, or even a dedicated workspace.
While the property boasts modern construction and conveniences, prospective buyers should note its relatively small total area of 670 sq. ft. and its location within an area classified as deprived. However, as a freehold property with off-street parking and room for personal touches, it presents a promising investment for those looking to enter the housing market or those desiring a low-maintenance lifestyle. Don't miss out on this opportunity— properties like this in Gorseinon tend to attract interest quickly!
3 bedroom end of terrace house for sale in Swansea Road,
Swansea,
SA4 4HY, SA4 — £295,000 • 3 bed • 1 bath • 670 ft²
3 bedroom terraced house for sale in Swansea Road,
Swansea,
SA4 4HY, SA4 — £280,000 • 3 bed • 1 bath • 670 ft²
3 bedroom terraced house for sale in Swansea Road,
Swansea,
SA4 4HY, SA4 — £269,995 • 3 bed • 1 bath • 574 ft²
3 bedroom detached house for sale in Swansea Road,
Swansea,
SA4 4HY, SA4 — £370,000 • 3 bed • 1 bath • 321 ft²
3 bedroom end of terrace house for sale in Swansea Road,
Swansea,
SA4 4HY, SA4 — £279,995 • 3 bed • 1 bath • 571 ft²
3 bedroom detached house for sale in Swansea Road,
Swansea,
SA4 4HY, SA4 — £340,000 • 3 bed • 1 bath • 685 ft²


































