**Standout Features:**
- Newly built end-of-terrace house
- Three spacious levels
- Bright kitchen/diner with French doors leading to the garden
- Large master bedroom with en-suite
- Ample storage space on the second floor
- Off-street parking
- Chain-free sale
**Concerns:**
- Small overall size (670 sq ft)
- Located in a deprived area
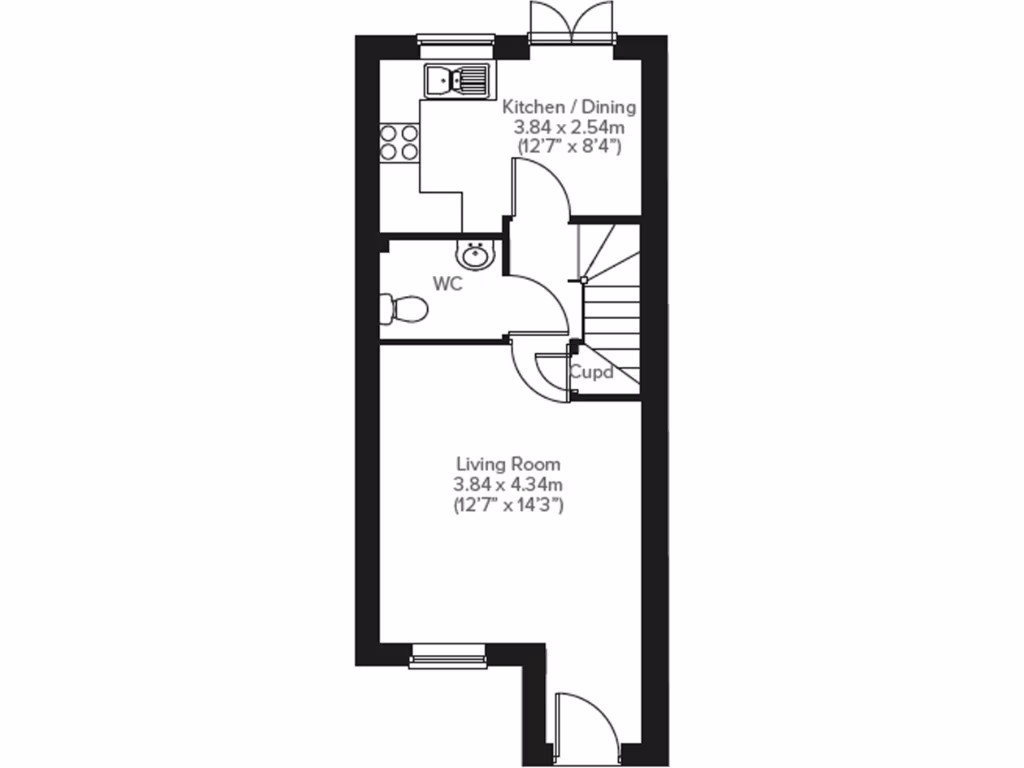
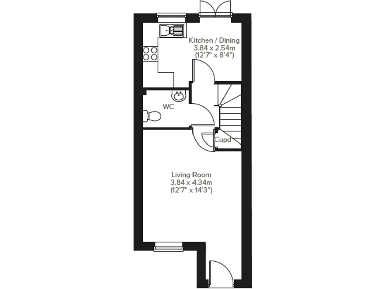
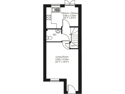
This charming, newly built end-of-terrace home offers a unique opportunity for families and first-time buyers looking for a blend of space and modern convenience. Spread across three thoughtfully designed floors, the home's bright kitchen and dining area feature elegant French doors that open up to a delightful garden, perfect for weekend BBQs or playtime with children. The spacious front living room provides a cozy retreat, while a large first bedroom with an en-suite ensures comfort and privacy.
With a total of three bedrooms, including a versatile top-floor space ideal for guests or teenagers, this home combines functionality with style. The property comes with valuable off-street parking and convenient storage options throughout, enhancing everyday living. While the overall size is small and the location indicates some area deprivation, the modern amenities and desirable layout offer significant potential.
Don’t miss out—this inviting property exemplifies contemporary living at an affordable price, ensuring you can envision yourself settling down and making it your own.
3 bedroom end of terrace house for sale in Swansea Road,
Swansea,
SA4 4HY, SA4 — £295,000 • 3 bed • 1 bath • 670 ft²
3 bedroom terraced house for sale in Swansea Road,
Swansea,
SA4 4HY, SA4 — £280,000 • 3 bed • 1 bath • 670 ft²
3 bedroom end of terrace house for sale in Swansea Road,
Swansea,
SA4 4HY, SA4 — £279,995 • 3 bed • 1 bath • 571 ft²
3 bedroom detached house for sale in Swansea Road,
Swansea,
SA4 4HY, SA4 — £370,000 • 3 bed • 1 bath • 321 ft²
3 bedroom terraced house for sale in Swansea Road,
Swansea,
SA4 4HY, SA4 — £269,995 • 3 bed • 1 bath • 574 ft²
3 bedroom detached house for sale in Swansea Road,
Swansea,
SA4 4HY, SA4 — £340,000 • 3 bed • 1 bath • 685 ft²


































