Substantial farmhouse with immediate yard and grazing, ideal for farming or equestrian use.
Approximately 61.34 acres of Grade 3 pasture in two main parcels
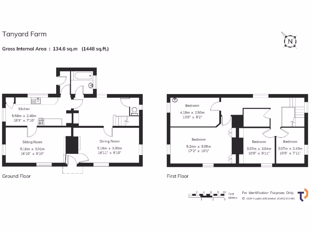
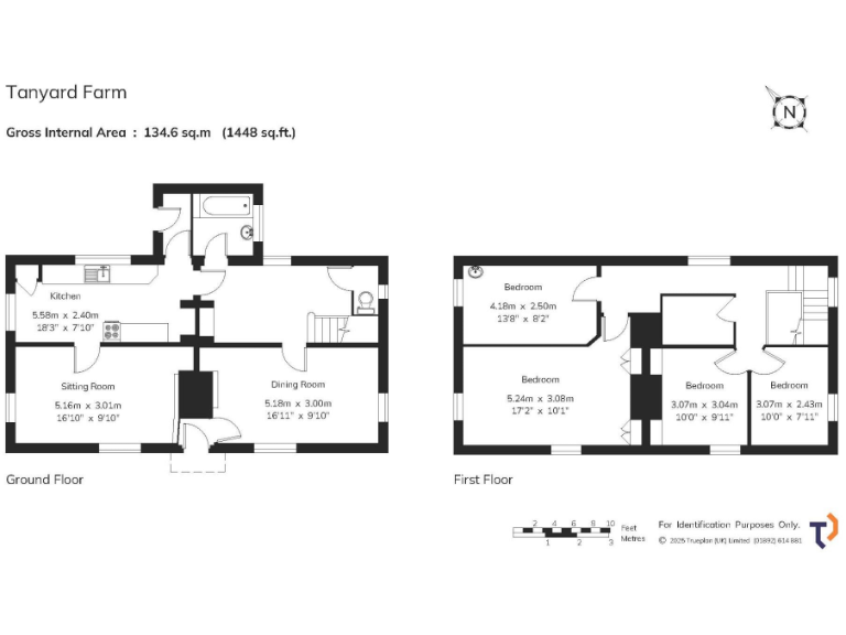
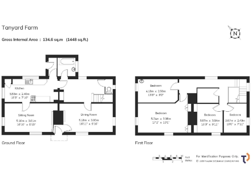
Tanyard Farm is a substantial four-bedroom farmhouse set in about 61.34 acres of Grade 3 pasture, with an extensive range of agricultural outbuildings totalling roughly 24,407 ft². The house offers traditional farmhouse rooms — sitting and dining rooms with open fireplaces, a practical kitchen, boot room and four first-floor bedrooms — set within a hedge-enclosed lawned garden with glasshouse and useful brick outbuildings.
The yard buildings and large arable/pasture parcels suit continued livestock, livery or mixed farming uses, and there is potential for equestrian enterprise or small-scale diversification. A further 37-acre off-lying pasture parcel is offered separately, which could be added to expand grazing or enterprise scope.
Practical matters to note: the farmhouse has an EPC rating of E, council tax Band G (relatively expensive) and private drainage. The sale is subject to a 25% overage provision if additional residential planning consent is granted within 25 years. Purchasers should verify boundaries, services and acreages on inspection.
This holding will appeal to buyers seeking a productive country farm with immediate usable buildings and pasture, or those looking to expand an existing agricultural or equestrian business. The property’s rural location offers low crime, quiet surroundings and links to nearby Heathfield and Buxted station for wider travel.
4 bedroom farm house for sale in Lot 1, Poppinghole Lane, Robertsbridge, TN32 — £710,000 • 4 bed • 3 bath • 2000 ft²
Equestrian facility for sale in Cottage Lane, Westfield, Hastings, TN35 — £1,500,000 • 4 bed • 1 bath • 2875 ft²
4 bedroom farm house for sale in Selsfield Road, RH17 — £2,000,000 • 4 bed • 2 bath • 15600 ft²
5 bedroom detached house for sale in Whitehouse Lane, Waldron, East Sussex, TN21 0QY, TN21 — £1,750,000 • 5 bed • 5 bath • 1840 ft²
4 bedroom farm house for sale in Poppinghole Lane, Robertsbridge, TN32 — £2,135,000 • 4 bed • 3 bath • 25000 ft²
6 bedroom detached house for sale in Bodle Street Green, Heathfield, East Sussex, BN27 — £3,250,000 • 6 bed • 1 bath














































































