Rare rural holding with valley panoramas and established equestrian infrastructure.
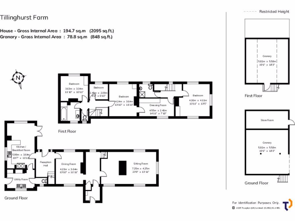
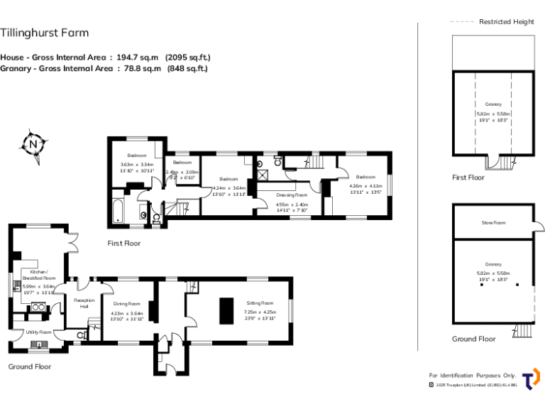
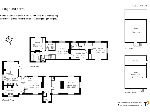
Detached four-bedroom farmhouse reverted from two cottages
Tillinghurst sits at the heart of an extensive 80.79-acre holding with sweeping views over the Loder Valley. The detached four-bedroom farmhouse, reinstated from two cottages, provides spacious family living with a large rear lawn and direct access to paddocks and woodland. Its scale and position make it ideal for buyers seeking privacy, equestrian use or an agricultural smallholding.
The estate includes substantial agricultural buildings — cattle barn, hay and machine barns, tractor store and a detached granary — totalling over 15,600 ft². Multiple stable blocks provide around 12 loose boxes plus tack and feed stores, supporting continued equestrian activity. A former menage is present but currently disused and requires refurbishment before reuse.
The property requires modernisation throughout; services, fittings and internal finishes will need updating to contemporary standards. Broadband speeds are very slow despite excellent mobile signal; buyers reliant on high-speed internet should factor this in. The holding is freehold, with good vehicular access via a private sweeping drive and low flood risk.
This is a rare rural opportunity for families wanting space and established farm infrastructure, or for purchasers seeking an income-producing equestrian/agricultural base. The scale and range of outbuildings also offer scope for conversion or repurposing subject to consents. Important matters such as boundaries, rights of way and service details should be checked in the full property particulars.
4 bedroom detached house for sale in Waldron, Nr Heathfield, East Sussex, TN21 — £1,750,000 • 4 bed • 1 bath • 1448 ft²
7 bedroom detached house for sale in Wineham Lane, Bolney, RH17 — £4,100,000 • 7 bed • 5 bath • 3940 ft²
4 bedroom detached house for sale in Hare Lane, Lingfield, Surrey, RH7 — £1,950,000 • 4 bed • 2 bath • 2161 ft²
4 bedroom detached house for sale in London Road, Balcombe, Haywards Heath, West Sussex, RH17 — £1,450,000 • 4 bed • 2 bath • 2035 ft²
6 bedroom detached house for sale in Fairlight Farm, Holtye Road, East Grinstead, West Sussex, RH19 — £2,000,000 • 6 bed • 5 bath • 4104 ft²
4 bedroom farm house for sale in Lot 1, Poppinghole Lane, Robertsbridge, TN32 — £710,000 • 4 bed • 3 bath • 2000 ft²


















































































































