Freehold development plot with planning consent near transport and shops.
Freehold plot with planning permission for two-bed detached house
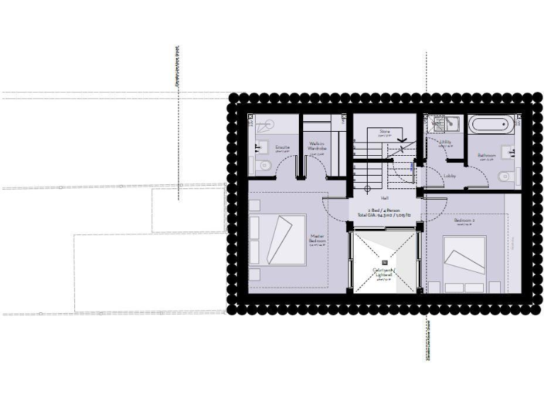
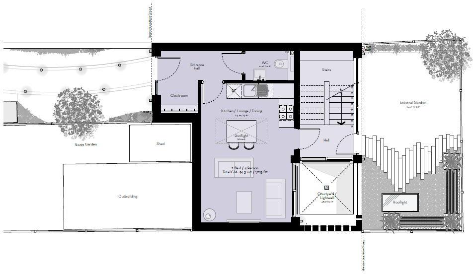
A rare freehold development plot in North Finchley with planning permission (ref: 21/3970/FUL) for a modern two-bedroom, two-bathroom detached house over ground and lower-ground floors. The site is offered with vacant possession and sits within easy reach of shops, cafes and multiple Overground/Underground connections, making it attractive for small developers or investors seeking a short-build opportunity in an affluent area.
The approved design proposes a contemporary, eco-friendly home with a private garden and lower ground living space, maximising 1,209 sq ft of internal area on a relatively small plot. Fast broadband and excellent mobile signal support modern living and potential rental appeal; nearby highly rated schools add family-market demand.
Buyers should note the plot size is small and the site will require construction to deliver the approved dwelling; the sale is for land only and no existing habitable building is included. Crime levels are reported above average locally, and council tax details are not provided. The opportunity is strongest for purchasers comfortable managing a new-build project under the existing planning consent.
Land for sale in Woodside Avenue, Woodside Park, London, N12 — £1,750,000 • 1 bed • 1 bath
Land for sale in Holly Park Gardens, London, N3 — £1,625,000 • 1 bed • 1 bath • 2440 ft²
Land for sale in Brookhill Road, Barnet, EN4 — £300,000 • 1 bed • 1 bath • 1147 ft²
Land for sale in Woodside Avenue, London, N12 — £1,750,000 • 1 bed • 1 bath • 23087 ft²
Land for sale in Rosemary Avenue, London, N3 — £100,000 • 1 bed • 1 bath • 1453 ft²
Land for sale in Beech Hill Avenue, Hadley Wood, Hertfordshire, EN4 — £3,500,000 • 1 bed • 1 bath






















