N12 8BG - 1 bed woodside avenue development in Chipping Barnet, N12 8…

View on Property Piper

Land for sale in Woodside Avenue, London, N12

Summary - Woodside Avenue, London, N12 N12 8BG

1 bed 1 bath Land

Permitted scheme on a large freehold plot near Woodside Park station.
Planning permission granted Sept 2024 for six apartments (ref 23/3485/FUL)
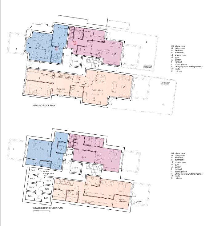
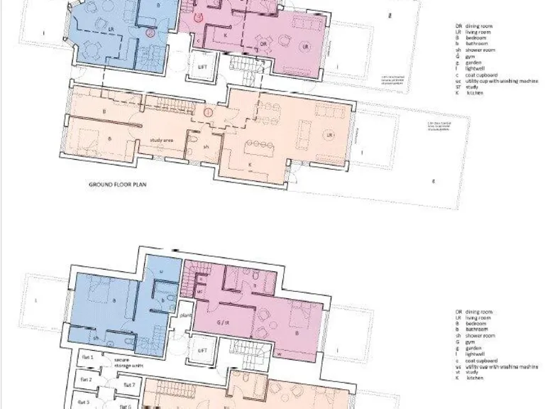
A rare development plot with planning permission in Woodside Park — permission granted September 2024 (ref: 23/3485/FUL) for a new block of six apartments with secure storage and off-street parking. The site extends to approximately 2,165 sqm (0.53 acres) and offers a mixed schedule of accommodation across lower‑ground, ground, first and second floors, providing a useful blend of two- and three-bed units suitable for lettings or owner-occupiers.

The location is the plot’s strength: a short walk to Woodside Park Underground station and within easy reach of North Finchley shopping centre. Local schools include several Good and Outstanding-rated options, making the development attractive to young families and professionals. The plot is freehold, has no flood risk, excellent mobile signal and fast broadband — practical advantages for future residents and management.

Buyers should note this is a development opportunity requiring full construction and project management. CIL liability is estimated at £157,915.81; other build costs, statutory fees and potential planning conditions will apply. There is a probable absence of Section 106 obligations, but purchasers must confirm final liabilities with the council and factor in build programme, contractor selection and ongoing maintenance.

This opportunity suits an experienced investor or small developer able to take a permitted scheme through construction. The approved scheme reduces planning risk and accelerates the route to delivery, but successful completion will depend on careful cost control and procurement to deliver the permitted apartments and realise rental or sale value.

Property Details

Image Descriptions

Textual Property Features

Target Audience

AI Tags

Detected Visual Features

Nearby Schools

Nearest Bars And Restaurants

,,,,}

Nearest General Shops

,,}

Nearest Grocery shops

,,}

Nearest Supermarkets

,,}

Nearest Religious buildings

,,}

Nearest Medical buildings

,,,}

Nearest Airports

,}

Nearest Leisure Facilities

,,,,}

Nearest Tourist attractions

,,}

Nearest Train stations

,,,,}

Nearest Bus stations and stops

,,,,}

Nearest Hotels

,,}

Tags

Local Market Stats

AirBnB Data

Similar Properties

Meta

High Res Images

Compatible Images

Low res Images

Thumbnails

Raw Images