**Standout Features:**
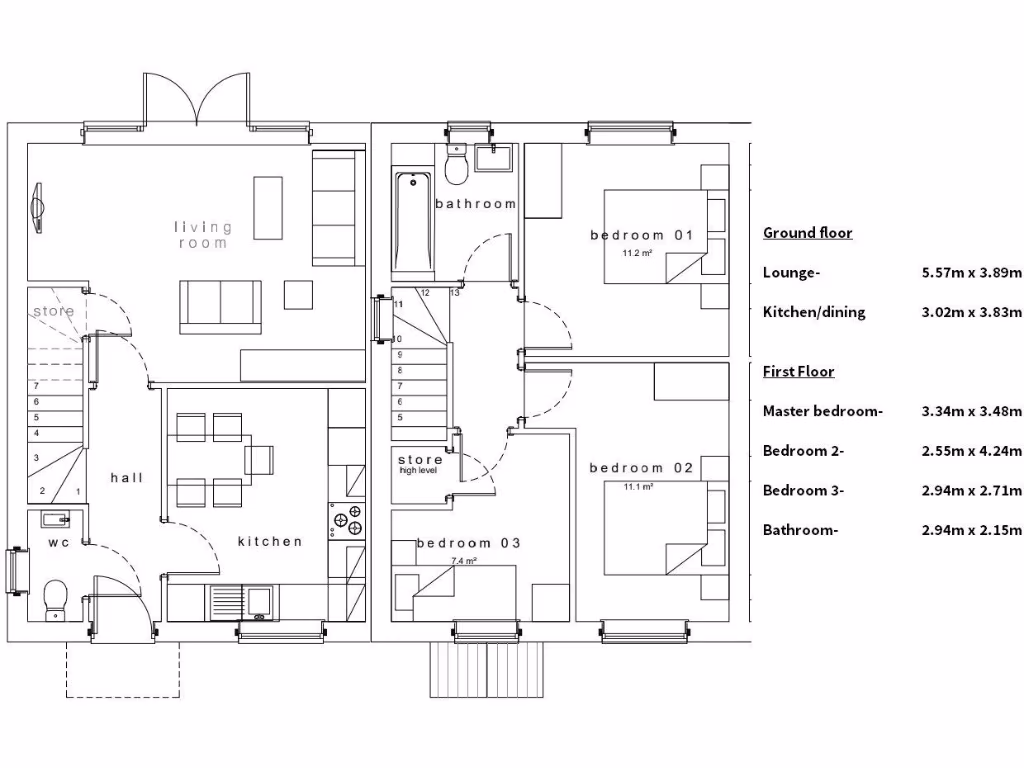
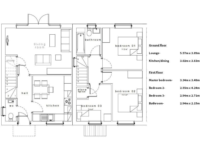
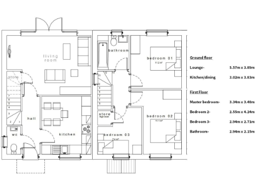
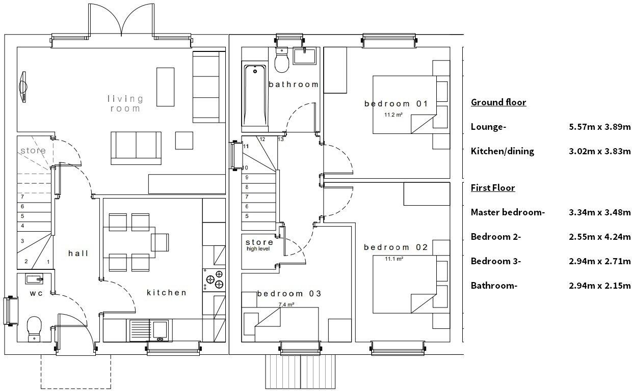
- 3 Bedrooms, 1 Bathroom in a semi-detached layout
- Modern, new build with 897 sq ft of space
- Located in the picturesque village of Marden, just 6 miles from Hereford
- Off-street parking for 2 vehicles
- Shared ownership pricing at £120,225 (35% share)
- Rental payment of £562.02 per month
- Ready for occupancy by January/February 2026
**Potential Downsides:**
- Leasehold property with a maximum shareholding of 80%
- Must have a local connection to purchase (live, work, or have relatives in Herefordshire)
- No insulation recorded in cavity walls
Explore the charm of rural living in this modern three-bedroom semi-detached home in Marden, a delightful village with low crime rates and excellent amenities. Perfect for families or first-time buyers seeking comfort, this property is an exceptional opportunity in an affluent area. Enjoy a bright, airy interior that includes a welcoming entrance hall, spacious lounge, and an inviting kitchen/dining area. The first floor boasts three generously-sized bedrooms and a family bathroom.
Outside, you'll find a lovely garden and two off-street parking spaces. Located close to community essentials such as primary schools and local shops, and with easy access to Hereford’s transport links, this home provides a perfect blend of tranquility and convenience.
Act quickly to reserve your spot—availability is limited for this attractive shared ownership option. Imagine the potential for future growth in both your home and community!
3 bedroom semi-detached house for sale in Plot 36 Giorgia, Cherry Orchard, Marden, Herefordshire, HR1 — £120,750 • 3 bed • 1 bath • 897 ft²
3 bedroom semi-detached house for sale in Plot 35 Giorgia, Cherry Orchard, Marden, Herefordshire, HR1 — £120,750 • 3 bed • 1 bath • 897 ft²
3 bedroom semi-detached house for sale in Cherry Orchard, Marden, Herefordshire, HR1 — £120,750 • 3 bed • 1 bath • 897 ft²
2 bedroom semi-detached house for sale in Plot 64 Wellington, Cherry Orchard, Marden, Herefordshire, HR1 — £118,000 • 2 bed • 1 bath • 813 ft²
2 bedroom semi-detached house for sale in Cherry Orchard, Marden, Herefordshire, HR1 — £118,000 • 2 bed • 1 bath • 813 ft²
3 bedroom semi-detached house for sale in The Spires, Moreton-on-Lugg, Hereford, Herefordshire, HR4 — £126,900 • 3 bed • 1 bath • 915 ft²






























