**Standout Features:**
- Newly built, modern semi-detached 2-bedroom property (813 sq ft)
- Shared ownership opportunity (40% share with potential for 80%)
- Off-street parking for 2 vehicles
- Located in the tranquil village of Marden with excellent connectivity
- Fast broadband and mobile signal for modern living
- Close proximity to primary education options with strong Ofsted ratings
**Potential Concerns:**
- Leasehold tenure may have additional fees
- Future purchase of additional shares is limited to 80%
- Insulation in cavity walls is assumed but not confirmed
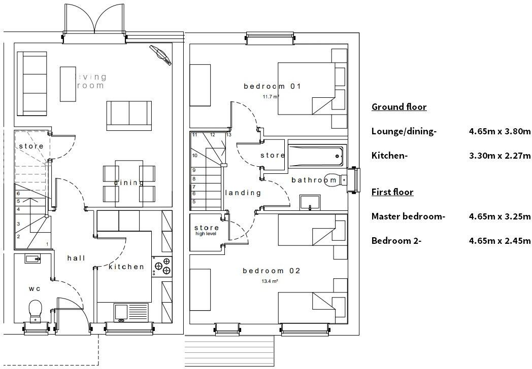
Welcome to Unit 65, a stylish and inviting modern home nestled in the beautiful village of Marden, just six miles from Hereford. This semi-detached property features a convenient entrance hall leading to an open lounge and an airy kitchen/dining space, perfect for family gatherings. Upstairs, you’ll find two well-proportioned bedrooms and a family bathroom.
Offered at an impressive price of £118,000 based on a 40% share, this property provides an extraordinary chance for first-time buyers or those looking to downsize in an affluent and peaceful rural setting. With a local bus service connecting you to the heart of Hereford and local amenities such as a post office and village stores, this home balances country charm with essential conveniences. This exclusive opportunity is available to reserve now, with occupancy set for January/February 2026. Experience secure and serene village living today – your future home awaits!
2 bedroom semi-detached house for sale in Plot 64 Wellington, Cherry Orchard, Marden, Herefordshire, HR1 — £118,000 • 2 bed • 1 bath • 813 ft²
3 bedroom semi-detached house for sale in Cherry Orchard, Marden, Herefordshire, HR1 — £120,225 • 3 bed • 1 bath • 897 ft²
3 bedroom semi-detached house for sale in Cherry Orchard, Marden, Herefordshire, HR1 — £120,750 • 3 bed • 1 bath • 897 ft²
3 bedroom semi-detached house for sale in Plot 36 Giorgia, Cherry Orchard, Marden, Herefordshire, HR1 — £120,750 • 3 bed • 1 bath • 897 ft²
3 bedroom semi-detached house for sale in Plot 35 Giorgia, Cherry Orchard, Marden, Herefordshire, HR1 — £120,750 • 3 bed • 1 bath • 897 ft²
2 bedroom semi-detached house for sale in Oakfields, Off A480, Credenhill, Hereford, HR4 — £116,000 • 2 bed • 1 bath • 860 ft²






























