**Standout Features:**
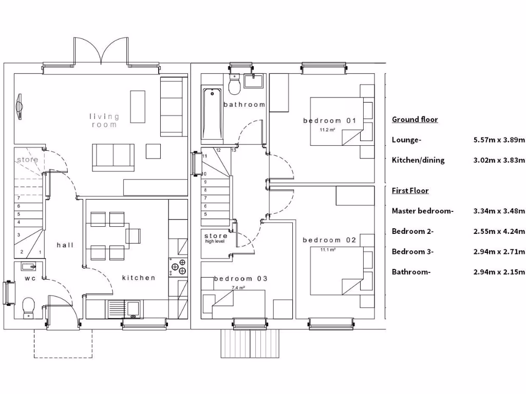
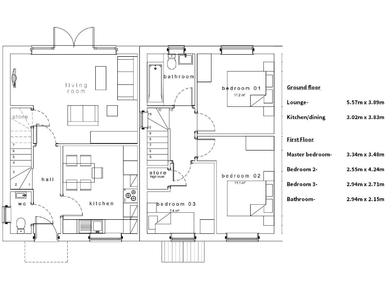
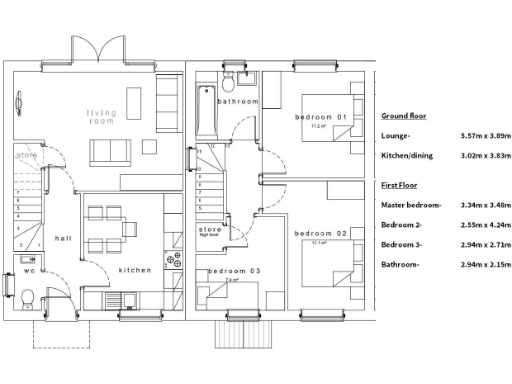
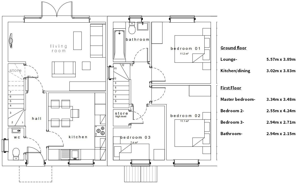
- 3 Bedrooms, 1 Bathroom, Semi-Detached Home (897 sq ft)
- New build with modern design, ready to occupy January/February 2026
- Shared ownership: 35% share available with potential up to 80%
- Off-street parking with 2 spaces
- Located in a scenic, rural village (Marden) near Hereford
- Low crime rates and strong community amenities
**Potential Downsides:**
- Leasehold arrangement with rental obligation of £562.26 pcm
- Local connection required for purchase
- Cavity walls assumed to have no insulation
Discover your future home in the picturesque village of Marden, where rural tranquility meets modern convenience. This newly constructed three-bedroom semi-detached property, offering 897 square feet of living space, is an ideal opportunity for families or first-time buyers seeking an affordable entry into the housing market. With a shared ownership model, secure your 35% stake now, with the option to increase to 80% in the future, all while enjoying a low-deprivation, affluent area.
The home features a welcoming entrance hall, spacious kitchen/dining room, and a cozy lounge, alongside three inviting bedrooms on the first floor. The property boasts off-street parking for two vehicles, enhancing its attractiveness. Marden offers a friendly community atmosphere with key local amenities, including a primary school and regular bus service to Hereford, ensuring connections to broader educational and transport options.
While the property currently has no insulation in its cavity walls and necessitates a local connection for purchase, its value is accentuated by potential future equity and community ties. Don’t miss out on this fantastic opportunity to secure a modern home in a vibrant village – available for reservation now!
3 bedroom semi-detached house for sale in Plot 35 Giorgia, Cherry Orchard, Marden, Herefordshire, HR1 — £120,750 • 3 bed • 1 bath • 897 ft²
3 bedroom semi-detached house for sale in Cherry Orchard, Marden, Herefordshire, HR1 — £120,750 • 3 bed • 1 bath • 897 ft²
3 bedroom semi-detached house for sale in Cherry Orchard, Marden, Herefordshire, HR1 — £120,225 • 3 bed • 1 bath • 897 ft²
2 bedroom semi-detached house for sale in Plot 64 Wellington, Cherry Orchard, Marden, Herefordshire, HR1 — £118,000 • 2 bed • 1 bath • 813 ft²
2 bedroom semi-detached house for sale in Cherry Orchard, Marden, Herefordshire, HR1 — £118,000 • 2 bed • 1 bath • 813 ft²
2 bedroom semi-detached house for sale in Plot 69 The Windsor, Cherry Orchard, Marden, Hereford, HR1 — £295,000 • 2 bed • 1 bath • 813 ft²






























