Affordable shared-ownership home near Hereford with garden and two parking spaces.
Two-bedroom semi-detached home, 813 sq ft
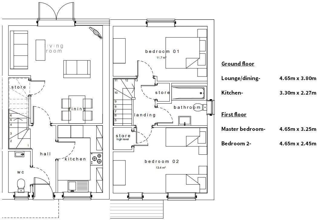
Plot 64, Wellington style, is a two-bedroom semi-detached home offered as a 40% shared-ownership opportunity in the village of Marden. At 813 sq ft the layout is traditional and practical: entrance hall, cloakroom, lounge, kitchen/dining room, two bedrooms, family bathroom and useful storage. The property includes a garden and two off-street parking spaces and is described as ready to occupy January/February 2026.
This home suits first-time buyers seeking an affordable route onto the local market. The asking price reflects a 40% share (£118,000) with an additional rent charge of £452.22 pcm; future purchases are capped at an 80% share. The lease has about 124 years remaining and tenure is leasehold, so buyers should budget for ongoing service/ground rent and confirm any management terms.
Practical attributes include mains gas central heating, double glazing and fast broadband/mobile signal in a very low-crime, affluent rural village. Important points to check before reservation: the shared-ownership restrictions require a local connection (live, work or have a relative in Herefordshire), leasehold obligations, and any estate or development service charges. The property offers sensible living space and low-maintenance exterior, making it a straightforward first home in a well-served village location.
2 bedroom semi-detached house for sale in Cherry Orchard, Marden, Herefordshire, HR1 — £118,000 • 2 bed • 1 bath • 813 ft²
3 bedroom semi-detached house for sale in Cherry Orchard, Marden, Herefordshire, HR1 — £120,750 • 3 bed • 1 bath • 897 ft²
3 bedroom semi-detached house for sale in Plot 36 Giorgia, Cherry Orchard, Marden, Herefordshire, HR1 — £120,750 • 3 bed • 1 bath • 897 ft²
3 bedroom semi-detached house for sale in Plot 35 Giorgia, Cherry Orchard, Marden, Herefordshire, HR1 — £120,750 • 3 bed • 1 bath • 897 ft²
3 bedroom semi-detached house for sale in Cherry Orchard, Marden, Herefordshire, HR1 — £120,225 • 3 bed • 1 bath • 897 ft²
2 bedroom semi-detached house for sale in Plot 69 The Windsor, Cherry Orchard, Marden, Hereford, HR1 — £295,000 • 2 bed • 1 bath • 813 ft²






























