Character-filled village home with views and flexible living spaces.
Grade II listed Georgian townhouse with period features
Sea-facing loft bedroom with views over the estuary and castle
Lower-ground open-plan reception with separate external access
Tiered rear garden with patio and upper lawn seating areas
Oil central heating; property is EPC exempt due to listed status
Listed status restricts structural changes and major alterations
Small plot and multi-storey layout may challenge mobility needs
Slow village broadband; limited for intensive home-working
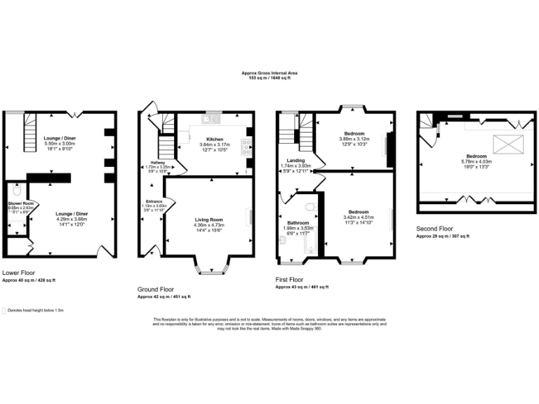
Set on Church Road in picturesque Llansteffan, this Grade II listed Georgian townhouse blends historic character with flexible family living across four floors. The house offers generous living space including two reception rooms, a lower-ground open-plan area with separate access, and a loft bedroom that enjoys sea views over the estuary and castle — ideal for family relaxation and entertaining. The tiered rear garden provides private outdoor space with patios and a lawn, arranged for sun and seating areas.
The internal layout is practical: a fitted kitchen and bright living room on the main level, two double bedrooms and a family bathroom on the first floor, and a useful lower-ground shower/utility room. The property benefits from many original features — high ceilings, sash-style proportions and fireplaces — that will appeal to buyers who value period detail. Oil-fired central heating is installed; the property is EPC exempt due to its listed status.
Important practical points: Grade II listing will restrict alterations and may complicate major works or full modernisation. Heating relies on oil and broadband speeds in the village are slow, which may affect home working. The plot is small and the townhouse is arranged over multiple levels, which might be less suitable for buyers unable to manage stairs.
This house suits buyers looking for village coastal life with easy access to Carmarthen (around 8–10 miles) and local amenities including pubs, a community shop, galleries and coastal walks. It offers immediate liveability with scope to sympathetically update within the constraints of listed status — a genuine character home for those who appreciate historic fabric and sea-facing views.
4 bedroom detached house for sale in Llansteffan, Carmarthen, Carmarthenshire, SA33 — £550,000 • 4 bed • 2 bath • 2250 ft²
5 bedroom end of terrace house for sale in Church Road, Llansteffan, Carmarthen, SA33 — £600,000 • 5 bed • 3 bath • 3303 ft²
3 bedroom detached house for sale in Llansteffan, Carmarthen, Carmarthenshire, SA33 — £375,000 • 3 bed • 2 bath • 1669 ft²
3 bedroom semi-detached house for sale in Parc Clomendy, Llansteffan, Carmarthen, Carmarthenshire, SA33 — £380,000 • 3 bed • 2 bath • 1346 ft²
3 bedroom detached house for sale in Church Road, Llansteffan, Carmarthen, SA33 — £500,000 • 3 bed • 3 bath • 1934 ft²
8 bedroom detached house for sale in Hill House, Llansteffan, Carmarthen, SA33 — £600,000 • 8 bed • 5 bath • 3953 ft²






















































































































