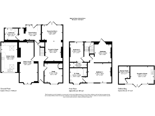
**Standout Features:**
- Charming three-bedroom detached Victorian house
- Three bathrooms, including an en-suite master suite
- Stunning character features with modern finishes
- 20 square meter outbuilding with plumbing and electricity
- Off-road parking and proximity to beach and village amenities
- Energy-efficient with double glazing and oil central heating
Nestled in a picturesque village just a short stroll to the beach, this beautifully presented Georgian-style home offers the perfect blend of period charm and contemporary comfort. With three spacious bedrooms and three well-appointed bathrooms, the home is an ideal fit for families or those seeking ample guest space. The layout is thoughtfully designed, featuring a welcoming lounge with a cozy wood-burning fireplace, a modern kitchen, and a versatile dining area that flows into a delightful seating space, perfect for both relaxation and entertaining.
Enhancing its living potential is a generous 20 square meter outbuilding, making it perfect for a home office, gym, or art studio. The easily accessible ground floor bedroom and bathroom offer convenience for visitors or multi-generational living.
With its prime location, elegant character, and renovation-ready potential, this freehold property is a unique opportunity that won’t last long on the market—early viewing is highly encouraged to truly appreciate all this home has to offer! However, be mindful that the council tax is on the higher side, and broadband speeds may be slower.
3 bedroom semi-detached house for sale in Hermon, Glogue, SA36 — £195,000 • 3 bed • 2 bath • 1260 ft²
5 bedroom end of terrace house for sale in Church Road, Llansteffan, Carmarthen, SA33 — £600,000 • 5 bed • 3 bath • 3303 ft²
3 bedroom detached house for sale in Llanboidy, Whitland, SA34 — £249,500 • 3 bed • 2 bath • 1012 ft²
3 bedroom bungalow for sale in The Ridgeway, Saundersfoot, Pembrokeshire, SA69 — £495,000 • 3 bed • 1 bath • 1319 ft²
3 bedroom detached house for sale in Narberth Road, Tenby, Pembrokeshire, SA70 — £500,000 • 3 bed • 1 bath • 1343 ft²
3 bedroom semi-detached house for sale in Llanybri, Carmarthen, SA33 — £300,000 • 3 bed • 1 bath • 1887 ft²






















































































































