Light-filled conversion overlooking a private garden square, ideal for families or professionals.
Double-height reception with exposed beams and kitchen mezzanine
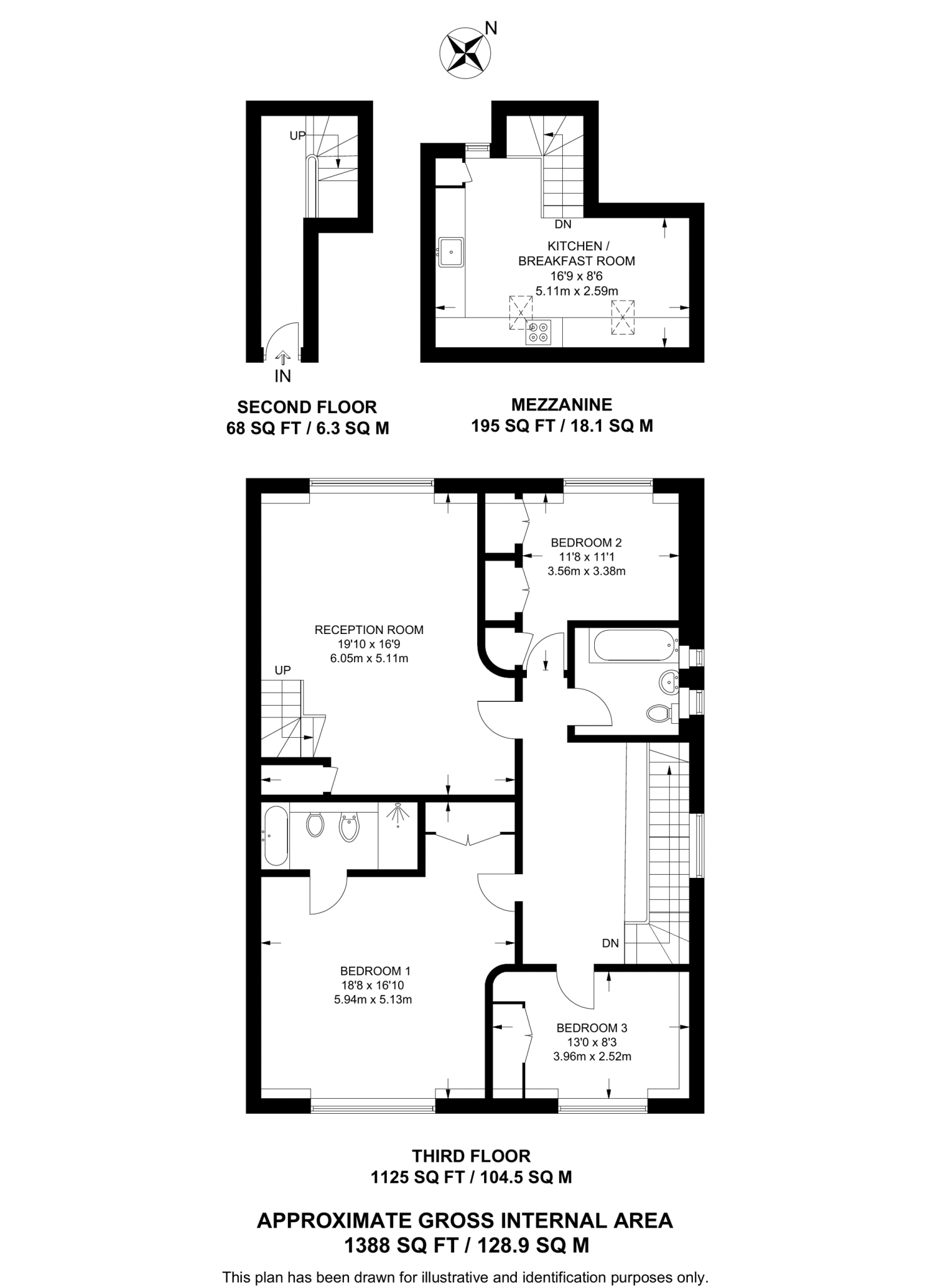
Set within one of Chelsea’s most desirable garden squares, this three-bedroom period conversion delivers dramatic living space and generous bedrooms. A double-height reception room with exposed beams and a mezzanine kitchen creates a striking, light-filled centrepiece, while two bathrooms and abundant storage suit family life or sharers.
The flat extends to approximately 1,388 sq ft and benefits from double glazing (installed post-2002), mains gas central heating and a share of freehold. Its location offers easy access to local shops, restaurants and excellent schools, with West Brompton station and major road links nearby.
Buyers should note the property sits in a Victorian timber-framed building with no assumed wall insulation, which may affect running costs and could require improvement. The service charge is circa £5,000 per year (above average) and should be factored into ownership costs. Overall this is a characterful, spacious home with strong location appeal and some potential to personalise.
3 bedroom flat for sale in Redcliffe Square, Chelsea, London, SW10 — £1,380,000 • 3 bed • 2 bath • 1449 ft²
3 bedroom apartment for sale in Redcliffe Square, London, SW10 — £1,250,000 • 3 bed • 1 bath • 932 ft²
2 bedroom flat for sale in Redcliffe Square, Chelsea, London, SW10 — £1,300,000 • 2 bed • 2 bath • 1552 ft²
2 bedroom flat for sale in Redcliffe Square, Chelsea, London, SW10 — £1,500,000 • 2 bed • 2 bath • 1015 ft²
3 bedroom apartment for sale in Redcliffe Square, London, SW10 — £1,500,000 • 3 bed • 2 bath • 1363 ft²
2 bedroom flat for sale in Redcliffe Square, Chelsea, London, SW10 — £1,250,000 • 2 bed • 1 bath • 749 ft²










































































































































































































































































































































































































































































































