Period charm with large living space and private outdoor area for family life.
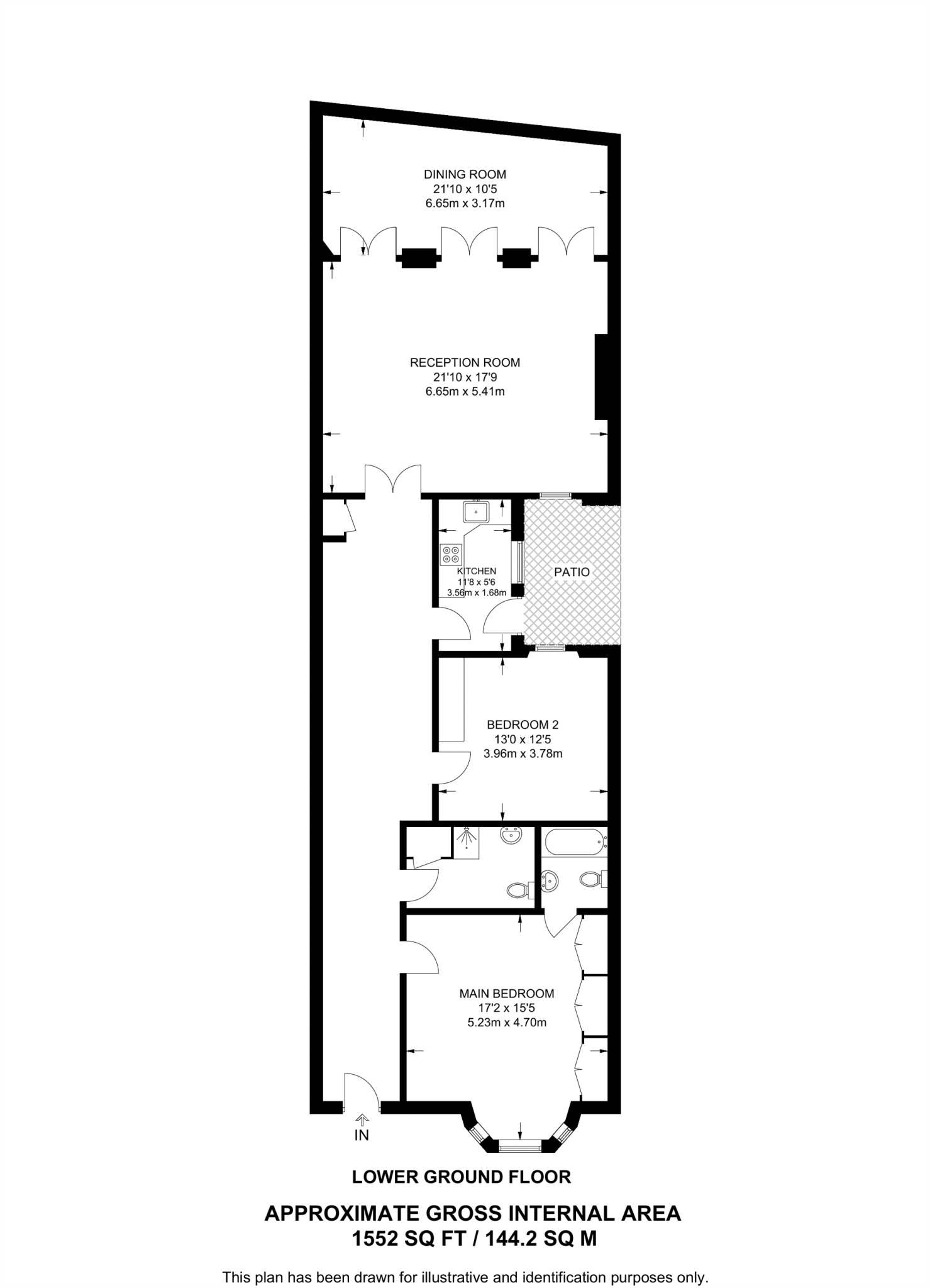
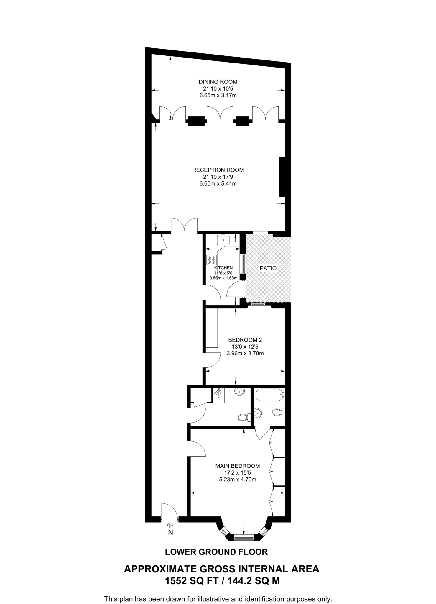
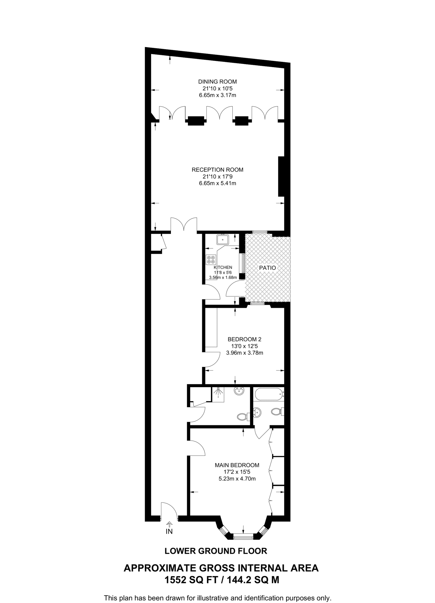
Extremely large 1,552 sq ft two‑bed maisonette
High ceilings and wood floors through principal rooms
Master bedroom with bay window and en suite bathroom
Conservatory‑style dining room plus private patio
Access to Redcliffe Square communal gardens nearby
Basement flat — consider natural light and ventilation
Solid brick Victorian building; assumed no insulation
Leasehold tenure; potential need for modernisation
A generously proportioned two‑bedroom maisonette set within a handsome Victorian conversion on Redcliffe Square. High ceilings, hardwood floors and a large reception room create spacious, light-filled living areas, while a conservatory-style dining room and private patio extend usable space for family life and entertaining.
The master bedroom benefits from a bay window and en suite bathroom, and the flat includes a second double bedroom and a separate bathroom — all arranged across a substantial 1,552 sq ft. Residents also have access to the square’s communal gardens and a broad local offer of shops, cafes and excellent schools nearby, including The London Oratory School and strong primary options.
Important practical points: the property is a basement flat and part of a period building constructed before 1900, with solid brick walls and no assumed insulation. Heating is by mains gas boiler and radiators. The tenure is leasehold. These factors may mean future improvement works for insulation or modernisation, and running costs could be higher than for newer builds.
The location suits families seeking generous space in a central Chelsea setting, close to Old Brompton Road amenities and transport links. Buyers wanting a finished turnkey home should note potential upgrade and maintenance requirements typical of older conversions.
3 bedroom apartment for sale in Redcliffe Square, London, SW10 — £1,500,000 • 3 bed • 2 bath • 1363 ft²
1 bedroom flat for sale in Redcliffe Square, Chelsea, London, SW10 — £600,000 • 1 bed • 1 bath • 688 ft²
2 bedroom flat for sale in Redcliffe Square, Chelsea, London, SW10 — £1,500,000 • 2 bed • 2 bath • 1015 ft²
3 bedroom flat for sale in Redcliffe Square, Chelsea, London, SW10 — £1,500,000 • 3 bed • 2 bath • 1363 ft²
3 bedroom apartment for sale in Redcliffe Square, Chelsea SW10 — £1,850,000 • 3 bed • 2 bath • 1647 ft²
2 bedroom apartment for sale in Redcliffe Square, Chelsea, London, SW10 — £995,000 • 2 bed • 2 bath • 848 ft²










































































































































































































































































































































































































































































































