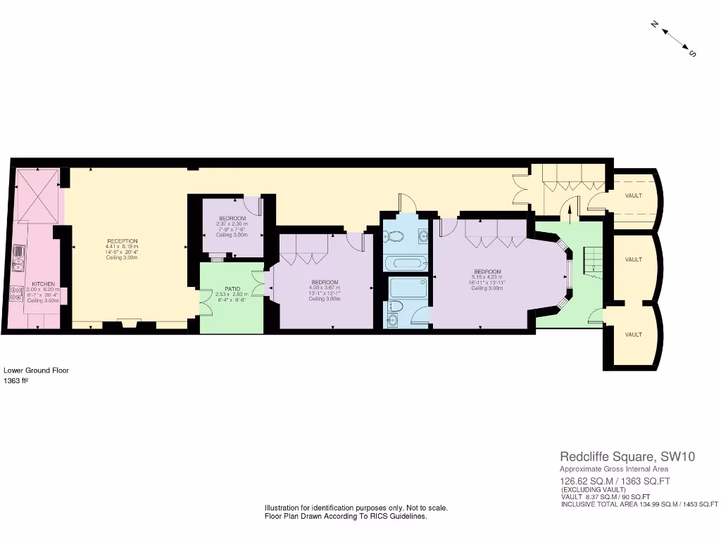
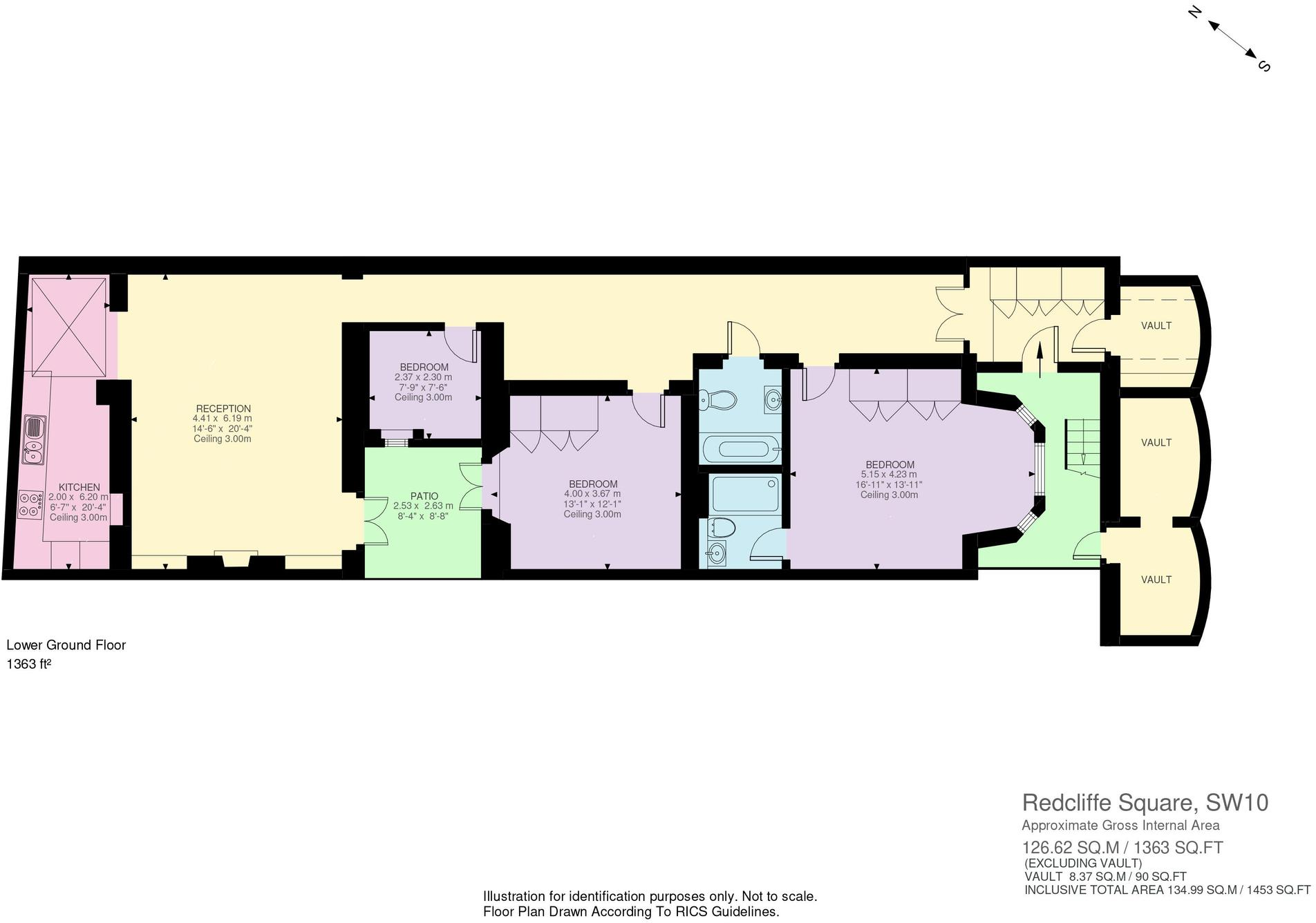
Elegant three‑bedroom flat with patios, finished to a high standard.
Approximately 1,363 sq ft of living space, generous room proportions
Set within a handsome Victorian terrace on Redcliffe Square, this newly refurbished lower‑ground apartment offers generous, well‑planned living across approximately 1,363 sq ft. The principal bedroom has built‑in storage, an en suite and direct access to one of two private patios; a second bedroom also opens onto the other patio. High‑quality finishes, underfloor heating and a modern fitted kitchen create a comfortable, low‑maintenance home in central Chelsea.
The large reception and dining room with an adjoining kitchen provides excellent space for family life and entertaining. Vault storage to the front increases practical storage options uncommon for central London flats. Long leasehold security (share of freehold with c.954 years remaining) and fast broadband make the flat practical for full‑time family living and remote working.
Buyers should note the property sits on the lower‑ground floor, so natural light is more limited than upper‑level apartments. Parking is on‑street only, and council tax is above average. The building’s solid brick construction likely has little cavity insulation, which could affect running costs despite the efficient mains‑gas boiler and underfloor heating.
Located moments from Fulham Road and Old Brompton Road shops, cafés and transport links (Earl’s Court and West Brompton nearby), the flat suits families wanting central Chelsea schooling and amenities. The condition is high and largely move‑in ready, though buyers wanting outside garden space or top‑floor views should be aware the private external space is limited to two patios.
3 bedroom flat for sale in Redcliffe Square, Chelsea, London, SW10 — £1,500,000 • 3 bed • 2 bath • 1363 ft²
2 bedroom apartment for sale in Redcliffe Square, Chelsea, London, SW10 — £1,650,000 • 2 bed • 2 bath • 1077 ft²
3 bedroom flat for sale in Redcliffe Square, Chelsea, London, SW10 — £1,380,000 • 3 bed • 2 bath • 1449 ft²
2 bedroom apartment for sale in Redcliffe Square, London, SW10 — £985,000 • 2 bed • 1 bath • 648 ft²
1 bedroom flat for sale in Redcliffe Square, Chelsea, London, SW10 — £600,000 • 1 bed • 1 bath • 688 ft²
2 bedroom flat for sale in Redcliffe Square, Chelsea, SW10 — £1,500,000 • 2 bed • 2 bath • 982 ft²














































































































































