Renovated three-bedroom lower-ground home with two terraces, large living space and long lease.
South-west facing lower-ground flat overlooking communal gardens
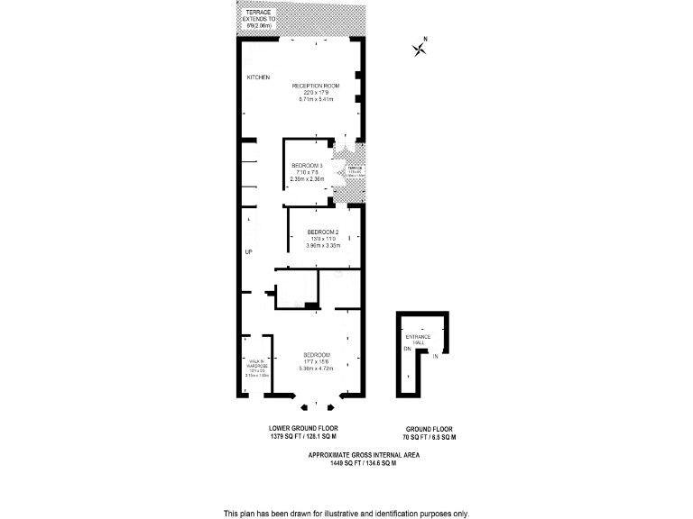
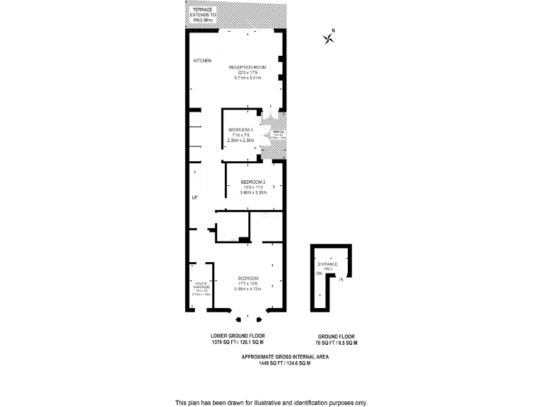
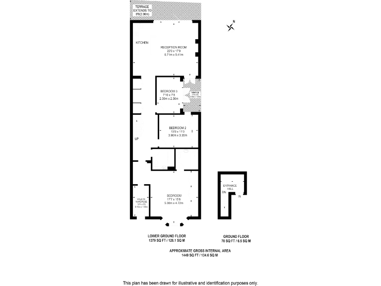
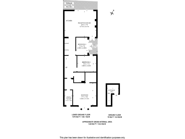
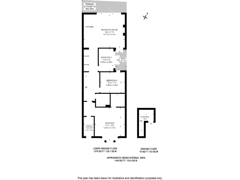
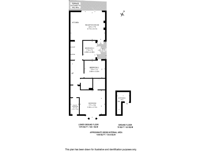
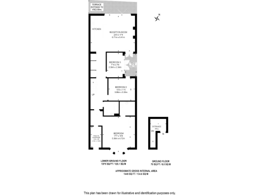
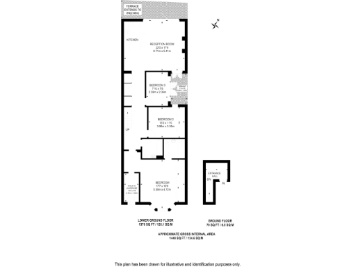
Set on the lower-ground floor of a handsome period building, this newly refurbished three-bedroom apartment combines spacious living with contemporary finishes. The south-west aspect fills the large, open-plan reception and dining area with natural light, while high ceilings and large windows retain period character. The property overlooks Redcliffe Square’s communal gardens and includes two decked terraces, one accessed from the second bedroom.
The principal bedroom is a standout: generous proportions, a walk-in wardrobe and an en-suite bathroom create a comfortable primary suite. A modern semi open-plan kitchen flows into the reception room, creating an excellent entertaining space. The flat totals approximately 1,449 sq ft and benefits from underfloor heating, double glazing and a very long lease (share of freehold with c.971 years remaining).
Practical considerations are clear: the service charge is substantial at £11,440 per year, and the building dates from the early 20th century with solid brick walls (insulation status unknown). The property is in a central, inner-city area where crime statistics are above average. Transport and local amenities are strong — Earls Court station and local schools are within easy reach — but purchasers should factor ongoing service costs and potential retrofit work into their budget.
This property will suit buyers seeking a sizable, move-in-ready home in a prime central location, with immediate outdoor space and strong school options close by. It also offers scope for further personalisation if you wish to adapt or upgrade insulation and building services over time.
2 bedroom flat for sale in Redcliffe Square, Chelsea, London, SW10 — £1,500,000 • 2 bed • 2 bath • 1015 ft²
3 bedroom apartment for sale in Redcliffe Square, London, SW10 — £1,500,000 • 3 bed • 2 bath • 1363 ft²
3 bedroom apartment for sale in Redcliffe Square, London, SW10 — £1,250,000 • 3 bed • 1 bath • 932 ft²
3 bedroom flat for sale in Redcliffe Square, South Kensington, London, SW10 — £1,400,000 • 3 bed • 2 bath • 1388 ft²
3 bedroom flat for sale in Redcliffe Square, Chelsea, London, SW10 — £1,500,000 • 3 bed • 2 bath • 1363 ft²
2 bedroom apartment for sale in Redcliffe Square, London, SW10 — £1,800,000 • 2 bed • 2 bath • 958 ft²


















































































































































































































