Large period house near Wimbledon Common and top schools.
Around 3,000 sq ft over four floors
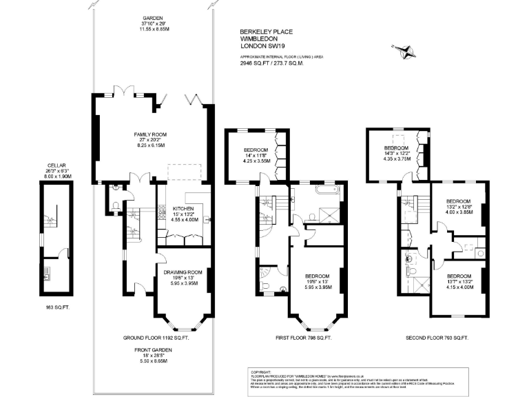
Set on a quiet cul-de-sac in the heart of Wimbledon Village, this substantial Victorian semi-detached house offers around 3,000 sq ft across four floors, arranged for comfortable family living and entertaining. High ceilings, bay windows and period fireplaces give the house character, while a large open-plan kitchen/family/dining area opens directly onto a landscaped limestone terrace and generous rear garden. The location is a standout: a short walk to Wimbledon Common, village shops and several highly regarded schools including King's College and Wimbledon High.
Practical comforts include underfloor heating to the ground floor, air conditioning to most bedrooms, a basement utility and generous built-in storage. There is an option, subject to planning, to reinstate a garage from the rear garden which adds flexibility for parking or ancillary space. Broadband and mobile signals are excellent and the area is very affluent with very low crime, making this a secure, well-connected family base.
A few points to note: the property’s construction includes timber-framed walls with assumed lack of cavity insulation, which may require upgrading to improve energy efficiency. Glazing is a mix of double and secondary glazing; further improvements may be worthwhile. Tenure details should be confirmed—Freehold is stated in property notes but this should be independently verified. Overall, this rare period home combines immediate family-ready accommodation with scope for modest investment works to enhance comfort and efficiency.
5 bedroom semi-detached house for sale in Berkeley Place, London, SW19 — £3,250,000 • 5 bed • 3 bath • 3056 ft²
4 bedroom semi-detached house for sale in Denmark Road, Wimbledon, London, SW19 — £1,500,000 • 4 bed • 2 bath • 1417 ft²
6 bedroom semi-detached house for sale in Ridgway, Wimbledon, SW19 — £2,795,000 • 6 bed • 4 bath • 2840 ft²
5 bedroom semi-detached house for sale in Trinity Road, London, SW19 — £2,995,000 • 5 bed • 3 bath • 2989 ft²
5 bedroom house for sale in Spencer Hill, Wimbledon, SW19 — £2,450,000 • 5 bed • 2 bath • 2367 ft²
5 bedroom house for sale in North View, Wimbledon Common, SW19 — £5,750,000 • 5 bed • 4 bath • 2860 ft²














































































































