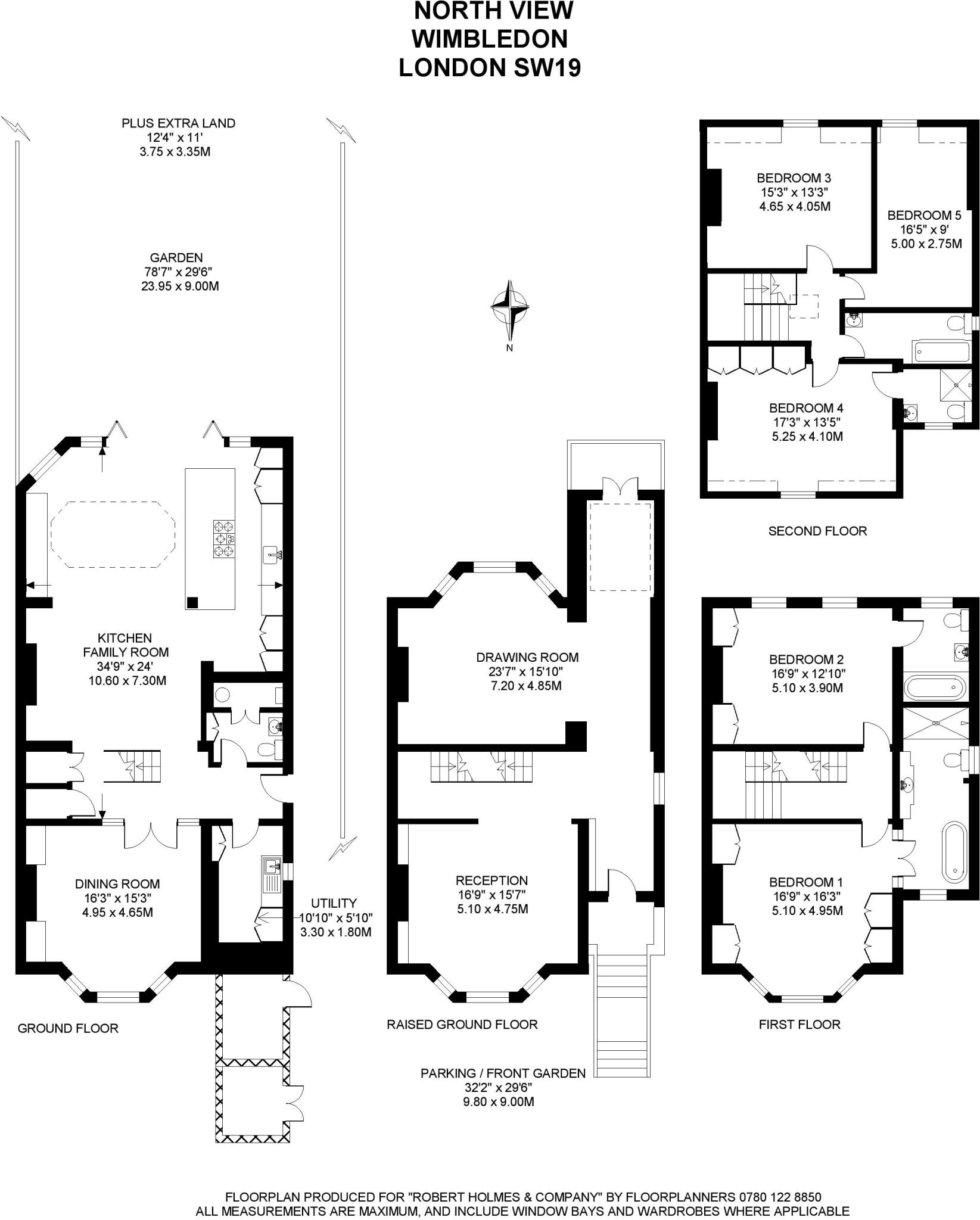
Five-bedroom Victorian residence overlooking Wimbledon Common with large garden and scope to modernise..
South-facing landscaped garden plus additional land (large plot)
Outstanding views over Wimbledon Common and golf fairways
Large open-plan kitchen/family room (approx. 10.8 x 7.2m)
Five bedrooms, four bath/shower rooms (three en-suite)
Off-street carriage driveway parking, freehold tenure
Victorian period features; high ceilings and bay windows
Solid brick construction; assumed no wall insulation (energy works likely)
Slow broadband, average mobile signal; very expensive council tax
This substantial five-bedroom Victorian home sits directly adjacent to Wimbledon Common and benefits from exceptional, uninterrupted views over trees and fairways. Period details—high ceilings, bay windows and ornate cornicing—combine with a large open-plan kitchen/family room to create generous, flexible living spaces for family life and entertaining. The south-facing, well-kept garden and additional land extend the outdoor space; off-street parking is provided via a wide carriage-style driveway.
The accommodation spans multiple floors and includes two reception rooms, a formal dining room, a utility and cloakroom, plus four bath/shower rooms (three en-suite), making it well suited to a growing family or those who frequently host guests. The principal kitchen/family space is a standout at roughly 10.8 x 7.2m and acts as the home’s practical and social hub.
Buyers should note some important practical points: the property is an older, solid-brick build (c.1900–1929) with assumed no wall insulation, double glazing but an unknown installation date, and mains gas central heating via boiler and radiators. Broadband speeds are reported as slow and mobile signal average. Council tax is very expensive. These factors may require investment to modernise energy performance and connectivity to contemporary standards.
Overall, this is a rare family home on a large plot in a highly affluent part of SW19. It offers immediate liveability with clear potential to add value through targeted upgrades to insulation, glazing and services for long-term comfort and efficiency.
5 bedroom house for sale in North View, Wimbledon, South West London, SW19, United Kingdom, SW19 — £5,750,000 • 5 bed • 4 bath • 2849 ft²
7 bedroom detached house for sale in Southside Common, Wimbledon, London, SW19 — £7,950,000 • 7 bed • 5 bath • 6976 ft²
5 bedroom semi-detached house for sale in Berkeley Place, London, SW19 — £3,500,000 • 5 bed • 3 bath • 3056 ft²
5 bedroom semi-detached house for sale in Berkeley Place, Wimbledon, London, SW19 — £3,250,000 • 5 bed • 3 bath • 3000 ft²
3 bedroom end of terrace house for sale in Crooked Billet, London, SW19 — £975,000 • 3 bed • 2 bath • 1300 ft²
7 bedroom detached house for sale in Southside Common, Wimbledon Village, SW19 — £7,950,000 • 7 bed • 5 bath • 7000 ft²


































