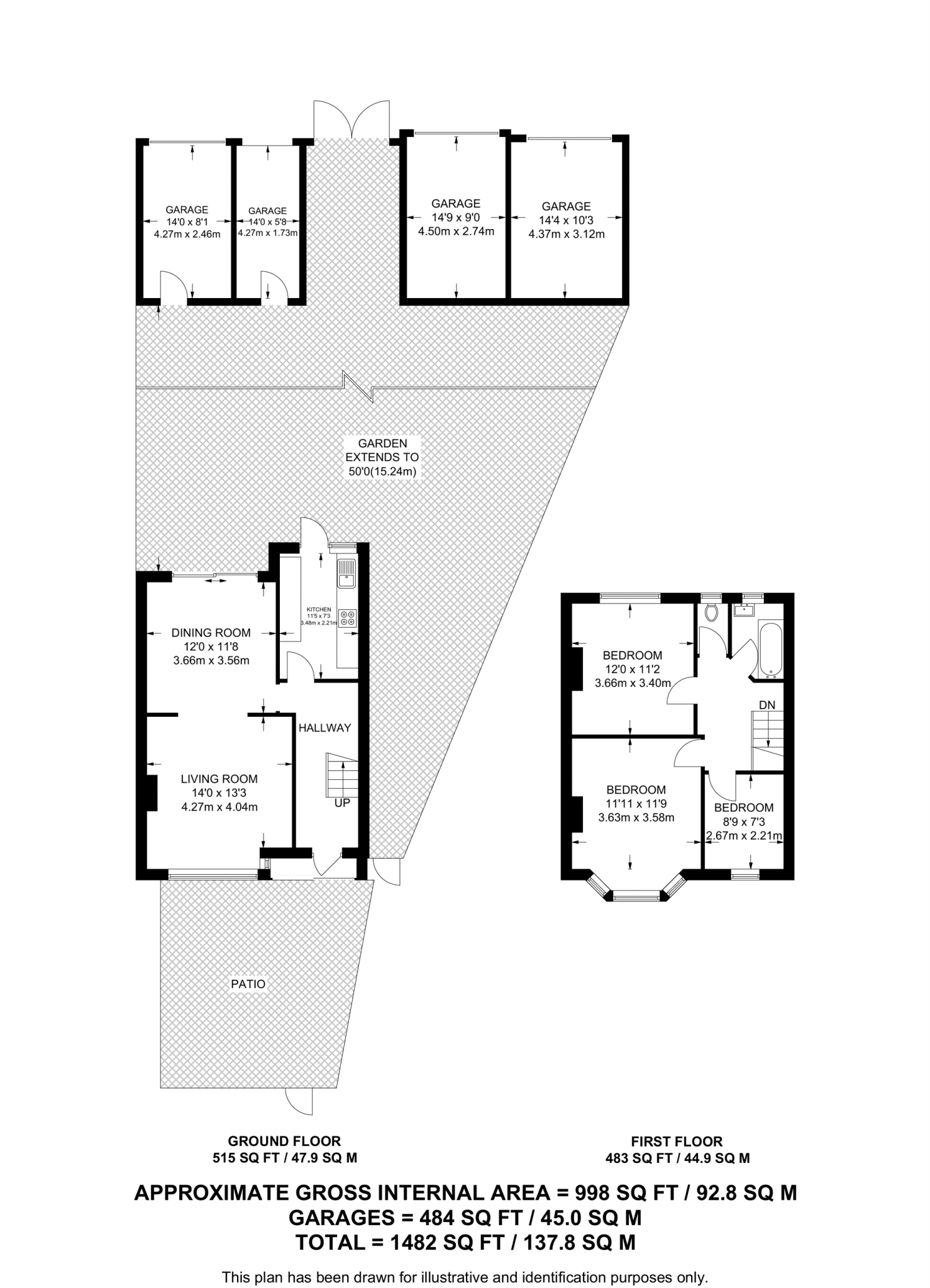
Large garden and four garages ideal for growing families or conversion potential.
Three bedrooms plus separate dining room and bright reception
A spacious three-bedroom end-of-terrace set over approximately 1,482 sq ft, this traditional 1930s home offers generous living space and a large rear garden—rare for the area. The property includes a separate kitchen, dining room, bright reception, and a single family bathroom; practical period proportions suit growing families who value room to adapt.
Stand-out practical assets include four garages and a decent plot size, offering excellent storage, off-street parking or potential for conversion (subject to planning). The house is solid-brick with external insulation, double glazing (install date unknown) and mains gas boiler heating, so day-to-day living is straightforward.
Notable issues are honest and clear: the garden and some external areas need maintenance and tidying, and there is only one bathroom for three bedrooms. The wider neighbourhood shows area deprivation measures, although local schools have good Ofsted ratings and amenities in Turnpike Lane and Wood Green are close by.
This freehold home is best for families wanting abundant space and scope to renovate or personalise, or buyers seeking a property with garaging and a large plot in a well-connected North London location.
3 bedroom terraced house for sale in Grainger Road N22, Tottenham, London, N22 — £575,000 • 3 bed • 1 bath • 1089 ft²
3 bedroom house for sale in Princes Avenue, Wood Green, London, N13 — £600,000 • 3 bed • 3 bath • 1222 ft²
4 bedroom semi-detached house for sale in Devonshire Hill Lane, N17, Tottenham, London, N17 — £650,000 • 4 bed • 2 bath • 1703 ft²
3 bedroom terraced house for sale in Sirdar Road N22, Wood Green, London, N22 — £775,000 • 3 bed • 2 bath • 1177 ft²
3 bedroom semi-detached house for sale in GOSPATRICK ROAD, Tottenham, London, N17 — £550,000 • 3 bed • 2 bath • 1065 ft²
3 bedroom semi-detached house for sale in Rivulet Road, Tottenham, London, N17 — £575,000 • 3 bed • 2 bath • 1317 ft²






















































































































































































