Generous living, outdoor space and garage ideal for growing families.
Recently refurbished throughout to a high standard
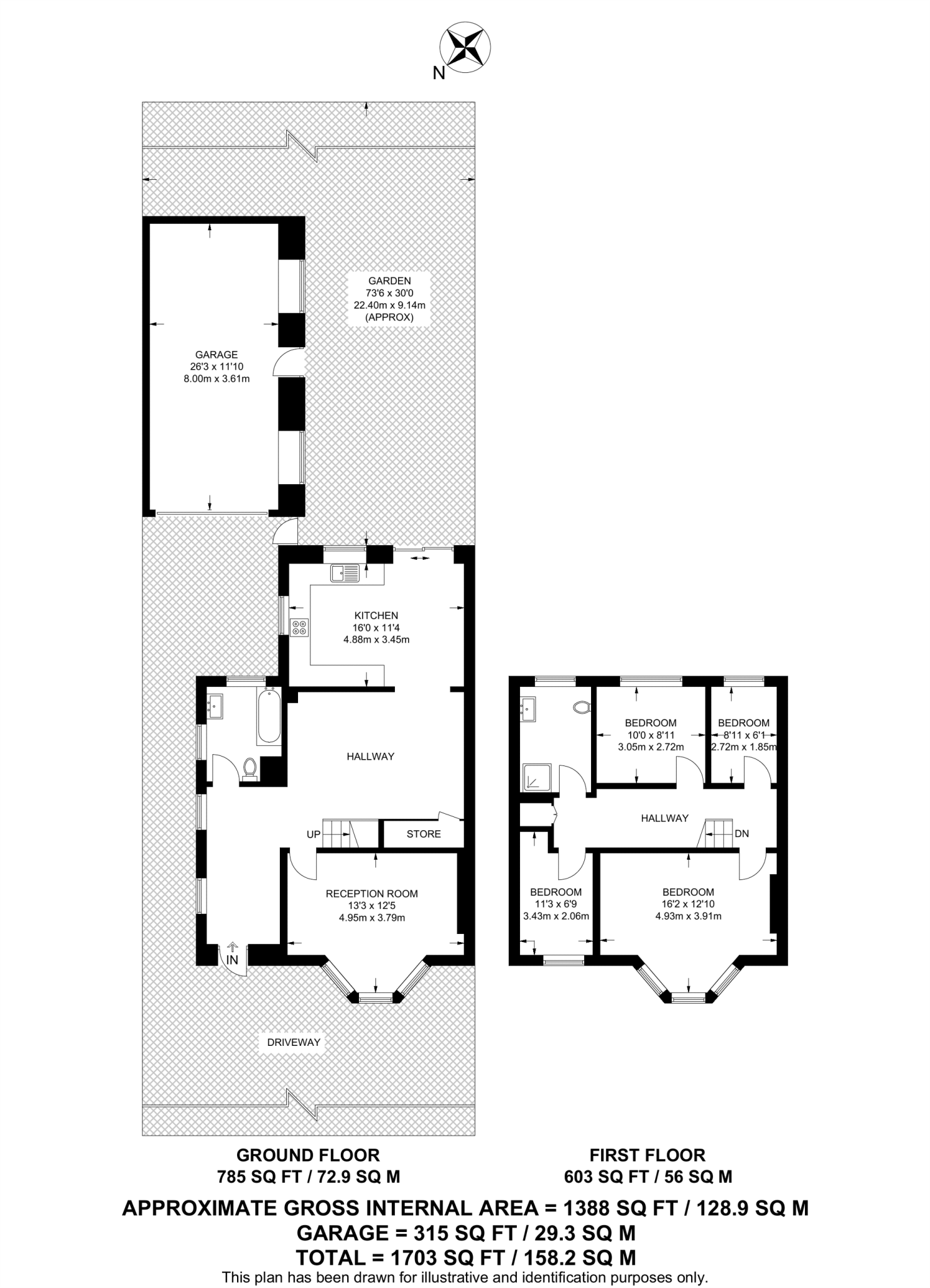
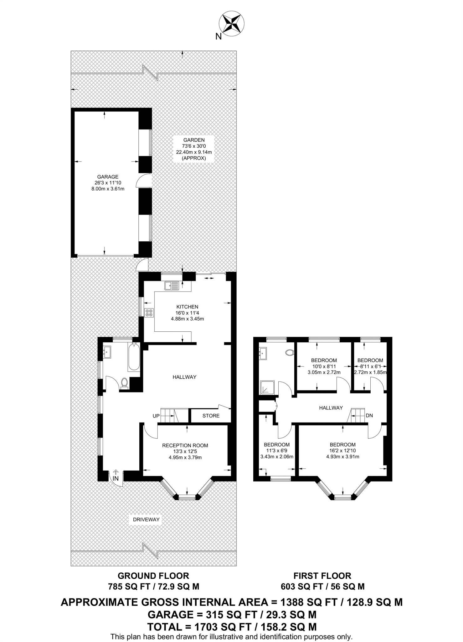
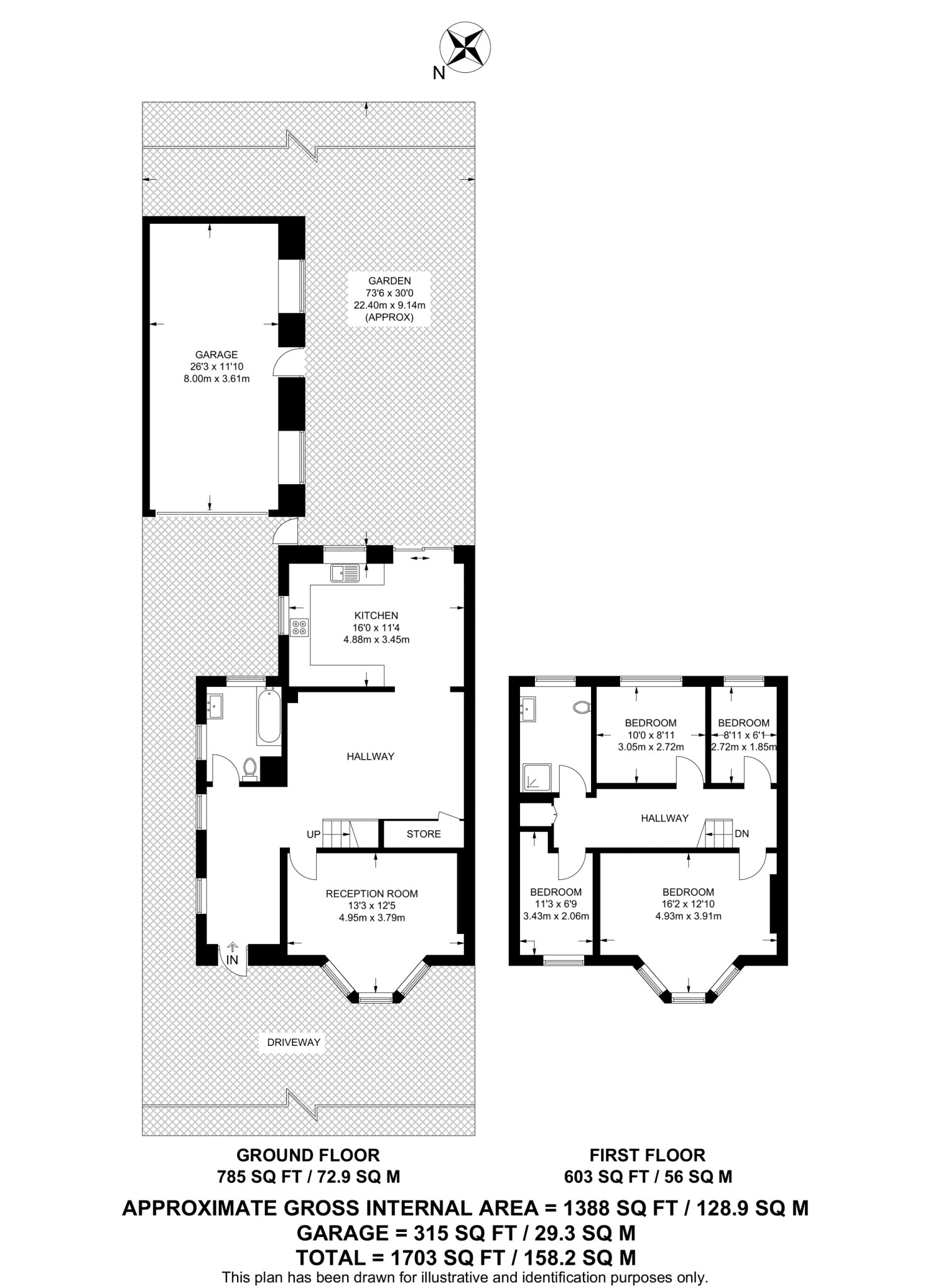
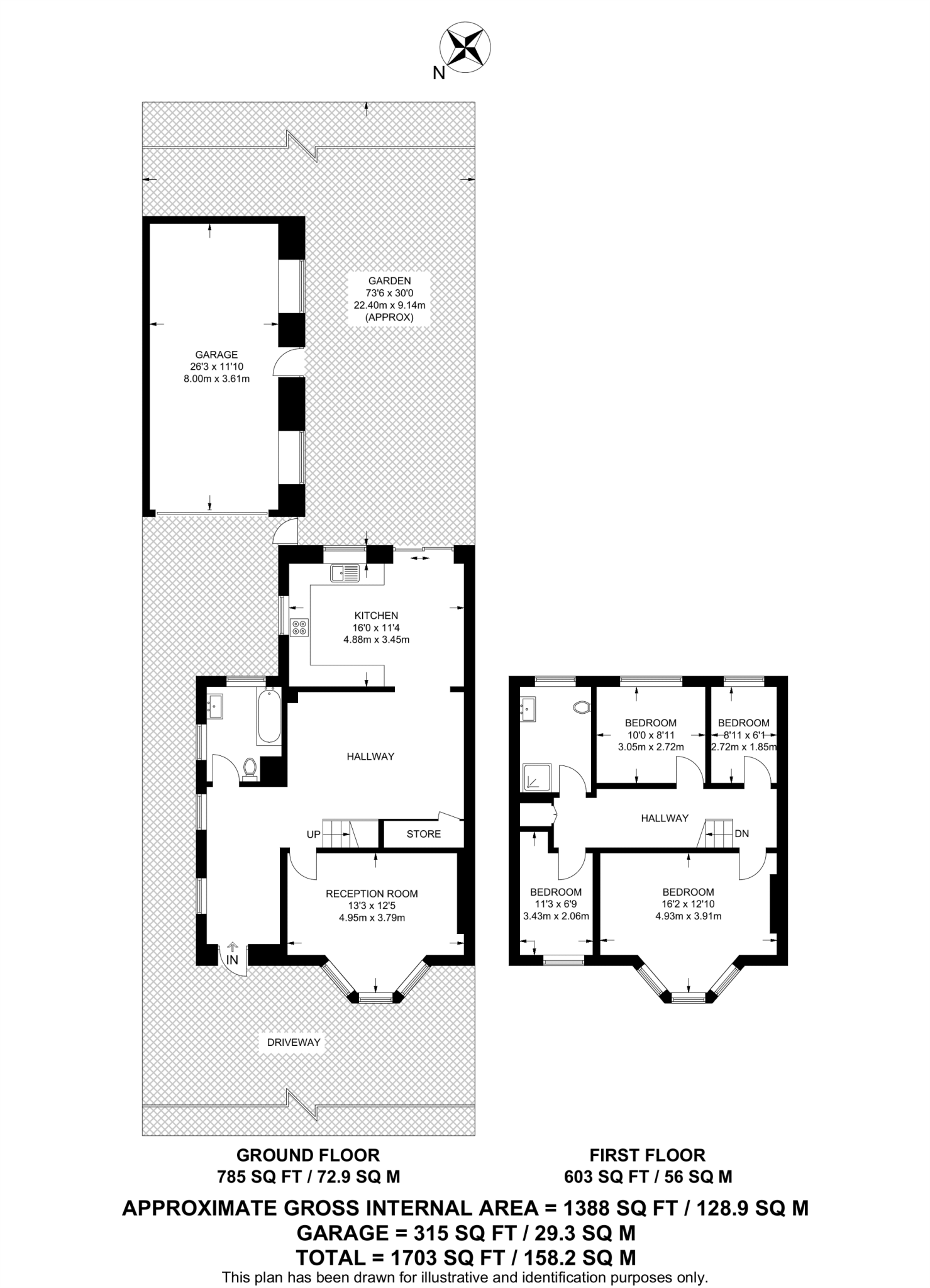
This recently refurbished four-bedroom semi-detached house on Devonshire Hill Lane offers a practical family layout across two floors. The property benefits from a modern kitchen with breakfast area, a separate dining room, a large reception room and two bathrooms — useful for busy households. A driveway and garage plus a decent garden with patio extend usable space and outdoor living potential.
The house is freehold, double-glazed (install date unknown) and heated by a mains-gas boiler with radiators. At about 1,703 sq ft, the accommodation is a comfortable, average-sized family home with strong broadband speeds and good access to local amenities, Green Lanes, and Tottenhall Recreation Ground. Several well-rated primary and secondary schools are within reach.
There are some practical points to note: the building dates from the 1930s–1940s and external cavity walls are assumed to have no added insulation, which could affect running costs. The wider area scores high for deprivation and local crime is average — factors to consider for long-term investment or resale. Overall, the house offers move-in-ready interiors and clear scope for further energy upgrades and personalisation.
4 bedroom terraced house for sale in Compton Crescent, Tottenham, London, N17 — £575,000 • 4 bed • 2 bath • 1108 ft²
3 bedroom semi-detached house for sale in GOSPATRICK ROAD, Tottenham, London, N17 — £550,000 • 3 bed • 2 bath • 1065 ft²
4 bedroom semi-detached house for sale in Claremont Street, London, N18 — £579,995 • 4 bed • 1 bath
3 bedroom semi-detached house for sale in Rivulet Road, Tottenham, London, N17 — £575,000 • 3 bed • 2 bath • 1317 ft²
4 bedroom house for sale in Boundary Road, Turnpike Lane, London, N22 — £1,100,000 • 4 bed • 2 bath • 1601 ft²
3 bedroom property for sale in Empire Avenue, London, N18 — £675,000 • 3 bed • 2 bath • 1183 ft²


































































































































































































































































































































































































































































