Wraparound garden and driveway with close access to parks and local schools for families..
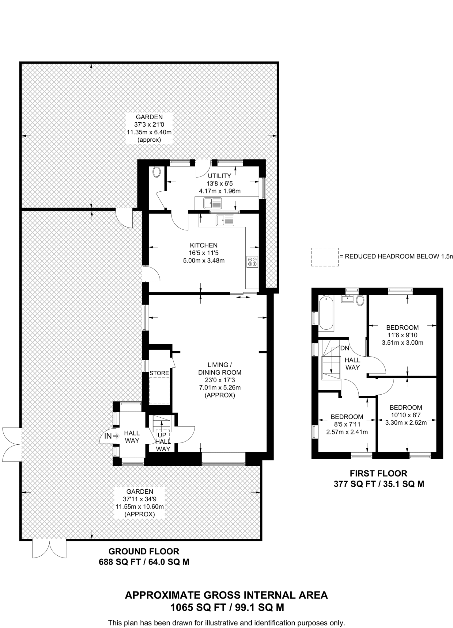
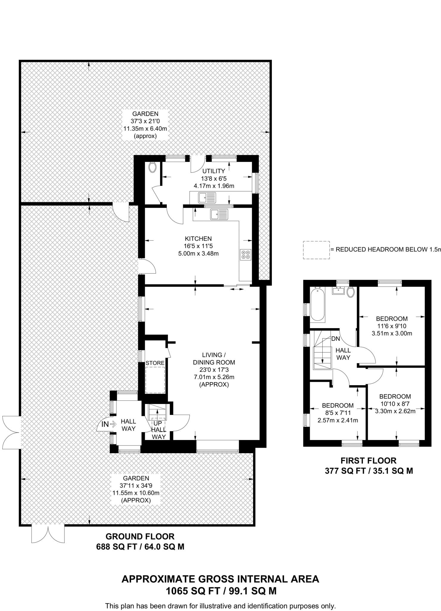
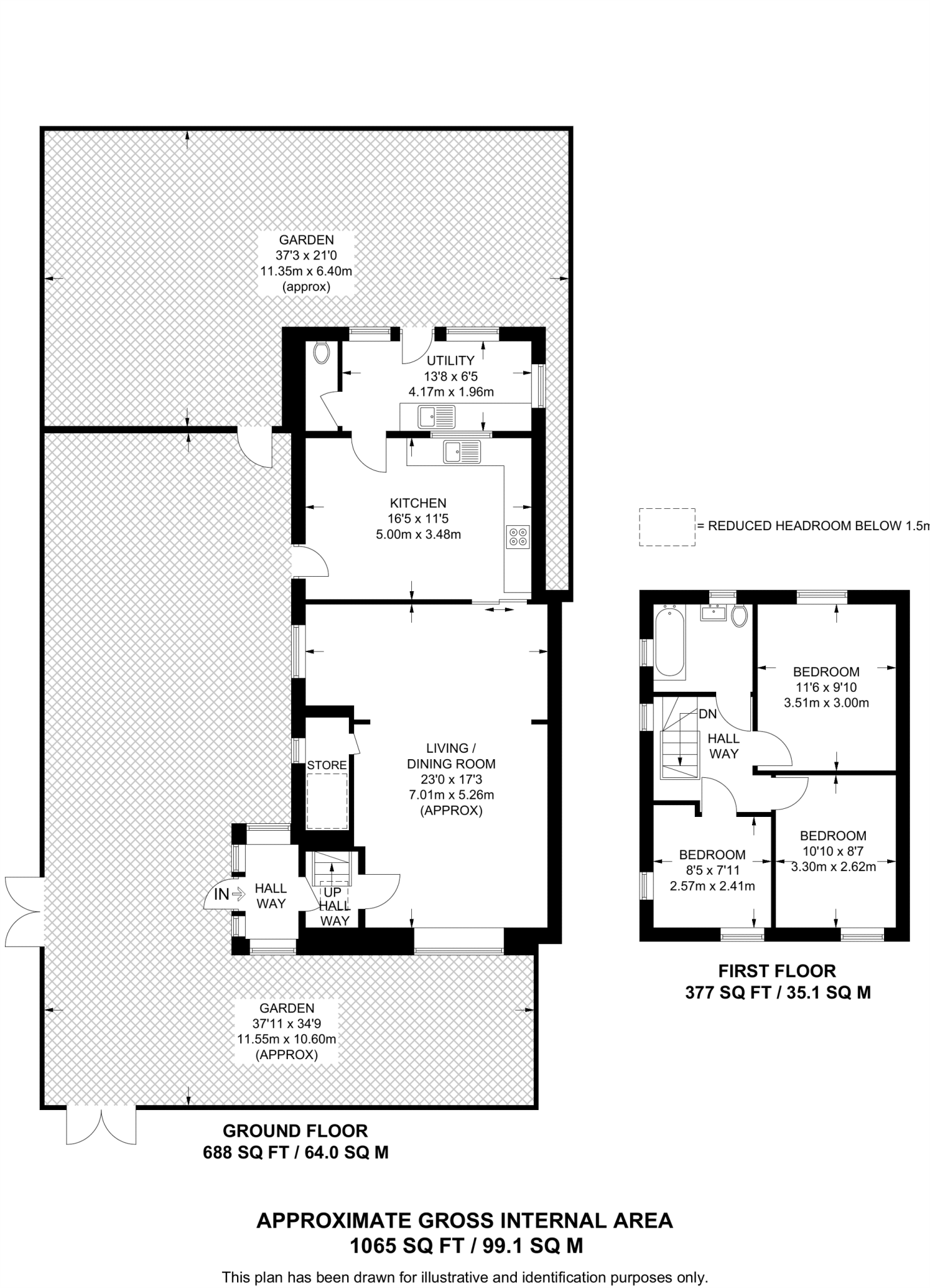
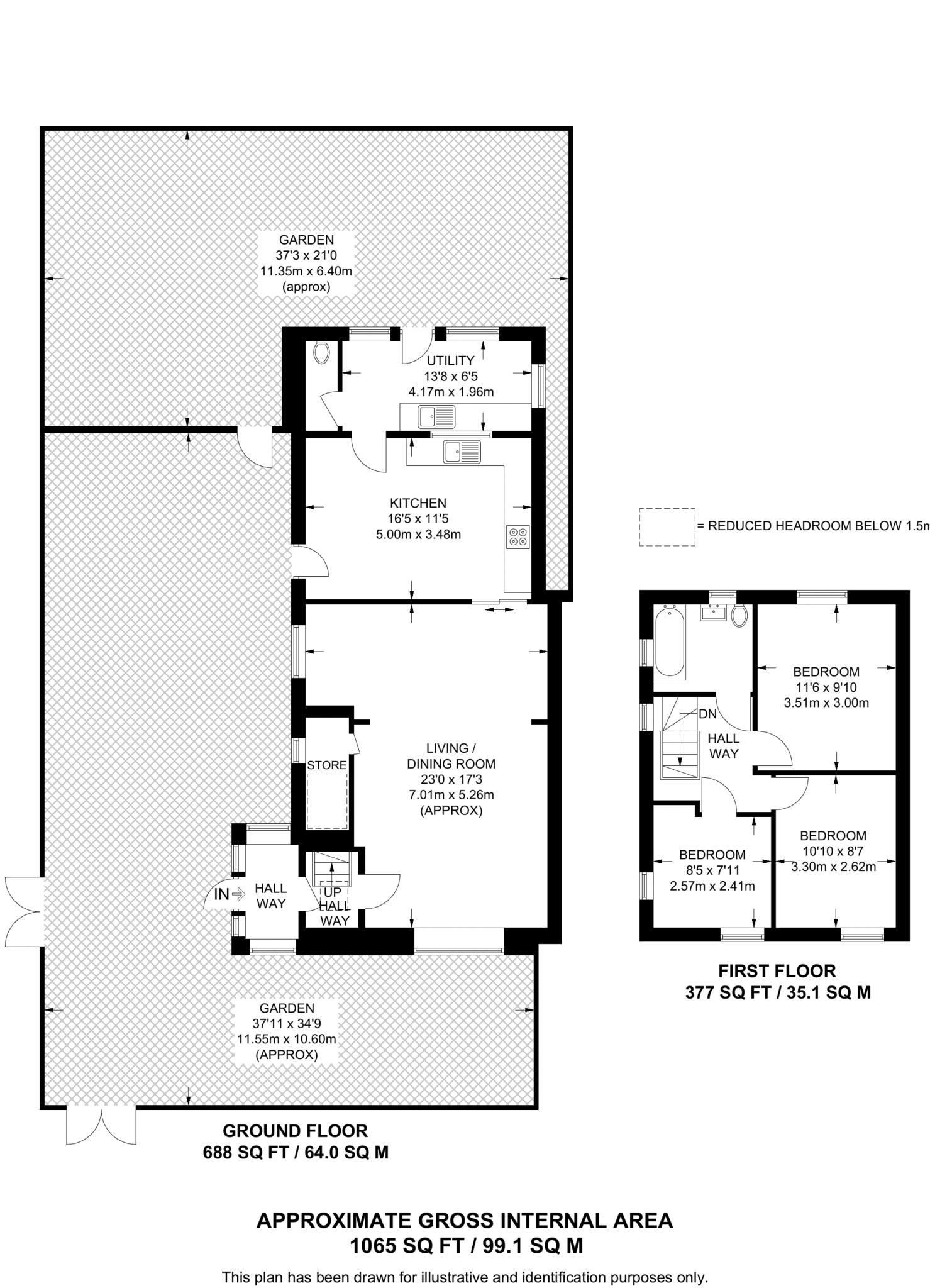
3 double bedrooms and 2 bathrooms
Wrap-around garden with off-street driveway parking
Large living room plus separate dining area
Kitchen with breakfast area and large utility room
Freehold; around 1,065 sq ft; decent plot size
Constructed 1930–1949; period features present
Double glazing installed before 2002 may need upgrading
Local area: high crime rate and higher deprivation levels
This well-presented three-bedroom semi-detached house offers family-friendly space across roughly 1,065 sq ft. The ground floor provides a large living room with dining area, a separate kitchen with breakfast spot and a sizeable utility room — useful for busy households. The wrap-around garden and off-street driveway add outdoor space and parking rarely found at this price in the area.
Bedrooms are all doubles and the property includes two bathrooms, making morning routines easier for families. The home was constructed in the 1930s–1940s and benefits from double glazing fitted before 2002 and gas central heating via boiler and radiators. Local amenities include shops and cafés on Lordship Lane and green space at Lordship Recreation Ground; several well-rated primary and secondary schools are within reach.
Buyers should note the wider neighbourhood has higher crime rates and is classed as a deprived area, which may affect resale and insurance costs. While the house is described as well maintained, some installations (older double glazing, period construction) could benefit from future updating. The property is freehold with excellent mobile and fast broadband speeds — convenient for commuters and remote working.
Overall, this home offers practical family living, outdoor space and parking, with clear potential for cosmetic modernisation where desired. It suits buyers looking for a comfortable, well-located family house with room to adapt over time.
3 bedroom terraced house for sale in Grainger Road N22, Tottenham, London, N22 — £575,000 • 3 bed • 1 bath • 1089 ft²
3 bedroom semi-detached house for sale in Rivulet Road, Tottenham, London, N17 — £575,000 • 3 bed • 2 bath • 1317 ft²
4 bedroom semi-detached house for sale in Devonshire Hill Lane, N17, Tottenham, London, N17 — £650,000 • 4 bed • 2 bath • 1703 ft²
4 bedroom terraced house for sale in Compton Crescent, Tottenham, London, N17 — £575,000 • 4 bed • 2 bath • 1108 ft²
3 bedroom house for sale in Willoughby Lane, London, N17 — £535,000 • 3 bed • 1 bath • 906 ft²
3 bedroom terraced house for sale in Downhills Way, Wood Green, London, N17 — £675,000 • 3 bed • 1 bath • 1482 ft²


































































































































































































































































































































































































































































