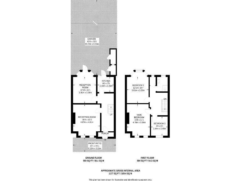
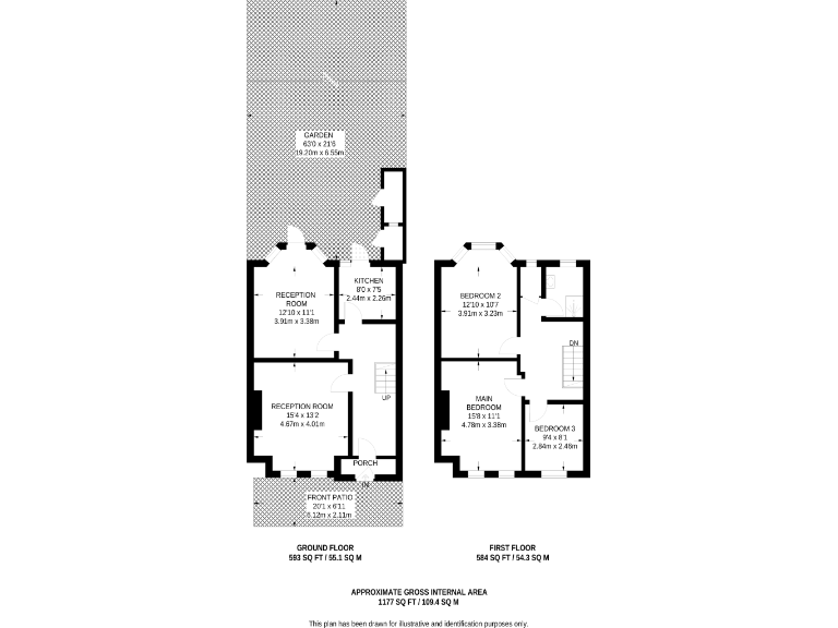
Characterful family home with garden and scope to modernise.
Three bedrooms with two reception rooms and separate kitchen
Well-proportioned and full of period charm, this three-bedroom terraced house on Sirdar Road offers a comfortable family layout across approximately 1,177 sq ft. Two reception rooms and a separate kitchen provide flexible living space, while original Edwardian details—bay windows, high ceilings and ornate woodwork—give the house character and kerb appeal. The mature back garden is a practical outdoor space for children and pets.
The property is freehold and benefits from mains gas central heating (boiler and radiators), excellent mobile signal and fast broadband — practical advantages for modern family life. Local schools rate well, and Turnpike Lane and Wood Green amenities, plus Lordship Recreation Ground, are within easy reach, supporting everyday needs and leisure.
Buyers should note the house was constructed before 1900 with solid brick walls and no assumed cavity insulation; thermal upgrades and general modernization may be needed to improve energy efficiency. The plot is modest and the wider area is classed as deprived, which may affect long-term resale values. Overall this is a characterful family home with scope to update and add value in a well-served London neighbourhood.
3 bedroom terraced house for sale in Grainger Road N22, Tottenham, London, N22 — £575,000 • 3 bed • 1 bath • 1089 ft²
3 bedroom house for sale in Ranelagh Road, London, N22 — £895,000 • 3 bed • 1 bath • 976 ft²
3 bedroom house for sale in Princes Avenue, Wood Green, London, N13 — £600,000 • 3 bed • 3 bath • 1222 ft²
3 bedroom flat for sale in Woodberry Grove, Finsbury Park, London, N4 — £700,000 • 3 bed • 1 bath • 871 ft²
3 bedroom terraced house for sale in Westbury Avenue, London, N22 — £650,000 • 3 bed • 1 bath • 1363 ft²
3 bedroom terraced house for sale in Gladstone Avenue, Wood Green, London, N22 — £650,000 • 3 bed • 1 bath • 1113 ft²


























































































































































































































































































































































































