Five-acre plots with modern heating and extensive outdoor space.
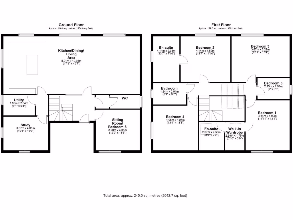
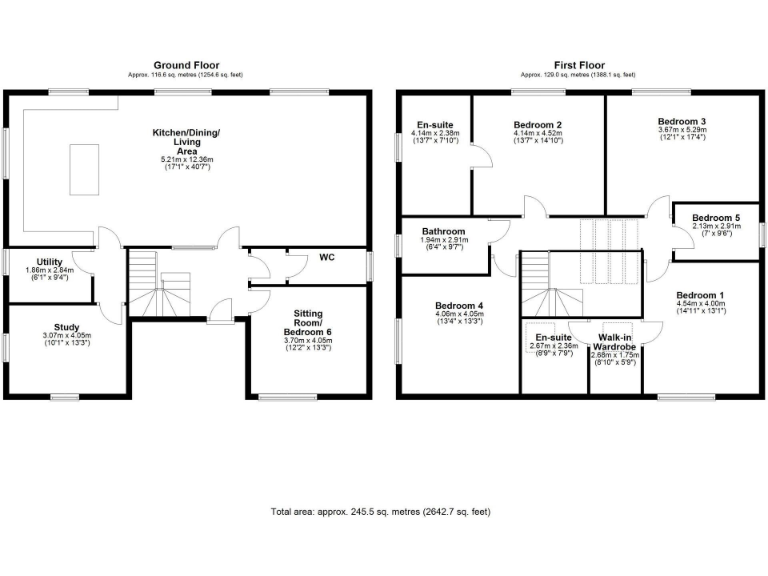
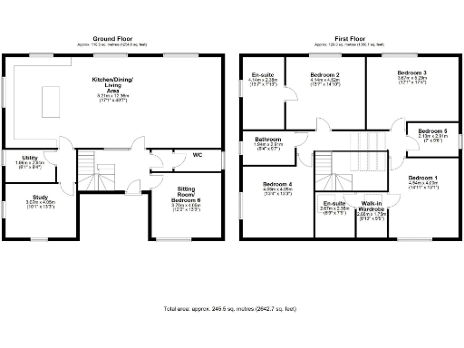
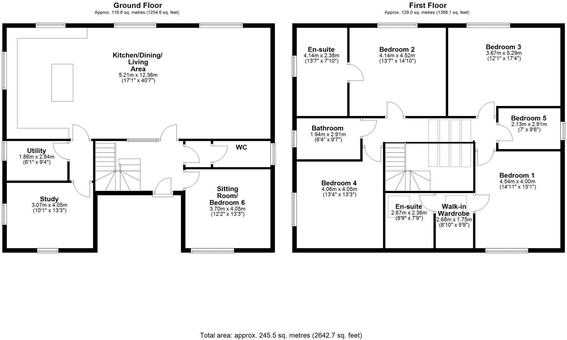
Over 2,500 sqft with flexible 5–6 bedroom layout
Set among rolling Mid Devon countryside, these two brand-new detached homes offer generous living for growing families. Each house measures over 2,500 sqft with five double bedrooms (sixth bedroom option), three bathrooms, separate living room, study and a large open-plan kitchen/family space ideal for daily life and entertaining. The timber-framed build includes air source heat pumps and underfloor heating for efficient, modern comfort.
The standout feature is the land: each plot extends to approximately five acres, split between garden, an acre-sized paddock and deciduous woodland. That scale gives real scope for hobbies, equestrian use or simply private outdoor space to enjoy. Off-street parking is ample and the location sits about four miles from Crediton and the A30, balancing rural calm with reasonable access to schools, shops and Exeter.
Buyers should note practical considerations: properties use private drainage via individual treatment plants and will require ongoing maintenance. Broadband speeds in the area are very slow and mobile signal is only average, which may affect home working. Completion is scheduled for 2025 and reservations are open now for buyers prepared to wait for final handover.
Overall, these homes suit families wanting new-build specification and large grounds in a peaceful hamlet setting, provided they accept semi-rural connectivity limits and the responsibilities of large-plot ownership.
5 bedroom detached house for sale in Posbury, Crediton, EX17 — £850,000 • 5 bed • 3 bath • 2500 ft²
4 bedroom detached house for sale in Sutton Orchard, Newbuildings, EX17 — £1,075,000 • 4 bed • 3 bath • 2755 ft²
4 bedroom detached house for sale in Newton View, Newton St Cyres, EX5 — £675,000 • 4 bed • 2 bath • 1667 ft²
4 bedroom detached house for sale in Sutton Orchard, Newbuildings, EX17 — £995,000 • 4 bed • 3 bath • 2755 ft²
4 bedroom detached house for sale in Creedy Bridge,
Sandford,
Crediton,
Devon,
EX17 1AB, EX17 — £460,000 • 4 bed • 1 bath • 1338 ft²
5 bedroom detached house for sale in The Meadow, Devon, EX15 — £1,250,000 • 5 bed • 5 bath • 3512 ft²






























































































































































