Spacious new-build family home with five acres of land near Crediton, ready 2025..
Over 2,500 sqft living space across multiple storeys
Five acres each: garden, paddock (≈1 acre) and deciduous woodland
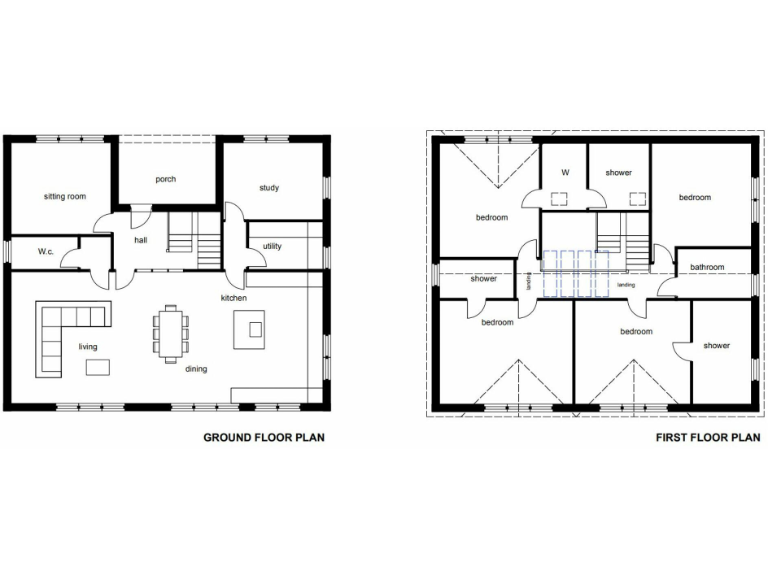
5 bedrooms (6th possible), 3 bathrooms, study and utility
Air-source heat pump with underfloor heating — energy efficient
Private drainage (individual treatment plant) — requires maintenance
Very slow broadband speeds in this remoter location
About 4 miles to Crediton and A30; school bus serves the hamlet
Completion Summer 2025; reservations open now
Set on its own five-acre plot in the rolling hills near Crediton, this brand-new detached house offers over 2,500 sq ft of family-focused living across multiple storeys. The design centres on a large open-plan kitchen/family room, separate living room, study and a versatile space that could serve as a sixth bedroom. Timber-frame construction, air-source heat pump and underfloor heating provide modern efficiency and a contemporary finish.
The land is the standout: roughly one acre of paddock, generous gardens and several acres of deciduous woodland give privacy, outdoor freedom and scope for small-scale equestrian use or wildlife interest. The hamlet location is peaceful yet only about four miles from Crediton and the A30, with school bus access and good local schooling options for families.
Buyers should note the houses are under construction and due for completion in 2025, so this is a reservation opportunity rather than an immediate move. Broadband speeds are very slow in this remoter location, and each plot uses private drainage (an individual treatment plant) which requires routine maintenance. There is a small non-refundable compliance check fee of £25 per person payable on offer acceptance.
Overall this property suits buyers seeking a spacious, contemporary rural home with substantial land and room for outdoor hobbies. It combines modern construction and heating technology with the lifestyle benefits of countryside seclusion; buyers should be comfortable with a degree of rural isolation and the ongoing responsibilities of private drainage and slower digital connectivity.
5 bedroom detached house for sale in Creamfields, Westacott, EX17 — £1,350,000 • 5 bed • 3 bath • 1522 ft²
4 bedroom detached house for sale in Posbury, Crediton, EX17 — £975,000 • 4 bed • 4 bath • 2500 ft²
4 bedroom detached house for sale in Sutton Orchard, Newbuildings, EX17 — £1,075,000 • 4 bed • 3 bath • 2755 ft²
4 bedroom detached house for sale in Sutton Orchard, Newbuildings, EX17 — £995,000 • 4 bed • 3 bath • 2755 ft²
4 bedroom detached house for sale in Ford Hill, Coleford, EX17 — £1,100,000 • 4 bed • 3 bath • 3305 ft²
4 bedroom semi-detached house for sale in Creedy Bridge,
Crediton,
Devon,
EX17 1AB, EX17 — £365,000 • 4 bed • 1 bath • 1228 ft²






































































































































































































