Ready-consent 0.8 acre site for four energy-efficient four‑bed homes with meadow views.
Planning permission granted for 4 detached four-bedroom homes (WD/2022/0334)
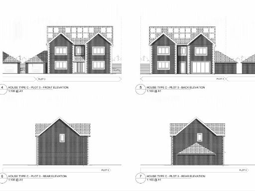
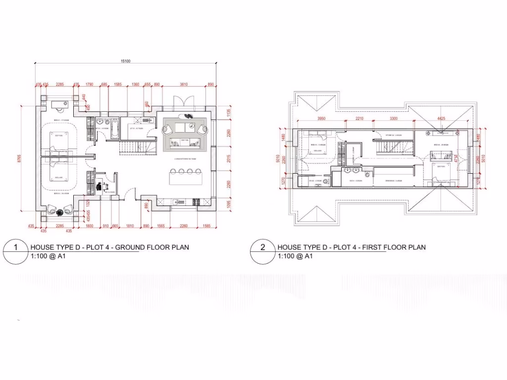
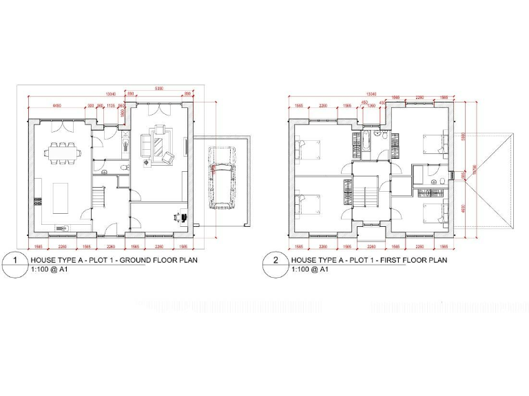
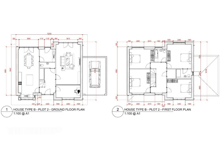
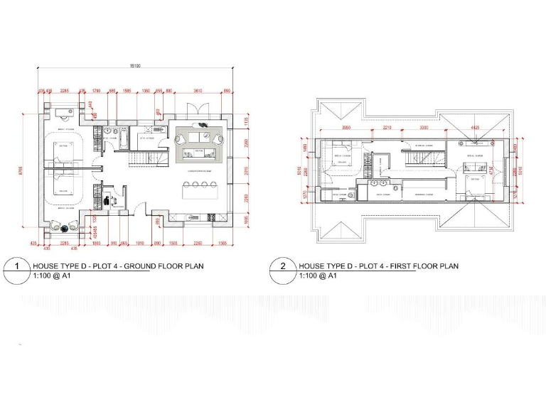
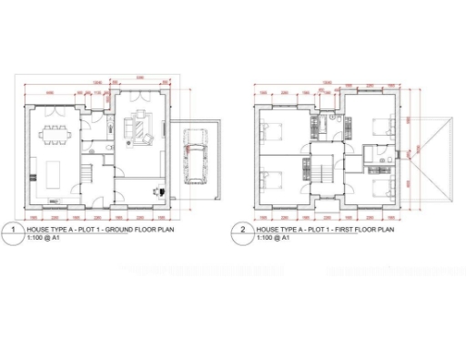
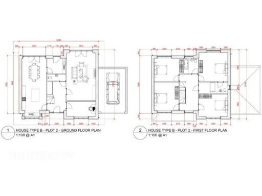
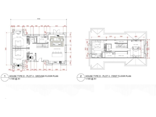
A rare, ready-to-build development plot of approximately 0.8 acre with planning permission (WD/2022/0334) for four detached four-bedroom homes of about 2,152 sq ft each. The site sits on Ninfield Road with open rural meadow views directly in front and a bespoke private driveway serving only the four plots. Designs include garages, front driveways and generous rear gardens.
The approved scheme emphasises energy efficiency: provision for solar panels, air source heat pumps and EV charging is included in the proposals. The layout suits buyers targeting mid-sized luxury village homes that appeal to commuter and countryside markets; mainline stations at Battle and Bexhill are a short drive away, and the coast is easily accessible.
Key practical points for a purchaser or developer: the land is offered freehold, planning is already granted, and the site is level with good vehicular access. Broadband is average and mobile signal is excellent. Some details remain to be confirmed on completion—EPC ratings are to be confirmed and services/utilities have not been tested. The site will require full build-out and the usual developer enquiries and costs (build works, connections, S278/landscaping and local conditions) before sales can be achieved.
This is best suited to a developer or an experienced self-builder seeking a small, high-spec village development with strong green credentials and countryside appeal. The planning consent and location reduce lead-in time compared with a greenfield starting from scratch, but buyers should allow for build costs, statutory approvals and practical site works prior to delivery and sale.
Land for sale in Church Lane, Ninfield, Battle, East Sussex, TN33 — £425,000 • 1 bed • 1 bath • 1430 ft²
Land for sale in Ninfield, Battle, East Sussex, TN33 — £600,000 • 1 bed • 1 bath
Plot for sale in Whatlington Road, Battle, TN33 — £400,000 • 1 bed • 1 bath • 2680 ft²
Land for sale in Ersham Road, Hailsham, BN27 — £1,400,000 • 1 bed • 1 bath • 13682 ft²
Land for sale in Barnhorn Road, Bexhill-On-Sea, TN39 — £225,000 • 1 bed • 1 bath
Land for sale in WIllingford Farm, South Lane, Dallington, Heathfield, TN21 — £290,000 • 1 bed • 1 bath • 1139 ft²






















































