Freehold Broad Oak plot with approved planning for three more homes — ideal for developers.
Approved planning for two extra dwellings (refs and sizes listed)
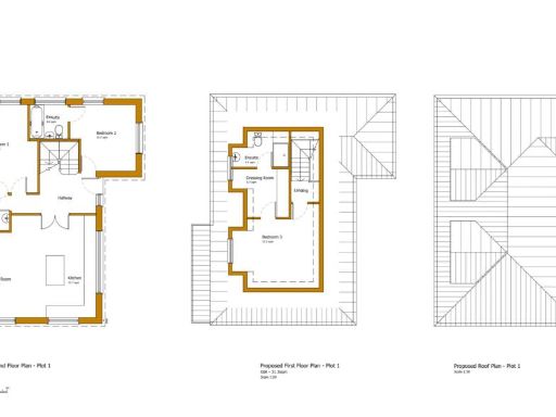
An uncommon semi-rural development opportunity in Broad Oak Village, sold freehold with approved planning (RR/2024/625/P) for an additional detached 3-bed chalet (approx. 1,151 sq ft). The site already includes a newly renovated and extended three-bedroom detached home with a bright, triple-aspect 24ft kitchen/dining/living room and bi-fold doors opening to the rear. The property benefits from air-source heating, off-street parking and a quiet village setting close to local shops, a doctors’ surgery and a gastro pub.
Planning consent on the site also covers a larger detached five-bedroom house (approx. 2,088 sq ft) and a further three-bedroom detached unit, offering scope for a small, high-value development or phased sale. Broad Oak provides convenient road access to the A21 and rail links at Robertsbridge and Battle for commuting to London, while nearby Rye and Battle offer additional local shopping and services.
Practical considerations are straightforward but material: broadband speeds are slow and mobile signal is average, the site uses private drainage, and some services and appliances in the current house are untested. Buyers should budget for build and connection costs when assessing project viability. This plot suits a developer, investor or buyer seeking a multi-dwelling project in an established rural community with approved planning in place.
Plot for sale in Chitcombe Road, Broad Oak, TN31 — £275,000 • 1 bed • 1 bath • 2088 ft²
3 bedroom detached house for sale in Chitcombe Road, Broad Oak, TN31 — £475,000 • 3 bed • 3 bath • 1214 ft²
Plot for sale in Whatlington Road, Battle, TN33 — £400,000 • 1 bed • 1 bath • 2680 ft²
Land for sale in WIllingford Farm, South Lane, Dallington, Heathfield, TN21 — £290,000 • 1 bed • 1 bath • 1139 ft²
Plot for sale in Chapel Lane, Guestling, Hastings, TN35 — £225,000 • 1 bed • 1 bath
Land for sale in Ninfield Road, Lunsford Cross, Bexhill On Sea, East Sussex, TN39 — £1,175,000 • 1 bed • 1 bath • 2152 ft²






























