WD7 8LD - Plot for sale in Watford Road, Radlett, Hertfordshire, WD7

View on Property Piper

Plot for sale in Watford Road, Radlett, Hertfordshire, WD7

Summary - 14, WATFORD ROAD WD7 8LD

1 bed 1 bath Plot

**Standout Features:**
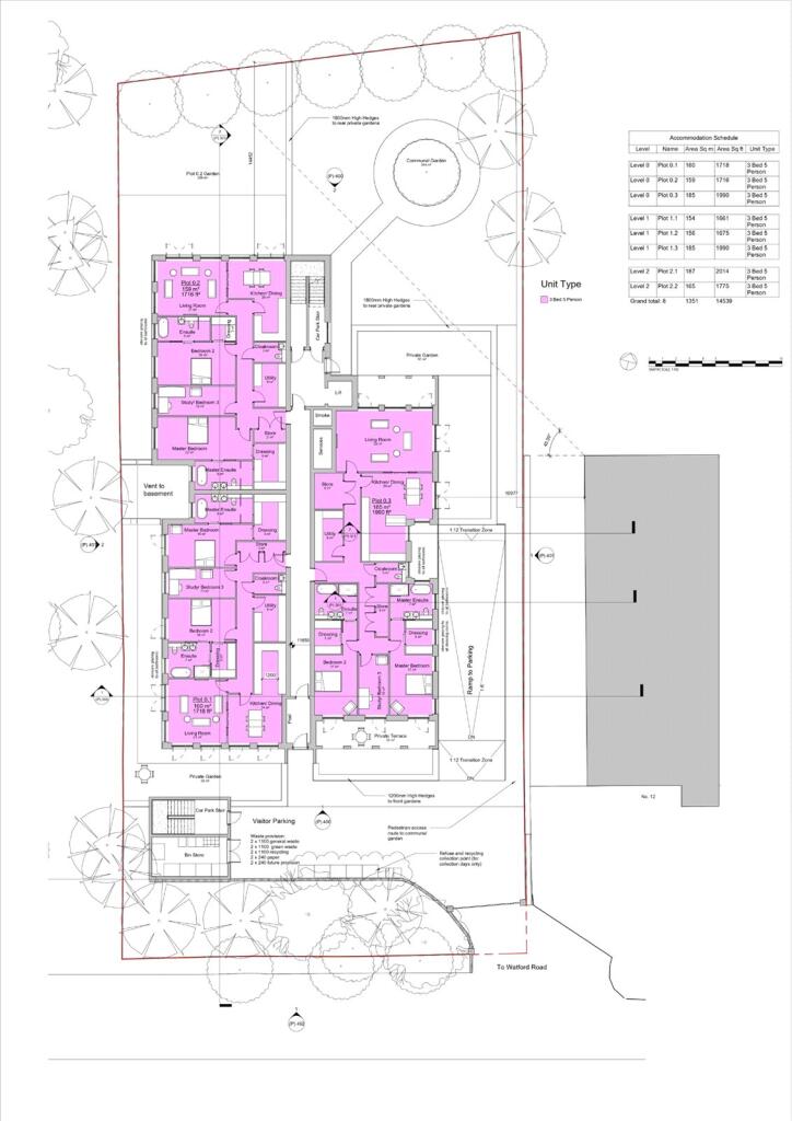
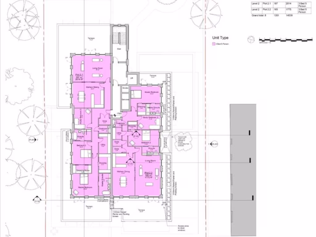
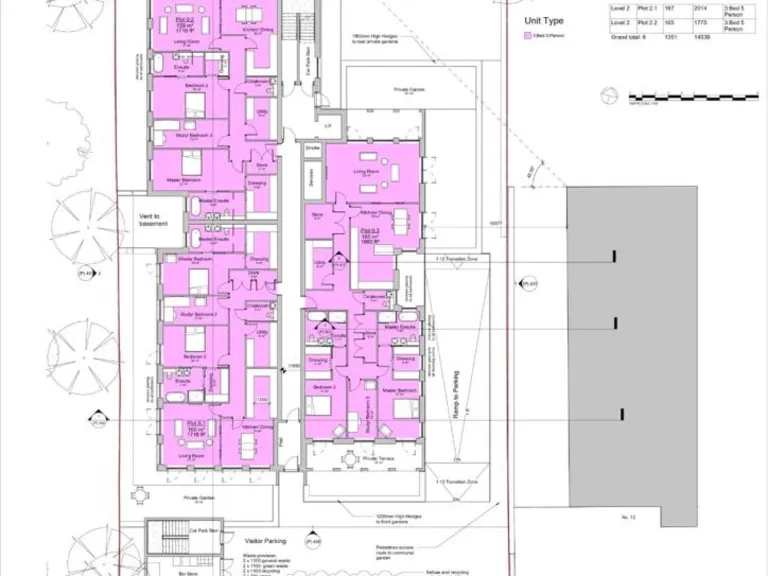
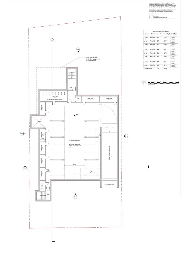
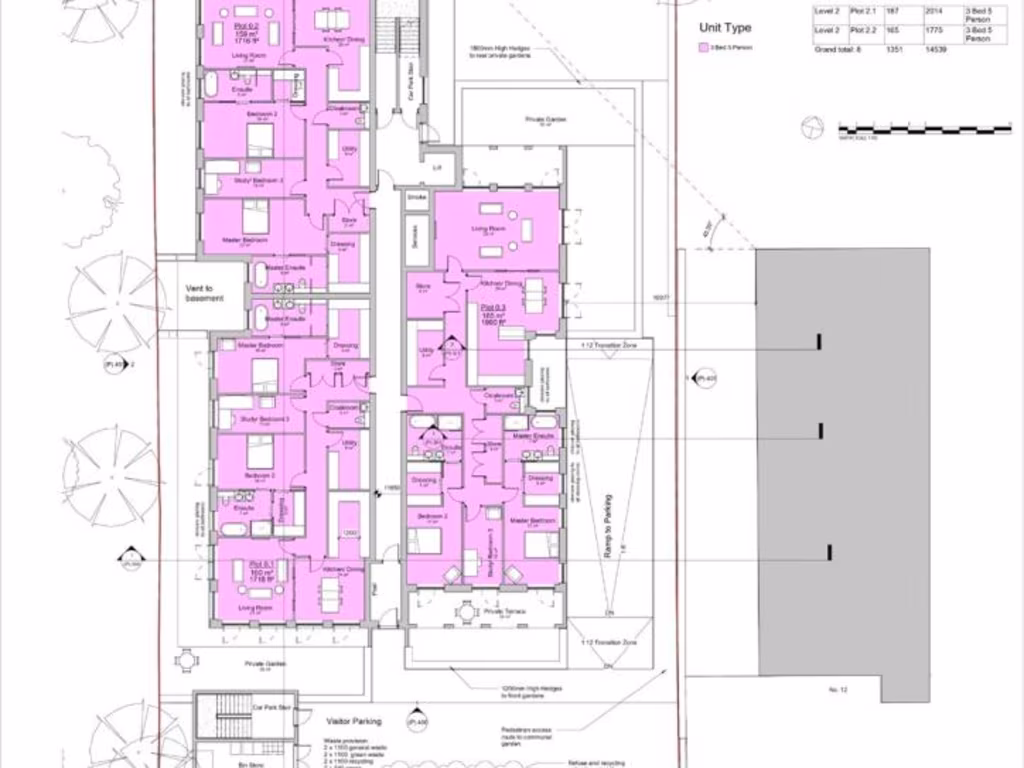
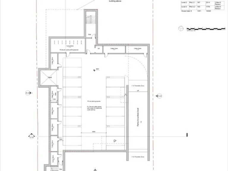
- Development opportunity with planning permission for 8 luxury apartments.
- Demolition of existing structures to construct a modern, three-storey building.
- Each apartment will be approximately 1,661 to 2,014 sq ft with private balconies.
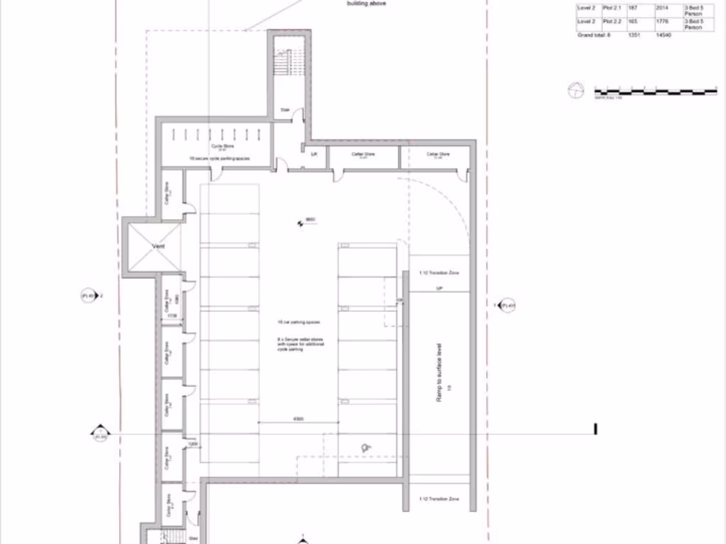
- Basement parking for 16 vehicles, including EV charging points.
- Expansive 0.51-acre landscaped area, ideal for communal gardens.
- Located in a low-crime, affluent community close to shops and Radlett station.

**Summary:**
This exceptional development opportunity in the coveted WD7 area offers planning permission for the construction of eight luxury apartments amidst tranquil surroundings. Each three-bedroom apartment will feature generous living spaces ranging from 1,661 to 2,014 sq ft, complemented by private balconies overlooking beautifully landscaped gardens. This project comes equipped with essential modern amenities, including two reserved underground parking spots and EV charging stations, catering to the needs of today's discerning residents.

Strategically situated within easy reach of Radlett mainline station—offering a swift 20-minute commute to Kings Cross—and positioned close to local shopping and renowned schools, this property promises a unique blend of suburban tranquillity and urban convenience. While the current buildings on site will require demolition, this presents an exciting renovation potential for developers seeking to tap into the affluent local market. With its rare blend of features and location, seize this opportunity to create an exclusive living experience that won’t last long on the market.

Property Details

Brochure Descriptions

Image Descriptions

Textual Property Features

Detected Visual Features

Nearby Schools

Nearest Bars And Restaurants

,,,,}

Nearest General Shops

,,}

Nearest Grocery shops

,,}

Nearest Supermarkets

,,}

Nearest Religious buildings

,,}

Nearest Medical buildings

,,,}

Nearest Airports

,,}

Nearest Leisure Facilities

,,,,}

Nearest Tourist attractions

,,}

Nearest Train stations

,,,,}

Nearest Bus stations and stops

,,,,}

Nearest Hotels

,,}

Tags

Local Market Stats

Similar Properties

Meta

High Res Images

Compatible Images

Low res Images

Thumbnails

Raw Images