Refurbished bungalow with development potential near Thameslink station.
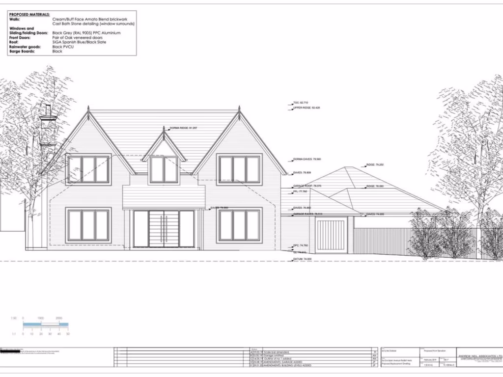
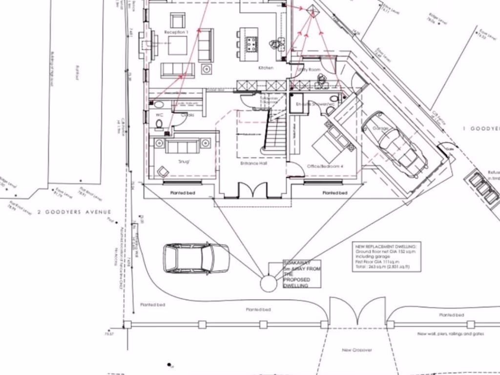
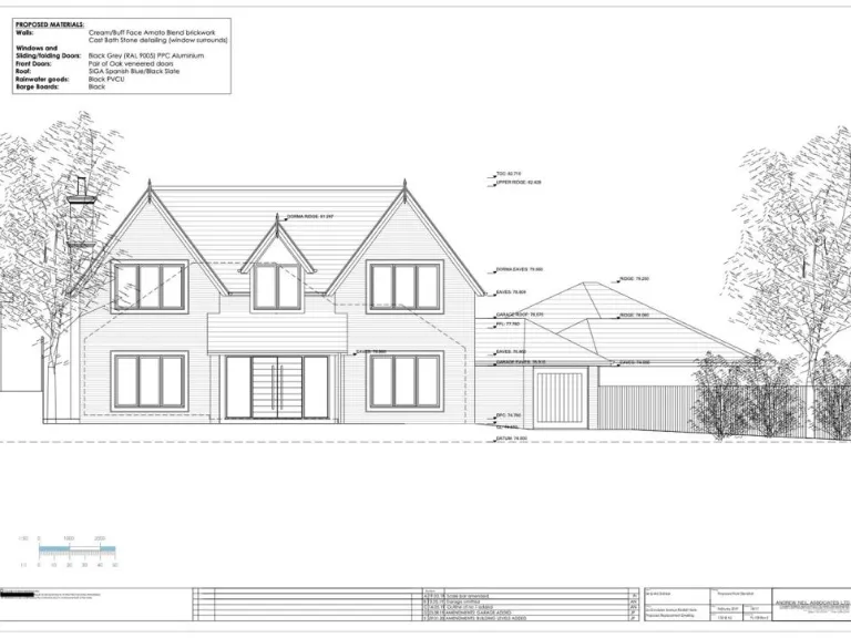
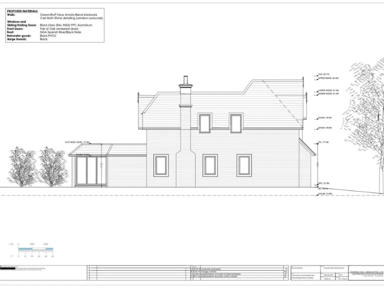
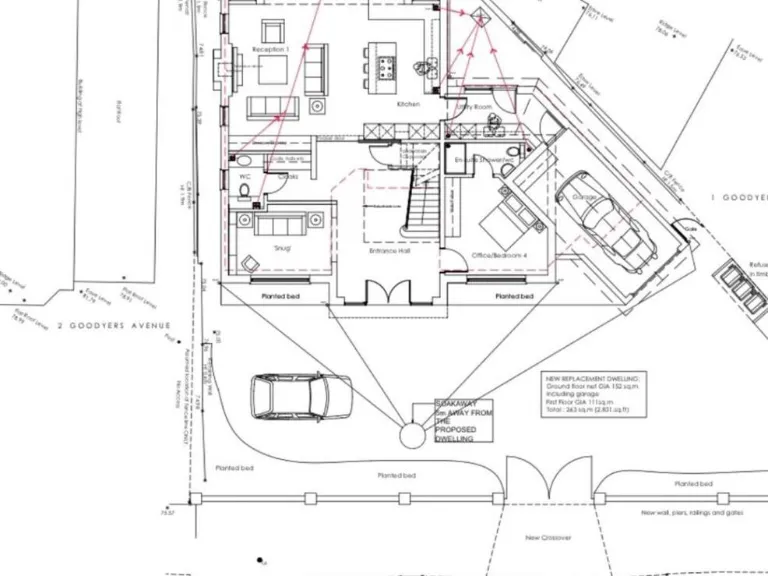
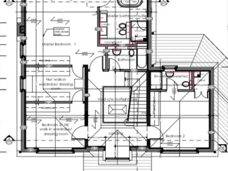
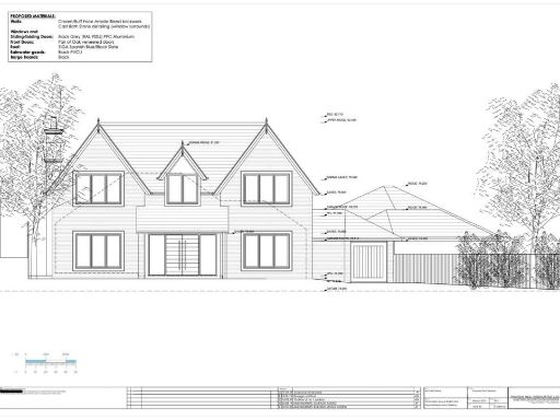
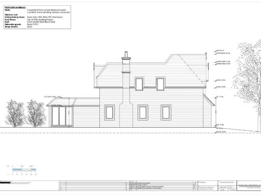
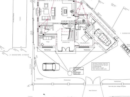
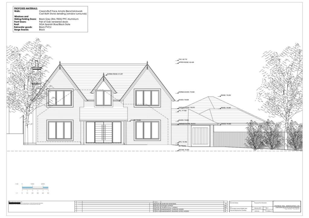
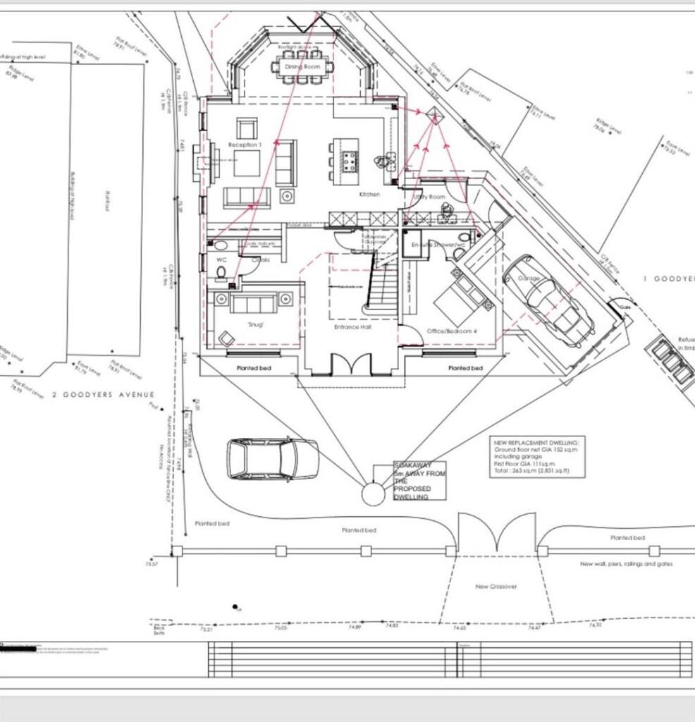
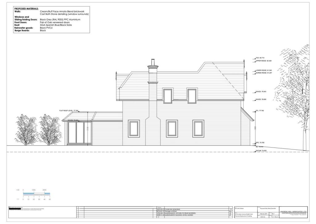
Planning permission for 4‑bed detached house (approx 2,850 sq ft)
Set on a substantial, well‑landscaped plot on Goodyers Avenue, this freshly refurbished three‑bedroom detached bungalow offers immediate single‑level living with excellent scope. The bright reception room opens onto a west‑facing garden and patio, providing sunny late‑day light and a private outdoor space for children and entertaining. The principal bedroom includes fitted wardrobes and an ensuite; two further double rooms offer flexible use as bedrooms, a home office or playroom.
The site is a major value driver: planning permission has been granted both to remodel and extend the existing bungalow and separately to demolish and replace it with a 4‑bedroom detached house of approximately 2,850 sq ft. That makes the property attractive to families seeking a larger long‑term home or buyers and small developers wanting a ready permitted rebuild on a prime residential plot near Radlett Thameslink station.
Practical features include a garage, driveway parking for three to four cars and mains gas central heating. The property is freehold and in a low‑crime, affluent neighbourhood with good local schools and easy walking access to the station. Broadband speeds in the area are reported slow; mobile signal is excellent.
Buyers should note some factual constraints: external walls are cavity construction with no confirmed internal insulation (assumed), the council tax band is relatively high, and any redevelopment will require adherence to the planning conditions already granted. The house is newly refurbished internally, but further modernisation or full redevelopment will be needed if pursuing the larger new build option.
3 bedroom detached bungalow for sale in Goodyers Avenue, Radlett, WD7 — £1,000,000 • 3 bed • 2 bath • 1260 ft²
5 bedroom bungalow for sale in Loom Lane, Radlett, Hertfordshire, WD7 — £3,999,000 • 5 bed • 3 bath • 3400 ft²
4 bedroom detached house for sale in The Warren, Radlett, Hertfordshire, WD7 — £1,950,000 • 4 bed • 3 bath • 3314 ft²
4 bedroom detached house for sale in Radlett, WD7 — £1,580,000 • 4 bed • 2 bath • 3016 ft²
Plot for sale in The Warren, Radlett, Hertfordshire, WD7 — £1,950,000 • 1 bed • 1 bath • 7664 ft²
5 bedroom bungalow for sale in Williams Way, Radlett, Hertfordshire, WD7 — £1,495,000 • 5 bed • 2 bath • 1615 ft²


















































































































































































































