Extended property with guest suite income near the beach and large west-facing garden.
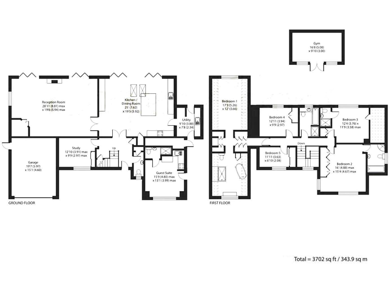
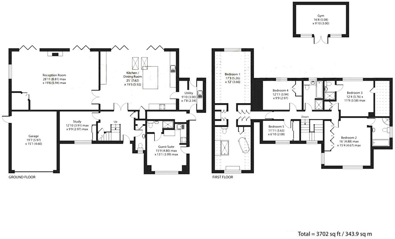
Six bedrooms and five bathrooms across two storeys plus attic space
This extended six-bedroom detached house on Pigeonhouse Lane offers substantial, well-proportioned living for an established family seeking coastal convenience. The ground floor delivers an open-plan kitchen/diner with vaulted ceiling and bi-fold doors, a large lounge, study and a private guest suite with separate entrance — currently generating about £10,000 per year as short‑let income. Upstairs contains a generous master suite with dressing area and ensuite, plus four further bedrooms and additional bathrooms.
Externally the plot benefits from a west-facing rear garden with mature planting, a powered insulated garden room and secluded hot-tub area, plus an oversized garage with electric roller door and wide block-paved driveway providing ample parking. The property is freehold, has double glazing, gas central heating and an EPC rating of C; it sits roughly 320 metres from the beach and within an affluent, low-crime neighbourhood with good local schools.
Practical points to check: broadband speeds are reported as slow and mobile signal average, council tax is in Band G (quite expensive), and the house dates from the late 1960s/early 1970s with later extensions — prospective buyers should verify planning/building regulation consents, services and any maintenance history. Appliances and fixtures noted in the listing should be independently confirmed as being in working order.
Overall this is a roomy, versatile family property that also suits buyers seeking ancillary income or space for flexible home working and leisure. Internal viewing is recommended to appreciate the scale, flow and outdoor space close to the coast.
3 bedroom detached house for sale in Knightscroft Avenue, Rustington, BN16 — £850,000 • 3 bed • 2 bath • 2002 ft²
6 bedroom detached house for sale in Angmering Lane, East Preston, BN16 — £1,500,000 • 6 bed • 4 bath • 3033 ft²
4 bedroom detached house for sale in Mill Lane, Rustington, West Sussex, BN16 — £875,000 • 4 bed • 3 bath • 2763 ft²
4 bedroom detached house for sale in Sea Avenue, Rustington, BN16 — £925,000 • 4 bed • 1 bath • 2013 ft²
5 bedroom detached house for sale in South View, East Preston, West Sussex, BN16 — £1,000,000 • 5 bed • 2 bath • 1924 ft²
4 bedroom detached house for sale in Seafield Road, Rustington, West Sussex, BN16 — £685,000 • 4 bed • 2 bath • 2127 ft²






















































































































































